Современные идеи дизайна туалета 2022. Как соединить ванну с туалетом
- Современные идеи дизайна туалета 2022. Как соединить ванну с туалетом
- Современный туалет. Дизайн туалета 2020 года — 160 фото лучших современных трендов и особенности применения актуальных стилей
- Современный интерьер туалета. Дизайн туалета в квартире — 7 правил
- Дизайн малогабаритного туалета. Ремонт туалета своими руками
Современные идеи дизайна туалета 2022. Как соединить ванну с туалетом
Есть два способа объединения ванной и уборной в единую комнату. Они зависят от материала дома, в котором расположена квартира — кирпичный, панельный или монолитный.
Простое объединение, которое получается за счет демонтажа разделительной стены. В данном случае если стена между туалетом и ванной не несущая её убирают/заменяют на новую. Укладывают гидроизоляцию, заменяют и переустанавливают сантехнику.
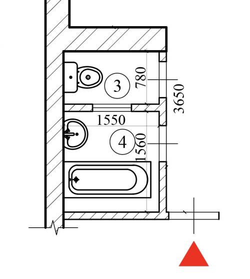
Ванная и санузел до перепланировки.
К примеру, в этой квартире убрали ненесущую стену между туалетом и ванной, обустроили короб для стояков, перенесли унитаз, сделали инсталляцию и оборудовали гигиенический душ. По всей площади санузла сделали гидроизоляцию, в том числе на месте, где была перегородка.

Слева санузел до перепланировки, справа после.
Т.к. убрали стену между двумя помещениями, пришлось переделывать гидроизоляцию. Вместо двух помещений получилось одно, один дверной проем оказался лишним, следовательно, его заложили.
Обратите внимание: из-за того, что инсталляция встроена в короб, который не доходит до потолка, площадь помещения считается по длине от стены до стены.
Пример, в котором короб не доходит до потолка.
Однако, если в вашем проекте короб будет доходить до потолка, то площадь считается от стены до короба — соответственно, помещение на итоговом плане будет меньше.
План объединения ванной и санузла в квартире, после перепланировки.
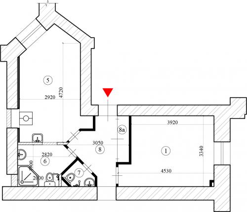
Объединение с расширением площади дает более просторное помещение. В этом случае не только убирают перегородку, но и добавляют площадь за счет прилегающих нежилых помещений — коридора, кладовой, гардеробной.
Например, в этой квартире были раздельные ванная и туалет, причем вход в ванную был через кухню, а в туалет — из коридора. За счет коридора получилось сделать полноценный совмещенный санузел и дополнительный второй туалет.
В квартире был раздельный санузел
В объединенном санузле ванну заменила индивидуальная душевая кабина, установленная без устройства встроенного трапа. Дополнительный туалет оборудовали унитазом и раковиной.
В обоих санузлах установили гигиенический душ и проложили гидроизоляцию.
После перепланировки в квартире появился совмещенный санузел и дополнительный туалет.
Слева санузел до перепланировки, справа после.
При подготовке к проведению перепланировки нужно учитывать особенности разных типов жилья.
Современный туалет. Дизайн туалета 2020 года — 160 фото лучших современных трендов и особенности применения актуальных стилей
В большинстве квартир для туалета выделена самая маленькая площадь. Несмотря на это, дизайнеры могут распределить это пространство так, чтобы каждому было уютно посещать уборную. За счет игры цвета, сочетания материалов и эргономичных решений даже очень маленькая комната будет казаться удобной и просторной. Способствуют увеличению полезного пространства и новинки в сфере сантехники. Новые модели раковин и унитазов, а также современные способы подключения водоснабжения позволяют создать модный дизайн в туалете.

Основы проекта
Посмотрев фото туалета 2020 года, можно найти немало интересных идей, выбрать подходящую цветовую гамму или же понять, какие элементы точно не нравятся. Уже готовые варианты могут подкинуть немало интересных идей.
Конечно, если санузел совмещенный, то и простора для воображения больше. В случаях же, когда туалет расположен в отдельной комнате, следует каждый элемент рассматривать с точки зрения визуального расширения пространства. Что необходимо сделать для хорошего проекта по дизайну?
Определиться с цветовой гаммой
Цветовая гамма – половина успеха хорошей туалетной комнаты. Разобраться в сочетаемости цветов поможет цветовой круг. В открытом доступе есть цветовые круги, в которых отражено сочетание двух, трех или даже четырех цветов.
Если подбирать цвета без цветовой диаграммы, то риск создать броскую и резкую глазу комнату становится выше. Особенно сложно сочетать варианты, содержащие больше двух цветов. Как правило, дизайнеры отдают предпочтение одному из следующих вариантов:
Одноцветная комната
Данный вариант предполагает использование одного цвета. Такие туалеты, обычно, выполнены в стиле минимализм. Лаконичный внешний вид без броских деталей. Плюсом такого варианта является простота. Некоторым потребителям хочется давать глазам отдыхать от ярких акцентов.
Базовый цвет + акцент другого цвета
Выбирая такое оформление, дизайнеры представляют самый выигрышный вариант. Одноцветные туалетные комнаты, как и многоцветные, нравятся не всем, но вот сочетание двух цветов может быть подобрано под каждого.
От сочетания бежевого и серого, до соединения в одной комнате оранжевого и зелёного. Данный вариант цветовой гаммы туалета наиболее легкий, как в исполнении, так и в подборе.
Многоцветность
Самый сложный вариант из всех. Подобрать два сочетающихся цвета не так уж и сложно, а вот три или четыре уже непросто. Это связано с тем, что иногда, сочетаясь друг с другом, только один цвет хорошо смотрится с третьим. Разобраться в сочетании поможет цветовая диаграмма.
Подобрать материалы
Стены обязательно должны быть покрыты водоотталкивающим материалом, даже если санузел раздельный, скорее всего в туалете будет стоять раковина, использование которой создает повышенную влажность. Любой материал, впитывающий влагу, придет в негодность в скором времени. Это же правило касается и пола. Материал, покрывающий его, должен легко мыться и не вздуваться при контактах с водой.
На рынке в настоящее время представлен широкий ряд плиток, кафеля, панелей из различных водоотталкивающих материалов. Полочки, шкафчики и любая другая мебель, покрытая защитной пленкой, прослужит дольше, чем незащищенные элементы из дерева. Дизайнеры, как правило, отдают предпочтение стеклянным, пластиковым или железным материалам.
Разработать концепцию
Перед подбором всех элементом необходимо понять, каким в целом должен быть туалет. Например, определится со стилем. В дизайне туалета могут использоваться элементы, создающие определенную атмосферу. И подобные элементы, как правило, не сочетаются со сложными декорациями. Новинки дизайна туалета разрабатываются постоянно, однако есть ряд классических решений, позволяющий со временем заменять некоторые элементы, освежая внешний вид комнаты. Важно определиться, к какому стилю будет относиться туалет.
Сделать план-зарисовку
Спланированное расположение всех предметов не может остаться только лишь в мыслях. Для того, чтобы не прогадать с размерами и расстояниями между объектами, необходимо составить на бумаге план комнаты и, сохраняя масштабы, отобразить будущий дизайн.
Основные правила хорошего дизайна
Дизайн маленького туалета 2020 года – непростое дело. Несмотря на то, что варианты дизайнов могут кардинально отличаться друг от друга, существует несколько пунктов, которые обеспечивают приятный и лаконичный внешний вид.
Нет напольному туалету
Даже если стены и пол не отличаются оригинальностью, подвесной туалет создает уникальный вид комнаты. Кроме этого, маленькие комнаты визуально определяются по свободной площади пола. Подвесной туалет обеспечивает визуальное расширение пространства за счет свободного пола.
Современный интерьер туалета. Дизайн туалета в квартире — 7 правил
Казалось бы, где можно накосячить в комнате такого маленького размера, как туалет. Но на такой площади всё на виду, каждая деталь имеет значение. Разбираемся.
1. Унитаз — только подвесной
Это 1-ое самое важное и железное правило — только подвесной унитаз с инсталляцией. Без него о дизайне туалета можно даже не думать. Любой даже самый дорогой и навороченный напольный унитаз проигрывает подвесному по всем параметрам. Отличия:
- Современный внешний вид только у подвесного унитаза.
- Нет уродливого засиликоненного стыка с полом или зазора между ними.
- Т.к. визуально площадь комнаты оценивается по полу, а подвесной пол не занимает, площадь кажется больше.
- Удобно убирать. За унитазом и в месте стыка не скапливается грязь.
- Эффективно занимает меньше места.

Современный дизайн туалета без подвесного унитаза невозможен. Это та вещь, экономия на которой недопустима.
На некоторых фото будут обычные напольные унитазы — это ошибка. Эти фото тут для иллюстрации других идей, возвращаться к этому не буду.
2. Лючок в туалете
Это второй момент, без которого дизайн туалета будет очень низкого уровня. Самое худшее что можно сделать — использовать готовый белый металлический лючок. Это чисто черновое техническое решение, которое в дизайне туалета в квартире неприемлемо.



Правильные способы спрятать трубы и счетчики:
- Скрытый люк под плитку.
- Мебельные дверцы.
- Если недорого — картина или распечатанное фото, панно, рольштора.
Последнее можно сделать очень бюджетно. И это уже лучше, чем белый люк. Обязательно нормально прячьте трубы. Именно на таких нюансах и строится дизайн туалета.
Учтите, что у скрытого люка под плитку будут темные зазоры по периметру. Чтобы это не бросалось в глаза, затирка остальной плитки тоже должна быть тёмной. Читайтеи.
3. Не больше 2-ух цветов
Унитаз — белый. Т.е. 1 цвет уже есть всегда. Любых цветов сильно контрастных к белому должно быть не больше 2-ух. Иначе слишком много деталей для маленького туалета без ванной. Исключение — пэчворк и другие неагрессивные смеси, где цвета не доминируют и не тянут на себя внимание.

Я люблю тёмные и чёрные цвета в интерьере, но только не в ванной, туалете и кухне. В среднем дизайн маленького туалета выигрышно смотрится именно в светлых цветах. Все остальные — неоправданный риск.
Если все-таки хотите яркий ремонт туалета, читайте по сочетание цветов в интерьере.
Белый, бежевый, серый, оттенки дерева — лучшие цвета. Подробно писал в статье про.




4. Маленькая раковина
Существуют очень маленькие раковины специально для туалетов. Иметь возможно помыть руки очень важно для туалета без ванны. Иначе мы контактируем с дверными ручками сразу двух комнат просто чтобы добраться до умывальника.
По размеру они бывают настолько миниатюрные, что в ширину занимают немногим более части стены с наличником. Это не вопрос дизайна, но для практичности — рекомендую.
5. Декоративная подсветка
В туалете нет нужды в ярком верхнем свете. Нам не надо рассматривать себя в зеркало и выполнять какие-либо гигиенические процедуры. Значит, можно сделать декоративное освещение и использовать его как основное.
Одна изремонта санузлов в 2019 и для туалета тоже — размещать источники света внизу и середине комнаты, делая их скрытыми. При таком расположении они дают много теней и интерьер выглядит нескучно, но при этом строго. Чем фактурнее при этом плитка, тем объемней и интересней она будет выглядеть. Существует миллион способов встраивания светодиодных лент, специальные профиля с экраном-рассеивателем и т.д. Придумать им место можно даже на площади в 2 кв.м.
6. Держатель для ершика на стене
Да, такая мелочь. В туалете очень мало предметов и каждый из них влияет на общее восприятие интерьера. А такие вещи как ершик обычно оставляют на последний момент и покупают «временные». Которые потом, конечно, стоят годами. Просто сразу купите нормальный и повесьте на стену.



7. Туалет больше 2 кв.м
2 метра более чем достаточная площадь для туалета и именно такой размер в большинстве квартир. Поэтому и все правила и фото про них. Если же у вас размер туалета больше, то есть смысл разместить там дополнительные предметы, иначе пространство будет использовано нерационально.
Кандидаты на вход: биде и псевдобиде, стиральная и сушильная машины, бойлер. Если же туалет всё-таки маленький, вот материал.
Дизайн малогабаритного туалета. Ремонт туалета своими руками
Порядок выполнения ремонтных работ
Любой даже малогабаритной площадью туалет требует выполнения многочисленных задач. В таком небольшом пространстве проложено огромное количество коммуникаций. В определённых случаях не избежать оформления акта на проведение капитальных ремонтных работ.

Итак, с чего начинать ремонт в туалете? Конечно же, с создания дизайна, расчёта нужных материалов. Затем следует проводить работы в таком порядке:
- устранение старых настенных и потолочных покрытий ;
- замена канализации , системы отопления, монтаж унитазной инсталляции ;
- в случае необходимости замена старой проводки;
- уборка комнаты;
- подготовка напольной поверхности, стяжка , обустройство пола;
- оформление стен;
- монтаж унитаза;
- установка дверного полотна.
Материалы
Нагрузка на данную комнату весьма специфическая. Здесь достаточно влажно, часто туалет загрязняется, а также наполняется специфическими ароматами. Именно поэтому здесь нужно использовать облицовочные материалы, которые не впитывают запахи, загрязнения, устойчивые к высокой влажности, простые в уходе.
Антон Цугунов , занимаюсь ремонтом и отделкой с 2003 года.
Я предпочитаю покупать плитку и материалы для ремонта в онлайн-магазине — это очень просто, удобно и безопасно. Можно купить все что нужно, не выходя из дома. Чаще всего заказываю доставку прямо на объект, что бы не терять время и не «бить» машину.
В онлайн-магазине можно ознакомиться с точными характеристиками и реальными отзывами покупателей. Есть фото как плитка смотрится уже в готовом виде.
Более того, оплачивая плитку своей картой , я получаю кешбек до 33% от суммы покупки !
Получается двойная выгода! Я не рискую своим здоровьем, не трачу время на дорогу, получаю оплаченные стройматериалы в указанное мной время и ещё экономлю на этом до 30%.
Наиболее часто приобретаемые мной материалы при ремонте туалета и ванной:
- штукатурки для внутренних работ;
- грунтовки;
- клей для керамической плитки;
- смеси для пола;
- керамическая плитка, кафель, керамогранит;
- напольная плитка;
- плинтусы и уголки для ванны;
- декоративная мозаика;
- затирки для швов плитки;
- ревизионные сантехнические люки;
- унитазы;
- биде;
- инсталляции для унитазов;
- экраны под ванну;
- раковины для ванной;
- смесители для ванной комнаты.
Тонкости дизайна зависят от площади
Размеры туалетной комнаты влияют на план работ по ремонту и отделке. Вот несколько идей по декорированию санузла скромных размеров.
Интерьер санузла 1,5 кв. м
В некоторых случаях, применяя простые вещи, без труда можно создать уникальное оформление интерьера в туалете.
Чтобы маленькая комната была уютной и имела презентабельный вид, не загромождайте ее аксессуарами.
Туалет, совмещенный с ванной: фото
Наибольшей популярностью среди материалов для отделки совмещенных санузлов, туалетов и ванных комнат пользуется кафель, мрамор и гранит. Площадь небольшой туалетной комнаты можно зрительно увеличить за счет удачно подобранных материалов, их расположения и сочетаний цветов.
Столь же важно грамотно выбрать сантехническое оборудование — оно должно иметь компактные размеры
Стоит обратить внимание на подвесные модели.
Интерьер санузла 2 кв. м
Основная задача специалиста по дизайну при оформлении небольших туалетных комнат заключается в том, чтобы как можно эффективнее задействовать пространство, которое имеется.
Оптимальное решение – установить подвесную модель унитаза, сливной бачок которого встраивается в стенку или выступает. Это позволит сэкономить пространство.
Санузел размером 2 кв. м дает возможность установить и небольшую раковину. В помещении поместится и подвесная модель, и угловая.
Рядом с умывальником располагают крючки, чтобы вешать полотенца, и компактное зеркало — оно придаст помещению дополнительный объем.
Стены облицовывают блестящим кафелем и жидкими обоями (главное, чтобы отделка подбиралась светлых тонов). Если выбран белоснежный материал, добавьте ярких вкраплений, иначе оформление получится невыразительным и стерильным, как в больнице.
Дизайн просторной туалетной комнаты
Просторный санузел должен быть практичным, удобным, комфортабельным и эстетичным.
В туалете, объединенном с ванной, можно разместить и купель, и кабинку для принятия душа. В комнату поместится и машинка для стирки белья.
Сантехнику размещают на некотором удалении от шкафчиков, под умывальником или встраивают.
Рекомендуется дополнить интерьер просторного туалета вазами или цветочными вазонами с живыми растениями.
Некоторым владельцам квартир в новостройках не нравятся большие санузлы. В такой ситуации следует использовать оформление в темных оттенках, что позволит зрительно сдвинуть границы помещения. На свободных местах размещают тумбы и шкафчики.
Санузел с раковиной
Подобные дизайнерские решения используются исключительно в небольших санузлах, в которые нельзя вместить множество аксессуаров и предметов мебели. Но, тем не менее, в таких туалетных комнатах ванны нет, но есть самые необходимые предметы – унитаз с умывальником, маленькие полки для размещения всяких мелочей, полотенцедержатели.
Источник: https://mebel-doma23.ru/novosti/idei-remonta-v-tualete-tonkosti-dizayna-zavisyat-ot-ploshchadi