Дизайн / интерьер / стиль
Незаурядные дизайнерские решения!
Main menu
Главная
Новости
Статьи
Главная
»
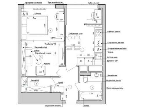
Дизайн - проект однокомнатной квартиры 41, 99 кв.
Дизайн - проект однокомнатной квартиры 41, 99 кв.
21.04.2022 в 08:45
м.
Все компактно и ничего лишнего
.
Понравилось? Поделитесь с друзьями!
⇦
Игровая комната для двух маленьких принцесс.
⇨
Дома и коттеджи из железобетонных панелей под ключ. Проекты жилых домов из ЖБ-панелей