Перепланировка 3 комнатной квартиры серии П44Т. Планировка трёшки в панельке П-44: 5 удачных схем (бесплатно)
- Перепланировка 3 комнатной квартиры серии П44Т. Планировка трёшки в панельке П-44: 5 удачных схем (бесплатно)
- Дизайн квартиры П44Т. Варианты дизайна в разных стилях
- Планировка 3 комнатной квартиры . Какой выбрать стиль и дизайн интерьера трехкомнатной квартиры П44Т
- П 44 планировка двухкомнатная квартира с размерами. Типовая серия дома П44 с планировками квартир
- Планировка 3 х комнатной квартиры в серии П44Т. Описание серии П44Т
- Ремонт 3-х комнатной квартиры п-44. Дом серии П44Т. Разбираем планировки (фото). Почему панельный дом так популярен у покупателей?
- КОГДА И КЕМ СПРОЕКТИРОВАНА?
- ТЕХНИЧЕСКИЕ ХАРАКТЕРИСТИКИ
- РАЗБИРАЕМ ПЛАНИРОВКИ
- Однокомнатные квартиры в П44Т
- В зависимости от района Москвы такие квартиры по данным истории сделок в Сбербанке продавались в 2018-2019 году:
- от 5 900 000 до 7 500 000 рублей
- Двухкомнатные квартиры в П44Т
- В зависимости от района Москвы такие квартиры по данным истории сделок в Сбербанке продавались в 2018-2019 году:
- от 8 000 000 до 10 500 000 рублей
- Большая кухня с эркером играет роль кухни-гостиной
- В зависимости от района Москвы такие квартиры по данным истории сделок в Сбербанке продавались в 2018-2019 году:
- от 9 500 000 до 12 500 000 рублей
- Трехкомнатные квартиры в П44Т
- Главные недостаток - один санузел. Будь в такой квартире два санузла можно было бы назвать ее идеальной.
- Видео РЕМОНТ П44Т. Обзор трешки после ремонта . Часть 1
Перепланировка 3 комнатной квартиры серии П44Т. Планировка трёшки в панельке П-44: 5 удачных схем (бесплатно)
Общая площадь типовой квартиры в доме серии П-44 – одной из самых распространённых панелек – от 70 до 75 кв. м. При этом почти все стены несущие, и перепланировка невозможна.


Типовая планировка
У трехкомнатной квартиры в типовых панельных домах серии П-44 довольно большая площадь и удачная планировка. В отличие от предшественниц-хрущёвок, здесь десятиметровая кухня и комнаты больше 11 кв. м. Пожалуй, единственный недостаток в том, что существенную перепланировку не сделать – почти все стены в квартире несущие.
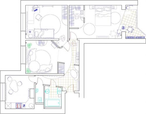
Вариант 1
Самую большую комнату отвели под спальню, потому что примерно треть её занимает гардеробная. На балконе обустроили рабочее место и встроили гладильную доску. Меньшую по площади спальню превратили в детскую для двоих детей – вся мебель здесь парная.
Стену между гостиной и коридором можно снести. Комната станет проходной, но более просторной. Воспользуемся шириной коридора, чтобы встроить шкаф для верхней одежды. А на кухне помимо углового гарнитура и стола предусмотрит узкую витрину для сервировочной посуды и колонны для встроенной техники при входе.

Вариант 2
В этом варианте расположение комнат сохранено, и даже гардеробная на том же месте. Но в детской всего одна детская кроватка и диван для отдыха мамы или няни. Зато в гостиной появился большой угловой диван и сразу два рабочих места на случай, если родители работают из дома. Ещё один угловой диванчик установили на кухне.

Вариант 3
Если в семье двое разнополых разновозрастных детей, то каждому из них неплохо бы иметь собственную комнату. Поэтому две дальние спальни отдали под детские. Они практически симметричны, только в одной из них по центру появилась общая гардеробная. Самую маленькую комнату зонировали и выделили уголок под спальню у окна. Ближе к проходу установили диван. И для этого, конечно, стоит снести единственную ненесущую стену.

Вариант 4
Почти все стены в квартире несущие, но изменить геометрию пространства всё же можно. Авторы этого проекта увеличили санузлы за счёт коридора, встроили шкаф для верхней одежды в холле и предусмотрели удобный вход в детскую, который при этом не съедает пространство гостиной. Балкон в спальне утеплили и присоединили, чтобы разместить там мини-кабинет.

Вариант 5
Для семьи с двумя взрослыми детьми или ситуации, когда под одной крышей живут три поколения, необходимо три полноценные спальни. Для этого можно сделать масштабную перепланировку, на которую мало кто решается – перенесли кухню в коридор и сделать её проходной. Тогда на месте бывшей кухни появится ещё одна дополнительная спальня, вход в которую перенесён из гостиной. Это позволяет существенно расширить санузел.

Если вы хотите видеть больше такого в своей ленте — ставьте лайк. Подписывайтесь на канал и узнавайте свежие тренды в дизайне интерьеров.
Автор: Павел Шелягин.
Дизайн квартиры П44Т. Варианты дизайна в разных стилях
Дизайн 2-комнатной квартиры-распашонки п44т – работа не из легких, но особенности планировки позволяют применить практически любое направление в отделке.

Многие владельцы, чтобы получить именно ту квартиру, которая виделась в мечтах, подвергают свое жилье капитальному перекраиванию.
Главное, что стоит помнить, выбирайте одно направление в оформлении и придерживайтесь его во всем доме, включая санузел, тогда ваш интерьер будет выглядеть органично и красиво.

Если хозяева обожают устраивать дома приемы для гостей и дружеские посиделки, то оптимальным решением станет объединение кухни с гостиной.
Лофт
Этот стиль выбираю творческие люди, не признающие классический дизайн и любящие простор и свободу. Стиль лофт подразумевает максимально открытое пространство в помещении, поэтому часто при оформлении убираются перегородки между большой комнатой, кухней и коридором. Оставляют нетронутыми только спальню и санузел. А общее пространство зонируют стеклянными перегородками.

Пространство двухкомнатной квартиры открывает массу вариантов для дизайнерских перепланировок.
Основная особенность стиля – это отделка помещения натуральными материалами с естественной немного грубоватой фактурой. Это деревянный пол и балки на потолке, наличие кирпичной кладки в интерьере. Светлые оттенки в отделке с необработанными поверхностями. При оформлении этого стиля сочетают современные предметы интерьера со старинными безделушками на разных полочках. Минимум мебели в интерьере, но она должна быть многофункциональной. Наличие эркера наиболее выигрышно подчеркнет это направление.

Оформление интерьера в квартире распашонки имеет массу вариантов.
Шведский
Если вы приверженец чистоты и лаконичности в интерьере своего дома, лучшего стиля не найти. Чтобы создать этот стиль в своей квартире, особых усилий не потребуется. Не надо убирать перегородки между комнатами, светлые оттенки в отделке и мебели сделают ваш дом светлым и просторным.
Спокойные пастельные оттенки способствуют полноценному отдыху.
Преимущество в отделке помещения отдается белому цвету и мебели из натурального дерева, особенно гармонично в таком интерьере смотрится беленый дуб.

Разработать практичный дизайн и создать привлекательный внешний облик квартиры можно и без перепланировки.
Чтобы комната не выглядела безлико, внимание акцентируют на мягкой мебели с яркими подушками и коврика под ногами в цветах Скандинавии – это кремовый, коричневый, бежевый и серый во всех оттенках. Минимум декора в помещении, много зеркал и светильников из прозрачного стекла придадут вашему дому простор.

Профессиональные дизайнеры рекомендуют использовать под спальню ту комнату, что больше.
Современный
Особенности данного стиля – простые, четкие формы мебели и светлые тона в отделке.
Минимум декора в интерьере, компенсируется яркими контрастными акцентами. Это может быть любой цвет на ваше усмотрение: черный, красный, темно зеленый или серый.

В условиях распашонки можно воплотить абсолютно любое стилистическое направление.
Для тех, кто не любит яркие контрасты, акцентом могут стать теплые оттенки натуральных материалов в отделке пола и мебели на кухне. Стиль подразумевает максимальную функциональность всех предметов в доме.
Минимальный набор мебели в квартире, множество глянцевых и зеркальных поверхностей создают ощущение воздушности и простора в помещении.

Характер интерьера каждой комнаты будет зависеть только от вкуса владельцев.
Викторианский
Стиль роскоши во всех ее проявлениях – это массивная добротная мебель из натурального дерева с резными ножками и разноцветной обивкой. Отделка помещения только деревом – это могут быть стеновые панели и паркет на полу из древесины. В отделке помещения должны преобладать два цвета – это бордовый и коричневый.

Консерваторы и любители традиций выбирают классику.
Обязательные атрибуты стиля – это наличие камина в гостиной, массивные полки с книгами во всю стену, картины в массивных рамах с позолотой и множество старинных вещей в интерьере. Стиль солидности, который подчеркивается натуральными материалами в отделке и богатым текстилем в обивке мебели, шторах на окнах и яркими коврами под ногами.

В случаях, когда старшее поколение любит тяжелый шик, рекомендуют обратить внимание на ампир, барокко или античные интерьеры.
Если вы сомневаетесь в своих силах, то посмотрите готовые дизайн проекты 2 комнатной квартиры п44т – распашонки в интернете, множество вариантов и направлений помогут сделать правильный выбор. Придерживаясь одного из выбранных стилей, вы создадите в своем доме очень уютную и теплую атмосферу для всех домочадцев.

Если владельцы сомневаются в своих силах, то можно пригласить дизайнера для платной консультации.
Планировка 3 комнатной квартиры . Какой выбрать стиль и дизайн интерьера трехкомнатной квартиры П44Т
Стилистический выбор при ремонте практически ничем не ограничен, поскольку достаточно высокие потолки и площадью 93 кв.м. дают простор дизайнерской мысли.

Светлая и просторная гостиная в современном стиле

В отделке использованы современные натуральные материалы – пробковые панели, бамбуковые обои и паркетная доска
Органично воспринимается дизайн 3-комнатной квартиры П44-Т в разном стиле:
- урбанистический, скандинавский или японский минимализм;
- прованс, шале и другие виды кантри;
- восточный колорит или другой этнический акцент;
- хай-тек или лофт;
- контемпорари, фьюжн, другой современный микс.

Скандинавский интерьер практичен, прост в оформлении и идеален для комнат с окнами на север

Красивая гостиная в японском стиле

Лаконичность и простата минимализма – только самое необходимое и минимум декоративных “штучек”

Для хай-тека характерно всё самое современное – мебель, техника и отделочные материалы
Основная цветовая гамма зависит от личных предпочтений и естественного освещения комнат, выходящих на разные стороны. В северных широтах специалисты предлагают компенсировать недостаток солнечных лучей широким применением ярких акцентов на светлом или белом фоне.

Милая и уютная спальня в стиле прованс

Непритязательная атмосфера в спальне стиля кантри способствует расслаблению и отдыху

Лофт обычно выбирают ценители неординарных решений

Контемпорари предоставляет свободу творчества и в наше время часто пересекается с другими направлениями интерьера

Фьюжн никогда не бывает скучным, ведь в нем причудливо переплетаются элементы самых разных стилей, наиболее близких хозяевам квартиры
Предпочитаемая гамма в зависимости от стороны света:
| 1. | Север | Теплая гамма (желтые, бежевые, абрикосовые, розовые и бордовые тона, терракота). |
| 4. | Восток | Тона, усиливающие освещение, когда солнце идет к закату (апельсиновый, сиреневый, желтый, красный). |
Ремонт рекомендуется завершить грамотным подбором мебели, соответствующей стилистике дизайна. Для современной детской можно выбрать двухъярусную мебель, если дизайн готовят для двоих мальчиков.

В комнате для двоих детей всё должно быть умножено на два

Два рабочих места около окна и две кровати, размещенные изголовьем друг к другу

Места для учебы организованны на общей столешнице, установленной вместо подоконника

Цветовая палитра из бежевого и терракотового цветов отлично вписалась в интерьер этой комнаты для мальчиков-подростков
Не рекомендуется оставлять старые «шедевры» советской и постсоветской эпохи, даже если это любимая мягкая или корпусная мебель. Замените фасады на новые, если это встроенная мебель. А комфортный мягкий уголок с креслами для объединенной гостиной-столовой лучше осовременить перетяжкой. Экокожа и флок с тефлоном отталкивает жидкости загрязнения, если случайно опрокинуть чашку чая или уронить бутерброд с вареньем.
П 44 планировка двухкомнатная квартира с размерами. Типовая серия дома П44 с планировками квартир
Одна из популярнейших серии построенных в Москве. Свое название она получила за счет панельной структуры, при этом форма дома обычно принимает вид буквы «П» или «Г». Дома этой серии введены в эксплуатацию еще с конца 70-х гг. по 2000г. Существует уже в различных модификационных версиях, таких как, И-1731 (несколько домов, построенные в конце 90-х гг., которые отличаются декоративными панелями нижних этажей и мягкой облицовкой верхних); П-44Т (с 1997г. по настоящее время, улучшилась внешняя отделка здания, был добавлен мансардный этаж); П-44К (с 2006г. по настоящее время, имеют компактную форму, в связи с чем в планировках этажей присутствуют только одно- и двухкомнатные квартиры); П-44M (с 1997 по 2000 гг, в планировках появились четырехкомнатные квартиры и мансарды, были добавлены эркеры и дополнительные санузлы), П-44Т25 (с 2005г. по настоящее время, особенностями этой серии являются панорамные окна в квартирах с зимнем садом и просторные кухни до 16м2); ДомНад (с 2015г. по настоящее время, ярко бросающейся в глаза особенностями стали плоские фасады, отсутствие эркеров и «спрятанные» за фасадными панелями лоджии); ДомРик (с 2015г. по настоящее время, в системе отопления установлены обновленные счетчики учета тепла, в системах водоснабжения и отопления применены металлополимерные трубы).
Жилые секции в доме серии П-44 имеют два вида – угловой и рядовой. Если серия рядовая, то на этаже расположено по четыре квартиры: две двухкомнатные с площадями 50.2 кв.м. и 57.8 кв.м., одна однокомнатная с общей площадью 37.8 кв.м и одна трехкомнатная с общей площадью 73.8 метра. В угловой секции только двух- и трехкомнатные квартиры. Внутренние стены являются несущими с шагом 3,0 и 3,6 м бетонные панели толщиной 18 см. Наружные стеновые панели – навесные, железобетонные трехслойные панели толщиной 22 и 28 см, облицованные крупноразмерной глазурованной керамической плиткой. Панели перекрытий опираются на внутренние стены. Для фундамента использовалась монолитная железобетонная плита на естественном основании.
В однокомнатных квартирах роль несущей становится стена между кухней, на ней лежат плиты перекрытия и если стены не будет, то плиты упадут. Максимум что можно сделать, так это проем в стене между кухней и комнатой шириной в общих случаях. Тем не менее, планировка сама по себе, достаточно удобная: комнаты изолированы, прихожие большие, кухни не менее 8 кв.м. В серии жилых домов П-44 к минусам можно отнести маленькую гостиную в «трешке» — всего 11 кв.м.; стандартную для того времени высоту потолков в 2.64 метра. Также, многие жильцы жалуются на сыроватость последних моделей и на то, что в некоторых домах, полы балконов сделаны криво.
В домах предусмотрены такие удобства, как 2 лифта: грузоподъемностью 320 и 500 кг с верхним расположением машинного помещения; а также мусоропроводы с загрузочным клапаном на каждом этаже. Количество этажей варьируется от 8 до 17, в связи, с чем количество подъездов от 2ух и более. В качестве противопожарных мероприятий для предотвращения задымления путей эвакуации в доме предусмотрены системы дымоудаления и подпора воздуха, которые включаются автоматически по сигналу квартирных тепловых извещателей и от кнопок, установленных в нишах пожарных кранов на каждом этаже. В качестве дублирующих путей пожарной эвакуации жителей в 2-16-этажах предусмотрены переходы по балконам в смежные секции, а в лоджиях квартир в торцах здания – люки и стремянки в уровне 2-16-го этажей.
В связи с тем, что дома данной серии, могут прослужить еще очень долго, то не стоит надеяться на снос в ближайшем времени.
Планировка 3 х комнатной квартиры в серии П44Т. Описание серии П44Т
П-44Т – панельная серия домов с наружной отделкой «под кирпич», разработанная проектным институтом МНИИТЭП. Первые дома появились в 1997 году. Сейчас строительство серии продолжается. Очень много домов серии П-44Т построено в Москве и Московской области.
Серия П-44Т является улучшенной версией типовой брежневки П-44 с более качественной теплоизоляцией, более высокими потолками в квартирах (2,70-2,75 м), с вентиляционным коробом, устроенным не на кухне, а в прихожей.
Дома серии П-44Т могут быть разной этажности – от 9-ти до 25-ти этажей. Но чаще других встречаются 14-ти и 17-ти этажные здания.
Первые этажи являются нежилыми. Там обычно располагаются различные торговые предприятия и офисные помещения.
На этажах по четыре квартиры. Различают торцевые, рядные и угловые секции. Подъезды снабжены пассажирским и грузопассажирским лифтами. В секциях по 20 и 25 этажей три лифта, два из которых грузопассажирских.
Наружные стены дома состоят из железобетонных трехслойных панелей толщиной 30 см. Внутренние несущие стены (межквартирные и межкомнатные) представляют собой ж/б панели толщиной 16 и 18 см. Толщина гипсокартонных перегородок составляет 8 см. Крупноразмерные ж/б плиты толщиной 14 см выступают в качестве межэтажных перекрытий.
Среди плюсов данной серии: изолированные комнаты, хорошая звукоизоляция, раздельные санузлы (совмещенные в однокомнатных квартирах), регулируемое отопительное оборудование, добавление в планировку квартир эркеров, пандусы для инвалидов и возможность оперативного возведения домов, благодаря чему дома серии П-44Т получили столь широкое распространение и возводятся до сих пор.
Недостатком серии П-44Т является множество ограничений при проведении перепланировок квартир. Причиной этого является тот факт, что внутренние стены квартир в основном несущие.
Кроме того, автор проекта дома, институт проектирования МНИИТЭП, запретил в домах, построенных с защитой от прогрессирующего обрушения после 2007 года, делать дверные проемы в несущих стенах и удалять подоконные блоки, что делает невозможным объединение лоджии с внутренними помещениями квартиры.
Но имеется и положительный момент, связанный с перепланировкой внутренних помещений здания. В отличие от квартир в серии П-3 , перегородка, которой гостиная отделена от территории коридора, относится к категории ненесущих (ее толщина всего 80 мм). Следовательно, ее можно демонтировать.
Ремонт 3-х комнатной квартиры п-44. Дом серии П44Т. Разбираем планировки (фото). Почему панельный дом так популярен у покупателей?
Рабираем все типы планировок и цены!
Чаще всего панельные дома относятся потребителем к эконом-сегменту, но есть в России и очень популярные серии панельных домов. Некоторые уже сняты домостроительными комбинатами с производства, но до сих пор пользуются повышенным спросом: серия П44Т, КОПЭ, КОПЭ-Парус, П3М.
Сегодня речь пойдет о серии П44Т, про которую покупатели говорят так:
"Это такой с кирпичиками!"

действительно, фасадная панель стилизована под кирпич (фото из личного архива Vysotsky Estate)
КОГДА И КЕМ СПРОЕКТИРОВАНА?
Данная серия домов производится до сих пор, хотя все меньше заказывается компаниями Застройщиками. Производством занимается ДСК1.
Спроектирован дом в Московском научно-исследовательском и проектном институте типологии, экспериментального проектирования. Унаследовал основу квартирографии от серии П44, также популярной у потребителей .

Многие спальные районы Москвы застроены домами серии П44 (фото из личного архива Vysotsky Estate)
Серия П44Т была запущена уже в постсоветское время в 1997 г. И была очень популярна в период реновации Москвы "эпохи Лужкова"
ТЕХНИЧЕСКИЕ ХАРАКТЕРИСТИКИ

характеран эркерами и скошенными лоджями (фото из личного архива Vysotsky Estate)
Наружные стены - трехслойные железо-бетонные панели (бетон - полистирол - бетон) толщиной до 30 см повышенной теплоизоляции.
Межквартирные и межкомнатные несущие – железо-бетонные панели толщиной 16 и 18 см. Крупноразмерные перекрытия толщиной 14 см по ширине комнат.
Высота потолков: 2.70-2.75 м
Первые этажи серии - нежилые помещения. Часто сдаются под магазин.
Наиболее распространенные дома 14, 17 и 25 этажей.
РАЗБИРАЕМ ПЛАНИРОВКИ
И тут мы доходим до самого интересного. Именно из-за планировок эта серия дома так популярна.
Однокомнатные квартиры в П44Т
Общая площадь: 39,8 м2
Комната: 19 м2
Кухня: 6,9 м2
Санузел совмещенный: 3,6 м2
Прихожая: 7,2 м2

Однокомнатная квартира в П44Т (картинка отрисована в Vysotsky Estate)
Однокомнатные квартиры, как раз ничего примечательного из себя не представляют. Не самая большая площадь. Планировка стандартная. Разве, что заслуживает внимание площадь саунзла, которая позволяет разместить спокойно все необходимое.
В зависимости от района Москвы такие квартиры по данным истории сделок в Сбербанке продавались в 2018-2019 году:
от 5 900 000 до 7 500 000 рублей
Двухкомнатные квартиры в П44Т
Двухкомнатные квартиры в этой серии домов встречаются трех видов: так называемые "линейка", "распашонка"
"Линейка"
Линейка, потому что комнаты расположены по одной стороне дома, окна выходят на противоположную от подъезда сторону.
Общая площадь: 53.4 м2
Комната1: 18,9 м2
Комната2: 11,5 м2
Кухня: 9,7 м2
Санузел раздельный: 2,8 +1 м2
Прихожая: 2,6 м2
Такая квартира не самая популярная в этом доме. Но из-за большой кухни пользуется повышенным спросом.
В зависимости от района Москвы такие квартиры по данным истории сделок в Сбербанке продавались в 2018-2019 году:
от 8 000 000 до 10 500 000 рублей
Двухкомнатная "распашонка"
Большая кухня с эркером играет роль кухни-гостиной

Распашонк
Распашонка, потому что комнаты выходят на обе стороны дома
Общая площадь: 60 м2
Комната1: 18,9 м2
Комната2: 14,8 м2
Кухня: 12,9 м2
Санузел раздельный: 3,9 +1 м2
Прихожая: 9,5 м2
Самая популярная квартира в этом доме. Часто ее покупают взамен 3-комнатной квартиры.
В зависимости от района Москвы такие квартиры по данным истории сделок в Сбербанке продавались в 2018-2019 году:
от 9 500 000 до 12 500 000 рублей
Трехкомнатные квартиры в П44Т
мы собрали планировки на одной картинке
Все трехкомнатные квартиры в П44Т имеют формат "распашонки". Большой холл при входе. Главное отличие только в кухне.
Общая площадь: от 73,1 м2 до 81,2 м2
Комната1: от 18,9 м2 до 19,2 (с лоджией и есть вариант с эркером, что добавляет света)
Комната2: от 14 до 14,8 м2
Комната3: от 11,1 м2 (лоджией) до 20 м2 (с эркером)
Кухня: от 10 до 12,9 м2
Санузел раздельный: 3,9 +1 м2
Прихожая: 9,5 м2
Все варианты трехкомнатных квартир пользуются популярностью.