Расположение розеток в ванной. Где расположить розетки в ванной комнате
Расположение розеток в ванной. Где расположить розетки в ванной комнате

Еще до начала 2000 годов розетка в ванной была под запретом, что было прописано в положениях ПУЭ. С появлением новых материалов и способов монтажа, одни требования ужесточились, а другие стали мягче, в результате чего розетка для ванной, хоть и с рядом оговорок, но перестала попадать в разряд запрещенных решений.
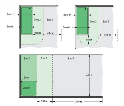
Зонирование ванной комнаты, согласно требованиям ПУЭ

В первую очередь оговорки, про которые идет речь, регламентируют место, где разрешена установка розетки в ванной. Для этого в помещении отмечается где будут смонтированы ванная, душ, умывальник или унитаз – т.е. любой предмет к которому по трубам подводится вода.
- Каждое из мест установки считается так называемой «зоной 0», в которой категорически запрещена установка розеток. В ней можно использовать только те электроприборы, что непосредственно предназначены для ванной комнаты, имеют защиту от проникновения воды и питаются от напряжения не выше 12 вольт.
- Поверхность стены вверх и вниз от нулевой зоны называется «зона 1», в которой также исключены любые розетки, но разрешается подключать светильники с классом защиты IP-x5, позволяющим устройству выдерживать поливание водой. Правила не запрещают располагать здесь и бойлеры, но на практике они будут только мешать.
- На расстоянии 60 см влево и вправо от габаритов первой зоны идет «зона 2». Здесь также запрещен монтаж розеток, но разрешена установка электроприборов, имеющих класс защиты IP-x4, что позволяет устройству находиться под дождем. Еще расположение зоны 2 зависит от наличия стационарной перегородки между душем и остальным помещением. Если она есть, то тогда зона высчитывается как окружность радиусом 60 см и с центром в крайней точке перегородки.
- Расстояние 2,4 метра от границы второй зоны называется «зона 3», считающейся относительно безопасным расстоянием до источника воды. Здесь разрешено устанавливать розетки 220 вольт с классом защиты от водяных брызг IP-x4 и дополнительно оборудованные соответствующей защитой.
Розетка для шкафа в ванной. Розетки в ванной комнате: общие требования
В ванной розетки чаще используются для подключения стиральной машины, фена, электробритвы, зеркал с подсветкой, полотенцесушителя и других бытовых приборов. Приборы устанавливаются согласно нормам, указанным в ГОСТе. Помещение делится на зоны – их 4, от 0 до 3. Установка розеток разрешена только в 3 зоне, устройства ставят влагозащищенные класса не менее IPx4.
Высота установки от пола
Стандарты высоты, на которых устанавливаются розетки, равны 0,9 – 1 м от поверхности пола. Но строгих правил нет, и при монтаже руководствуются удобством применения. Некоторая современная документация устанавливает нормы, кардинально отличающиеся от общепринятых стандартов.
При планировке многоквартирных домов выбирается высота 40-45 см от уровня бетонной плиты (в итоге получается 30-35 см над полом). В требованиях ПУЭ указано максимальное расстояние – 1 м, поэтому монтировать электророзетки можно ниже, но для ванной рекомендуется устанавливать не ниже 0,3 м от пола. В идеале расстояние от 0,5 над уровнем пола.
Нормы установки и правила размещения
Деление ванной комнаты происходит на 3 зоны:
- 0 – там, где вода (душевая кабина, раковина);
- 1 – прилегающие стены, рядом с нулевой зоной;
- 2 – на расстоянии 60 см от краев нулевой зоны;
- 3 – условно безопасная зона, находится за пределами второй зоны.
По нормам ПУЭ устанавливать розетки можно только в третьей зоне. Распределительную коробку лучше поместить за пределами ванной комнаты.
Класс влагозащищенности розеток — не ниже IPx4.
Мощность
Розетки отличаются по силе тока, на которую рассчитаны. В ванной используются приборы двух типов:
- для фена, бритвы и других небольших устройств используются устройства на силу тока 8 А;
- для стиральной машины или нагревателей применяются устройства на 16 А.
Розетки должны иметь заземление и влагозащищенный экран.
Степень влагозащищенности как определяется
Степень защиты от влаги – важнейший показатель для розеток , который будет установлен в ванной. Класс влаго- и пылезащищенности маркируется как IP и 2 цифры. Первая цифра определяет степень защиты от пыли и твердых частиц, вторая – от влаги. Для ванных применяются изделия с классом IPx4 и выше – это значит, что розетке не страшны брызги воды, попадающие со всех сторон. На устройстве обязательна крышка и шторки на контактах.
Розетка для ванной legrand. Valena розетки и выключатели с защитой от влаги IP44
Нет в наличии
Legrand 770092, Valena Выключатель двухполюсный влагозащищенный, одноклавишный, IP 44, белый
577 руб.
812,96 руб.
Нет в наличии
Нет в наличии
Legrand 770098, Valena Переключатель влагозащищенный, двухклавишный, IP 44, белый
575 руб.
810,41 руб.
Нет в наличии
В корзину
Legrand 774101, Valena Выключатель влагозащищенный, одноклавишный, IP 44, слоновая кость
305 руб.
429,72 руб.
В корзину
В корзину
Legrand 774106, Valena Переключатель влагозащищенный, одноклавишный, IP 44, слоновая кость
352 руб.
495,71 руб.
В корзину
В корзину
Legrand 774120, Valena Розетка влагозащищенная с крышкой, IP 44, слоновая кость
436 руб.
614,68 руб.
В корзину
Нет в наличии
Legrand 774192, Valena Выключатель двухполюсный влагозащищенный, одноклавишный, IP 44, слоновая кость
577 руб.
812,96 руб.
Нет в наличии
Нет в наличии
Legrand 774198, Valena Переключатель влагозащищенный, двухклавишный, IP 44, слоновая кость
575 руб.
810,41 руб.
Нет в наличии
В корзину
Legrand 774201, Valena Выключатель влагозащищенный, одноклавишный, IP 44, белый
305 руб.
429,72 руб.
В корзину
В корзину
Legrand 774206, Valena Переключатель влагозащищенный, одноклавишный, IP 44, белый
352 руб.
495,71 руб.
В корзину
В корзину
Legrand 774220, Valena Розетка влагозащищенная с крышкой, IP 44, белая
436 руб.
614,68 руб.
В корзину
Розетки и выключатели Valena IP44 предназначены
для установки во влажных помещениях.
Розетки и выключатели со степенью защиты IP44 обеспечивают защиту от
проникновения посторонних предметов размером 1 мм или более.
Защиту от брызг любого направления.