Дизайн / интерьер / стиль

Незаурядные дизайнерские решения!

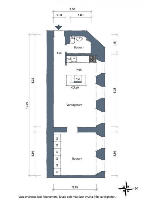
Уют и стиль в небольшой квартире (47 кв. м)

11.08.2019 в 20:44

В проектировании небольших квартир зачастую первоочередная цель сводится к созданию функционального и вместительного пространства, красота же обычно отходит на второй план. В этой двухкомнатной квартире площадью всего 47 кв. м как раз хорошо все — и внешность, и начинка. Дизайнерам удалось добиться максимального удобства для хозяев, и при этом сделать это со вкусом! Приятный текстиль, рамки на стене, красивый цвет стен в спальной, живые растения — вот несложный секрет этой очаровательной квартиры!

Уют и стиль в небольшой квартире (47 кв. м)Уют и стиль в небольшой квартире (47 кв. м) 01Уют и стиль в небольшой квартире (47 кв. м) 02Уют и стиль в небольшой квартире (47 кв. м) 03Уют и стиль в небольшой квартире (47 кв. м) 04Уют и стиль в небольшой квартире (47 кв. м) 05Уют и стиль в небольшой квартире (47 кв. м) 06Уют и стиль в небольшой квартире (47 кв. м) 07Уют и стиль в небольшой квартире (47 кв. м) 08Уют и стиль в небольшой квартире (47 кв. м) 09Уют и стиль в небольшой квартире (47 кв. м) 10Уют и стиль в небольшой квартире (47 кв. м) 11Уют и стиль в небольшой квартире (47 кв. м) 12Уют и стиль в небольшой квартире (47 кв. м) 13Уют и стиль в небольшой квартире (47 кв. м) 14Уют и стиль в небольшой квартире (47 кв. м) 15Уют и стиль в небольшой квартире (47 кв. м) 16Уют и стиль в небольшой квартире (47 кв. м) 17Уют и стиль в небольшой квартире (47 кв. м) 18Уют и стиль в небольшой квартире (47 кв. м) 19Уют и стиль в небольшой квартире (47 кв. м) 20Уют и стиль в небольшой квартире (47 кв. м) 21Уют и стиль в небольшой квартире (47 кв. м) 22Уют и стиль в небольшой квартире (47 кв. м) 23Уют и стиль в небольшой квартире (47 кв. м) 24Уют и стиль в небольшой квартире (47 кв. м) 25Уют и стиль в небольшой квартире (47 кв. м) 26