Профессиональный подход к перекрытию потолка частного дома
- Профессиональный подход к перекрытию потолка частного дома
- Связанные вопросы и ответы
- Что такое перекрытие потолка частного дома
- Какие материалы используются для перекрытия потолка частного дома
- Какие факторы влияют на выбор материалов для перекрытия потолка частного дома
- Какие этапы необходимо пройти для перекрытия потолка частного дома
- Как выбрать подходящий дизайн перекрытия потолка частного дома
- Какие особенности должен учитывать специалист при выборе дизайна перекрытия потолка частного дома
- Как измерить площадь потолка для перекрытия
- Как посчитать квадратуру потолка прямоугольной комнаты
- Как найти площадь потолка в помещении трапециевидной формы
- Как высчитать площадь потолка треугольного помещения
- Как вычислить площадь потолка округлой формы
- Как посчитать квадратные метры криволинейного потолка
- Как рассчитать квадратуру потолка комнаты с косыми стенами
- Какие инструменты и материалы необходимы для перекрытия потолка частного дома
Профессиональный подход к перекрытию потолка частного дома

Устройство потолка в частном доме с холодным чердаком отличается подходом к утеплению и установке чернового настила. Если высота помещения позволяет, то последний крепят, как и в предыдущем случае, снизу балок. При желании поднять потолок используют метод настила чернового покрытия. Для этого шпунтованную доску, фанеру или ОСБ фиксируют со стороны чердака. Для листового материала подбирают толщину от 15 мм, что необходимо для устойчивости к нагрузкам от утеплителя и вещей, которые будут храниться на чердаке.
Доску крепят встык, не оставляя щелей. Фанеру и ОСБ-плиту режут на части, чтобы уложить их с переплетением шва. Элементы прикручивают к потолочным балкам саморезами. Шляпки последних утапливают, чтобы они не порвали слой пароизоляции. Мембрану укладывают поверх с нахлестом и проклейкой швов, как было описано выше. Делают заворот на стены высотой в 15 см. На полотне размещают утеплитель. Для холодного потолка используют:
- минеральную вату;
- камку (Взморник);
- керамзит;
- стекловату;
Варианты со 2 по 4 используют реже, хотя и обходятся они дешевле минеральной или базальтовой ваты. Это объясняется необходимостью укладки большего слоя, что увеличивает вес перекрытия в частном доме. Листовой утеплитель поверх потолочного перекрытия в частном доме укладывают со смещением швов для ликвидации мостиков холода. Заранее важно подумать о способе перемещения по чердаку. Это можно сделать укладкой дополнительных балок перпендикулярно потолочным, между которыми и размещают утеплитель. Поверх укладывают второй слой пароизоляции.
Если черновой потолок укладывался методом подшивки, то для холодного чердака может потребоваться больший слой утеплителя, чем в варианте с мансардой. При нехватке высоты балок дополнительно набивают брус, который приподнимет пол со стороны чердака и создаст вентиляционный зазор для пароизоляции.
Информация! Если для утепления решено использовать пенопласт или экструдированный пенополистирол, то пароизоляцию можно не укладывать. Достаточно той, что находится под кровлей. Материалы не впитывают влагу, поэтому не теряют изоляционных свойств.
Связанные вопросы и ответы:
Вопрос 1: Что такое перекрытие потолка
Ответ: Перекрытие потолка - это конструкция, которая создается над комнатой или помещением с целью защиты от атмосферных осадков, а также для улучшения теплоизоляции и звукоизоляции. Перекрытие потолка может быть как внутренним, так и внешним, и может выполняться из различных материалов, таких как бетон, дерево, металл и т.д.
Вопрос 2: Какие материалы можно использовать для перекрытия потолка частного дома
Ответ: Для перекрытия потолка частного дома можно использовать различные материалы, такие как бетонные плиты, деревянные балки, металлические профили, гипсокартон и т.д. Выбор материала зависит от многих факторов, таких как стиль дома, климатические условия, финансовые возможности и т.д.
Вопрос 3: Как выбрать материал для перекрытия потолка частного дома
Ответ: Выбор материала для перекрытия потолка зависит от многих факторов. Важно учитывать климатические условия, стиль дома, финансовые возможности и т.д. Также необходимо учитывать технические характеристики материала, такие как прочность, теплоизоляционные свойства, звукоизоляционные свойства и т.д.
Вопрос 4: Как выполнить внутреннее перекрытие потолка частного дома
Ответ: Внутреннее перекрытие потолка частного дома выполняется с помощью деревянных или металлических конструкций, которые крепятся к стенам и потолку. Затем на эти конструкции устанавливаются гипсокартонные панели или другие материалы, которые образуют поверхность потолка. Внутреннее перекрытие потолка может выполняться как для улучшения внешнего вида комнаты, так и для улучшения теплоизоляции и звукоизоляции.
Вопрос 5: Как выполнить внешнее перекрытие потолка частного дома
Ответ: Внешнее перекрытие потолка частного дома выполняется с помощью бетонных плит, металлических профилей или других материалов, которые крепятся к стенам и крыше дома. Затем на эти материалы устанавливается покрытие, которое защищает дом от атмосферных осадков и улучшает внешний вид дома. Внешнее перекрытие потолка также может выполняться для улучшения теплоизоляции и звукоизоляции.
Вопрос 6: Как обеспечить теплоизоляцию при перекрытии потолка частного дома
Ответ: Теплоизоляция при перекрытии потолка частного дома обеспечивается с помощью различных материалов, таких как минеральная вата, пенополистироль, стекловаты и т.д. Эти материалы устанавливаются между конструкциями перекрытия и потолка, образуя слой теплоизоляции. Также важно учитывать теплопроводность материалов, которые используются для перекрытия потолка, и выбирать те, которые имеют низкую теплопроводность.
Что такое перекрытие потолка частного дома
Шаг первый – подшивка потолка . Наиболее простым считается способ с использованием обычных досок, лучше шпунтованных. Если берется обрезное изделие, его толщина должна составлять 25-30 миллиметров. Данный традиционный материал имеет одно важное преимущество, состоящее в том, что даже при большом промежутке между балками деревянные доски не провисают, по этой причине дополнительная обрешетка не потребуется.
При этом следует не забывать, что:
- для крепления каждой доски потребуется минимум 2 гвоздя;
- крепежные изделия вбивают «в распор», таким образом, чтобы угол по отношению к вертикали края доски составлял 45 градусов. Благодаря тому, что гвоздь сшивает между собой доски, он не позволяет при высыхании древесины разойтись шву.
Шаг второй – изоляция перекрытия . Для этого:
- В промежуток между балками на черновом потолочном перекрытии укладывают пароизоляционный слой. Для его создания задействуют пергамин, но подойдет и полиэтиленовая, самая обычная пленка. Она необходима, поскольку звукоизоляционный материал не должен попадать в щели между досками и не впитывать влагу.
- Для обеспечения звукоизоляции используют минеральную вату 100-миллиметровой толщины. На практике часто также применяют смесь опилок и извести или сухой песок в качестве звукоизоляции на потолок. Размер звукоизоляционного слоя должен составлять около ¾ высоты балки.
- Гидроизоляция потолка в частном доме в данном случае не требуется, но при использовании минваты, ее слой не даст мелким волокнам изоляционного материала попадать в воздух.
Совет:
Не делайте ОШИБКИ в расчётах!
Используйте строительные калькуляторы онлайн - расчёт строительных материалов и конструкций для ремонта и стройки быстро и точно.
Данный этап предполагает:
- Укладку лаг и настилку напольного покрытия. Желательно использовать доски толщиной 30-40 миллиметров. Также задействуют ОСП или фанеру, уложив в один толстый слой или в два, но с перехлестом швов более тонким листом.
- Затем усиливают место выхода на мансарду брусом, толщина которого должна быть аналогичной этому параметру у балок. В том случае, когда мансардой временно не пользуются, выход на нее прикрывают щитом с целью уменьшения теплопотерь.
Какие материалы используются для перекрытия потолка частного дома
При строительстве многие пытаются сэкономить, игнорируя важность утепления потолка частного дома между этажами. В итоге при эксплуатации наблюдаются значительные теплопотери и большой перерасход отопления и электричества, а также ощущается значительная нагрузка на котел и другие устройства, особенно в холодное время. Рассмотрим основные причины, по которым в доме нужно утеплять потолок.
- Сохранение тепла. Теплоизоляционное изделие препятствует быстрому выходу тепла. Особенно необходимо выполнять утепление чернового потолка в частном доме с неотапливаемым подкровельным пространством.
- Экономия средств. Утепление и обустройство бетонного, деревянного, кирпичного потолка позволяет наилучшим образом сохранить тепло. Благодаря дополнительному утеплению потолка можно экономить на отоплении.
- Создание комфорта. Укладка своими руками на потолок утеплителя дополнительно обеспечивает хорошую шумоизоляцию. В частности, вас будет меньше беспокоить шум от дождя и града.
- Прохлада в летний период. Теплоизоляторы не только сохраняют тепло, но и препятствуют проникать нагретому воздуху с чердака на нижние этажи. Правильная подшивка и утепление потолка по деревянным балкам сохранит комфортный микроклимат летом.
Потолок деревянного дома можно утеплить как изнутри, так и в самом помещении. Все зависит от особенностей самого строения, типа изоляционного изделия и индивидуальных пожеланий. При выборе способа утепления следует отметить, что внутреннее утепление уменьшает высоту потолка. Поэтому если в деревянном доме потолки невысокие, лучше всего пошаговое утепление производить снаружи, с чердака.

Какие факторы влияют на выбор материалов для перекрытия потолка частного дома
Металлические балки перекрытия производят из низколегированной или углеродистой стали.
Металлические балки являются более долговечным материалом, чем деревянные, и имеют более длительный эксплуатационный срок. За счет их прочности можно сэкономить пространство, уменьшив толщину самого перекрытия. Стоит заметить, что перекрытие с использованием металлических балок используется крайне редко, чаще строители останавливаются на деревянном перекрытии.
Проемы между балками заполняют при помощи смеси легкого бетона либо деревянных щитов. По весу один квадратный м такого перекрытия превышает 400 кг.
При помощи металлических балок своими руками можно перекрыть пролеты больших размеров, от четырех метров и больше. Металлическое перекрытие является негорючим материалом и проявляет высокую степень устойчивости к различным биологическим факторам типа гнили или термитов.
К недостаткам этого перекрытия следует отнести склонность к образовании коррозии в местах с повышенным уровнем влажности. Перекрытие из такого материала обладает низкими звуко- и теплоизоляционными свойствами. Эту ситуацию можно исправить, если концы балок обмотать при помощи войлока.
В большинстве случаев в качестве несущего элемента используют прокатный профиль: уголки, двутавр, швеллер. Во время монтажных работ между балками укладывают плиты из железобетона толщиной до девяти сантиметров. Сверху наносится слой железобетонной стяжки и шлака.
Для такого типа перекрытия понадобятся следующие материалы:
- металлические балки;
- сборные железобетонные плиты;
- штукатурная сетка;
- гидроизоляционные материалы;
- дощатый настил.
В редких случаях для перекрытия в частном доме используют железобетонные балки. Их недостаток в том, что работу невозможно выполнить своими руками. Обязательным моментом является использование грузоподъемной техники.
Какие этапы необходимо пройти для перекрытия потолка частного дома
Для этого многого не нужно. Достаточно вооружиться рулеткой, ручкой или карандашом и двойным тетрадным листом в клеточку. В первую очередь нужно измерить длину каждой стены отдельно и периметр в целом. Это необходимо для последующих расчётов нужного количества потолочных профилей и установления размера профиля направляющего.
Затем все замеры переносятся на тетрадный лист схематически с сохранением масштаба. Результатом должен стать чертёж потолка. Далее надо продумать и нанести схематически места прохождения каркаса и креплений подвесов.
При составлении разметки для каркаса надо учесть такие моменты:
- Крепление продольного профиля осуществляется при шаге 40 и 60 см из-за веса гипсокартона. Решение принимается индивидуально. Частота увеличивается пропорционально величине материала. Т.е. тонкому ГКЛ в 9,5 мм достаточно будет шага в 60 см, а более толстому рекомендуется шаг уменьшать до 40 см. Шаг рекомендуется выставлять цифрами, кратными ширине листа (120 см), это существенно облегчит расчёты.
- Крепление поперечного профиля лучше делать при шаге 50 см. Такой размер будет кратным длине любого листа гипсокартона и также сделает расчёты проще.
- Сразу же отмечается на схеме разводка электропроводки и местоположение будущего размещения светильников.
Расчёты по необходимым материалам
Расчёты довольно просты и по силам даже школьнику. Но проводить их нужно, чтобы не тратить лишние средства на материалы.
- Для определения количества направляющих планок, которые будут крепиться к стенам под потолком, и служить опорой каркасу, нужно длину периметра помещения разделить на длину профиля. Условно, если периметр составляет 22,4 м, а длина профиля – 3 м, то понадобится 7,47 шт. профиля. Соответственно следует купить 8 планок.
- Для определения количества линий продольных и поперечных профилей необходимо длину и ширину помещения по очереди разделить на размер шага продольного и поперечного профилей соответственно и отнять единицу. Полученную цифру округлить в большую сторону. Условно, длину помещения в 5,6 м делим на шаг в 0,6 м и отнимаем единицу. Полученный результат 8,33 округляем до 9. Аналогично поступаем с шириной помещения, только подставляем наш 0,5 м.
Арка из гипсокартона на любой вкус – как сделать красиво и быстро
- Для определения общей длины потолочного профиля следует длину помещения умножить на полученное количество линий (описано выше), затем ширину также умножить на второе число линий. Результаты этих двух умножений сложить. Полученная цифра и будет общей длиной необходимого профиля.
- Так как длина профиля меньше длины комнаты, то соединить части каркаса можно с помощью крабов. Для определения нужного количества этих крабов достаточно посчитать число пересечений продольных профилей с поперечными.
- Далее нужно рассчитать необходимое количество листов гипсокартона.
- Также по схеме желательно подсчитать нужное количество прямых подвесов, дюбелей-саморезов, шурупов самонарезающих и саморезов.
Нанесение разметки по потолку и стенам
Взяв в помощь гидро- или лазерный уровень, следует определить самую низкую точку потолка. От неё нужно отмерить расстояние в 5 см (если планируется потолок из гипсокартона с подсветкой, то и все 10 см) и нанести линию будущего потолка на стены.
По этой линии нужно проставить отметки для прокладки продольного профиля с интервалом в 60 см (или 40) на одной стенке. На противоположной стене провести аналогичные действия и соединить полученные точки в линии. В результате получится несколько параллельных друг с другом и смежными стенами линий, отстоящих между собой на 60 (40) см.
Подобную работу провести и со второй парой стен, только шаг изменить на 50 см.
Как выбрать подходящий дизайн перекрытия потолка частного дома
Для отделки потолка в частном доме используется огромное количество материалов. Обшивка может быть однослойной и многослойной. Особенности первого вида:
- невозможно использовать встраиваемые светильники;
- как правило, нужно тщательно выравнивать основание, поскольку материал только выделит недостатки потолка либо сцепление с поверхностью будет плохим, расход дорогого сырья увеличится.
К многослойной отделке можно отнести подвесные и натяжные конструкции. Для всех видов характерны:
- образование запотолочного пространства, в которое можно установить встраиваемые споты, спрятать коммуникации, скрыть утеплитель, подсветку;
- необязательно идеально выравнивать базовое основание.
Далее — ТОП-20 распространенных материалов для ремонта потолка в частном доме.
Покраска
Это один из самых применяемых из-за легкости способов отделки своими руками в частных домах. Рынок предлагает серьезный ассортимент ЛКМ. В интерьерных работах используется несколько видов красок:
- Акриловые . Образуют прочную пленку, не боящуюся мытья. В линейках фабрик широкий выбор ярких, насыщенных цветов. Слабое место — воздухонепроницаемость.
- Силиконовые . Они хорошо пропускают воздух. Благодаря высокой укрывистости удается замаскировать мелкие дефекты, трещины. Тоже допустима мокрая уборка.
- Силикатные . В основе формулы — жидкое стекло, дающее прочное покрытие. Но этими красками можно воспользоваться только на минеральных поверхностях — штукатурке или шпаклевке. От металла, дерева средство отслаивается.
- Водорастворимые . Это большая группа бюджетных продуктов на водной основе. Их недостаток в недолговечности и быстром истирании при многократной влажной уборке.
- Латексные . Это моющиеся краски на основе искусственного латекса. Они образуют на износостойкую пленку, выдерживающую эксплуатацию даже во влажных помещениях.
- Алкидные . Такие краски получают методом выварки растительных масел с кислотами. Получаются прочные покрытия, сохраняющие внешний вид несколько лет. При нанесении они выделяют токсические вещества, которые могут вызвать отравление.
Какие особенности должен учитывать специалист при выборе дизайна перекрытия потолка частного дома
Строительный рынок в Москве наводнен множеством как традиционных, так и современных материалов для отделки потолка в доме, которые удовлетворят самых искушенных покупателей.

Перечислим наиболее распространенные методы внутренней отделки потолка дома:
- побелка;
- окрашивание;
- гипсовые плинтусы с лепниной;
- декоративная штукатурка с плинтусами;
- подвесные конструкции;
- вагонка из дерева;
- натяжной потолок;
- конструкции из гипсокартонных листов;
- оклейка обоями;
- плиточный пенопласт.
Проведение отделки потолков в частном доме зависит от того, потребуется ли выравнивание чернового покрытия. Дело в том, что, например, монтаж подвесного потолка избавит вас от необходимости выравнивания поверхности. Подвесная конструкция также удачно скроет все коммуникации и электропроводку.

Каждый вид отделки потолка в частном доме обладает своими преимуществами и недостатками. Выбирая способ оформления потолка, учитывайте индивидуальные особенности помещения: высоту потолка, дизайн дома, финансовые возможности, а также ваши личные пожелания.
Далее изучим наиболее распространенные варианты отделки потолка в доме:
- Покраска потолка.
Если вы планируете сделать в доме отделку потолков своими руками, то этот вариант подойдет как нельзя лучше благодаря своей простоте. Традиционно принято покрывать поверхность потолка белой краской. Однако не стоит использовать этот вариант отделки для спальной комнаты или гостиной.
Уделите повышенное внимание выбору цвета краски. Не забывайте о том, что темные оттенки визуально делают пространство меньше, а светлые увеличивают помещение.
В том случае, если вы остановили свой выбор на темном цвете, рекомендуется выполнить стены комнаты в светлых тонах. Современные изготовители производят краски с разнообразными эффектами, что также расширяет возможности отделки потолков в доме.

- Отделка потолка штукатуркой, гипсом или пенополистиролом.
Выполняя отделку потолка в доме своими руками, можно использовать декоративную штукатурку. Она бывает как гладкой, так и текстурной, имитирует мраморное покрытие, а также панели с разнообразными рисунками. Такой вид отделки потолка в доме является достаточно сложным в исполнении.

- Монтаж подвесной конструкции или натяжного полотна.
Часто во время отделки потолка в деревянном доме встает вопрос о том, как убрать из зоны видимости электропроводку, коммуникации и вентиляционную систему. Лучше всего с этой задачей справляется подвесная конструкция из гипсокартона. На ее поверхности устанавливается освещение, обычно это светодиодные ленты, а также точечные светильники.
Оптимально подобранная подвесная конструкция, позволит зрительно расширить комнату. Кроме того, ее можно совместить с натяжным полотном.


- Оклейка потолка обоями.
Отделка потолка в доме также может быть выполнена при помощи декоративных обоев. Можно зонировать помещение с помощью обоев разных цветов. А в детской комнате использовать фотообои.
Перед тем как приступить к поклейке обоев, поверхность потолка необходимо выровнять.

Добавьте оригинальность такому виду отделки потолка, используя декоративные наклейки, чтобы создать, например, эффект светящихся звезд или растений на потолке.
- Установка стеновых панелей.
Отделка потолков панелями — отличное решение. Существуют пластиковые и МДФ панели, лицевая поверхность которых может быть любого цвета, а также имитировать дерево или камень. Отделка потолков, фото которой вы можете наблюдать ниже, выполнена из панелей в виде вагонки.

- Укладка плитки из пенопласта.
Такая внутренняя отделка потолка дома, выполняется следующим образом: большие плитки из пенопласта укладываются на клей на поверхность потолка. Затем плитка может быть покрашена в любой цвет по вашему выбору.

- Потолок из кассет.
Обычно отделку потолка кассетами можно наблюдать в офисных помещениях. Однако в частных домах также используют этот материал для ремонта потолка.
Как измерить площадь потолка для перекрытия
На сегодняшний день можно встретить поверхности потолочной зоны любой геометрической формы. Для того чтобы высчитать площадь потолка в квадратных метрах, необходимо воспользоваться геометрическими формулами, благодаря которым можно произвести расчеты довольно легко и просто. Данная работа не отнимет много времени, если сразу учитывать все рекомендации и правильно измерять помещение.
Как посчитать квадратуру потолка прямоугольной комнаты
Как показывает практика, гораздо легче вычислять квадратуру потолка, имеющего правильную форму – квадрата либо прямоугольника, если при этом в помещении отсутствуют колонны, выступы и прочие декоративные элементы. Для того чтобы посчитать, сколько квадратных метров, необходимо произвести замеры длины и ширины.
Как показывает практика, многие отдают предпочтение лазерной рулетке. Для вычисления квадратных метров длину умножают на ширину. Например, размеры помещения составляют 2*1,5 м, соответственно площадь получится 3 кв. м.
Внимание! Допускается для удобства проводить измерения пола, так как в стандартных помещениях площадь пола и потолка одинаковые.

Как найти площадь потолка в помещении трапециевидной формы
Если рассматривать современные новостройки, то стоит отметить, что в таких квартирах поверхность зачастую бывает в форме трапеции. Не стоит пугаться в данном случае, так как произвести все необходимые работы можно довольно легко и без особых затруднений. Все что требуется, воспользоваться формулой и подставить в нее значение. Формула выглядит следующим образом:
S = ( a + b ) / 2 * h, где:
- b – параллельные стороны;
- h – расстояние между параллельными сторонами.
Допустим, что параллельные стороны имеют следующие размеры: 4 и 6 м, а перпендикулярное расстояние составляет 5 м. Остается подставить данные в формулу и получить результат:
( 4 + 6 ) / 2 * 5 = 10 / 2 * 5 = 5 * 5 = 23 кв. м.

Как высчитать площадь потолка треугольного помещения
В некоторых случаях можно встретить жилые помещения, которые имеют форму треугольника. В данном случае потребуется воспользоваться более сложной формулой, чем для простых форм. При необходимости можно визуально разделить помещение на прямоугольники и высчитать показатели каждой фигуры, в противном случае можно воспользоваться следующей формулой:
S = ½ * h * a, где:
- S – площадь;
- h – высота;
- a – сторона.
Первым делом рекомендуется вычислить показатель высоты треугольника, после при помощи рулетки выясняют показатель от угла до противоположной стороны, затем измеряют стороны фигуры.
Как вычислить площадь потолка округлой формы
Рассчитать, сколько квадратов потолок округлой формы, не так сложно, если придерживаться формулы. В данном деле важно убедиться, что поверхность действительно имеет форму правильного круга.
Самый простой и популярный способ – очертить в круге квадрат и брать его в качестве основы, но в таком случае потребуется приобретать для отделки помещения намного больше строительных материалов.
Второй вариант – провести несколько радиусов. Если они совпадают, то поверхность можно вычислить по обычной геометрической формуле. Для того чтобы вычислить площадь правильного круга, потребуется умножить радиус на число пи, которое равняется 3,14. Полученное произведение возводят в квадрат. Полученный показатель стоит разделить на 2 и получить конечный результат.

Как посчитать квадратные метры криволинейного потолка
Как показывает практика, намного сложнее дела обстоят с криволинейными формами, которые выполнены по более сложному конструктивному принципу. Как правило, такие конструкции фигурные, имеют несколько уровней – от 2 и более.
Необходимо придерживаться следующего алгоритма работ:
- Первым делом измеряют все прямые участки и отмечают их на схеме.
- Вычисляют площадь пола.
- При помощи рулетки выявляют высоту и длину всех вертикальных участков.
- Высоту умножают на длину.
В конечном итоге необходимо сложить все умноженные величины и получить результат в кв. м.
Внимание! В данном случае должны быть учтены все имеющиеся перепады.
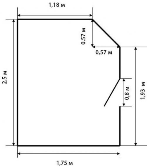
Как рассчитать квадратуру потолка комнаты с косыми стенами
Если в помещении имеются косые стены, то необходимо измерить предварительно имеющийся скос и использовать его в качестве гипотенузы в прямоугольном треугольнике. После того как все замеры выполнены, можно подставлять полученные данные в формулу, которая выглядит следующим образом:
S = (катет * катет) / 2.
Стоит рассмотреть расчет на примере. Для вычисления катета потребуется взять известное значение, которое равно 1,75 м и отнять размер противоположной стены, равной 1,18 м. В итоге получается 0,57 м. Таким же образом необходимо вычислить второй катет. В результате площадь треугольной части составляет (0,57 * 0,57) / 2 = 0, 57 кв. м. После этого потребуется разделить помещение на две равные фигуры и получить их площадь.

Какие инструменты и материалы необходимы для перекрытия потолка частного дома
Прежде, как сделать черный потолок, для получения качественного результата, следует разобраться, что представляет собой межэтажное перекрытие в деревянной постройке. Оно состоит из нескольких слоев и каждый выполняет конкретную функцию. При условии, что все элементы собраны правильно, потолок будет надежным и прослужит длительный период.
Межэтажное перекрытие в базовом варианте имеет 5 слоев:
- Дощатый пол . Если сверху располагается еще этаж, для него также нужно настелить пол. Дощатый слой бывает черновым, под финишную отделку, им можно пользоваться как чистовым вариантом ( рассчитать кубатуру доски - калькулятор ).
- Пароизоляция . Несмотря на то, что некоторые хозяева не делают этот слой, для получения качественного результата желательно настелить пароизоляционный материал.
- Утеплитель . Создание теплоизоляции необходимо для того, чтобы в доме сохранялось тепло. Особенно это имеет значение, когда над перекрытием располагается не отапливаемое чердачное помещение или крыша.
- Гидроизоляция . Этот слой нужен для защиты древесины от разрушения в результате воздействия влаги.
- Черновой потолок в деревянном доме . Его используют для крепления финишной отделки. Также он является опорой для гидроизоляции, утеплителя и пароизоляции.
Совет:
Не делайте ОШИБКИ в расчётах!
Используйте строительные калькуляторы онлайн - расчёт строительных материалов и конструкций для ремонта и стройки быстро и точно.
Для обустройства чернового потолка по деревянным балкам, сначала к ним прикрепляют доски, потом укладывают утеплитель и гидроизоляцию и затем остается только сделать финишную отделку потолочной поверхности гипсокартоном или другим материалом.
Когда потолок уже готов, тогда можно приступать к настилу напольного покрытия этажом выше, для чего на утеплитель укладывают пароизоляцию, а уже поверх нее помещают доски. Многие домовладельцы после крепления этих пиломатериалов дальше не делают финишную отделку, тем самым используя их для чистового оформления. Дощатый потолок в деревянном строении также смотрится очень красиво и эффектно.






