Песочница со скамейками своими руками. Выбираем материал для сборки детской песочницы с трансформирующейся крышкой
- Песочница со скамейками своими руками. Выбираем материал для сборки детской песочницы с трансформирующейся крышкой
 - Тент для песочницы своими руками. Из чего можно сделать песочницу
 - Песочница с крышей своими руками чертеж. Как сделать песочницу с крышкой: чертежи, фото
 - Песочница с крышкой пошаговая инструкция. Сооружение простой модели
 - Грибок для песочницы своими руками. Порядок монтажа
 - Видео КАК СДЕЛАТЬ КРЫШКУ - ЛАВОЧКУ ДЛЯ ПЕСОЧНИЦЫ | своими руками, песочница для детей | КАК?
 
Песочница со скамейками своими руками. Выбираем материал для сборки детской песочницы с трансформирующейся крышкой
Сегодня мы рассмотрим, как изготавливается своими руками песочница с крышкой скамейкой, рассмотрим на фото чертеж важных узлов, но вначале поговорим о выборе подходящих материалов.
Начнем с короба и крышки. Из пластика подобную конструкцию для детей самостоятельно сделать не получится. Существуют варианты из ПЭТ бутылок, старых пластиковых подоконников и прочего хлама, но ребенку такая песочница вряд ли понравится. Что касается покрышек – это неплохой вариант. Однако организовать нормальные лавочки со спинкой, трансформирующиеся в крышку, не получится из-за неправильной формы песочницы. Нужен прямоугольный короб, и сделать его лучше из доски. Заготовки идеально по цене и качеству подойдут из сосны. Доски из дуба или лиственницы прослужат дольше, но их стоимость выше, и твердая древесина сложнее обрабатывается.
Важно! Для продления срока службы деревянной конструкции все заготовки пропитывают антисептиком.
При строительстве детской песочницы с крышкой понадобится кусок влагоустойчивого, но пористого материала. Для этих целей подойдет агроволокно или геотекстиль. Материалом отделяют грунт от песка, не давая им перемешиваться. Пористая структура пропустит влагу в почву. Благодаря материалу посреди песка не вырастут сорняки , а из земли не наползут дождевые черви.
Важно уделить внимание качеству наполнителя. Идеальным вариантом считается продающийся в магазине песок. Он прошел несколько стадий очистки и обработки, вплоть до шлифовки острых углов песчинок. Такой наполнитель идеален для пластиковых песочниц, так как не царапает стенки короба. Во время покупки песка желательно посмотреть документы, указывающие происхождение товара. А лучше открыть мешок и пощупать содержимое. Качественный песок характеризуется отличной сыпучестью, обладает одним оттенком и не пристает к сухим ладоням рук.
Изготовленная детская песочница своими руками из досок на загородном участке обычно заполняется карьерным или речным песком. Предварительно его просеивают от камней, а также разного мусора. Если песок содержит много примесей пыли, он постоянно будет липнуть к рукам ребенка и пачкать его одежду. Перед использованием такой наполнитель надо промыть водой, после чего хорошо просушить.
Тент для песочницы своими руками. Из чего можно сделать песочницу
Самый популярный материал для строительства детской песочницы — древесина. Это могут быть обрезные доски, бревна небольшого диаметра, брус, блок-хаус. В основном из этого и мастерят. Чтобы работа шла быстрее, покупать можно шлифованные материалы. Они стоят дороже, но имеют гладкую поверхность. Если необходимо сэкономить, берите обычные материалы, потом вручную или при помощи шлифмашинки доведете все до идеального состояния.

Такую песочницу-грузовик удобнее делать из фанеры
Можно использовать фанеру (влагостойкую) или ОСБ (ОСП). Не все их любят, за наличие клея и вредные испарения (формальдегид). Но на воздухе эти выделения не страшны, а еще можно использовать материал с классом эмиссии E0 или E1. Он гарантирует безопасность — из такого материала делают детскую мебель. С фанерой и ОСБ работать удобно: вырезал необходимой формы детали, скрутил их вместе, обработал торцы и можно красить.
На даче можно использовать подручный материал. Например, пластиковые бутылки. Только чтобы они держались, их прикрепляют к доске: прибивают с определенным шагом крышки, в них вкручивают бутылки. Получив одну «боковину», берут кусок толстой проволоки, равный двойной длине боковины + 20 см, протыкают проволокой бутылки отступив около 5-7 см снизу, разворачивают проволоку вверх и протыкают в обратном направлении сверху. Концы скручивают, стараясь «хвосты» спрятать.

Примерно так надо будет»прошить» бутылки проволокой
Такая скрутка получается только с одной стороны — с другой просто согнутая проволока. Когда будете ставить боковины, ставьте так, чтобы «хвосты» оказались закрыты бутылкой. Готовые боковины песочницы из бутылок устанавливают в неглубокий ров, присыпают доску и сужающийся низ бутылок грунтом, хорошо утрамбовывают. На дно можно кинуть лист фанеры, а сверху уже насыпать песок.
Второй по популярности «бросовый» материал для дачных. Делают из них и песочницы. Необходимо с одной стороны срезать боковину старой покрышки. Получатся довольно высокие бортики. Далее есть два пути:
- можно дырку закрыть вырезанной по размеру фанерой и использовать так как есть;
 - отрезать вторую боковину и получить только бортик.
Песочница из покрышек: как делать
 
В любом случае придется срезы обезопасить. В некоторых шинах корд (армирующее волокно) пластиковый, в некоторых — металлический. Пластиковый можно отшлифовать, а вот металлический придется как-то закрывать.
Для изготовления песочницы можно использовать напиленные на куски стволы поваленных деревьев. Из них получается очень интересная и вполне надежная ограда. Перед тем, как вкапывать, древесину нужно обработать — чтобы дольше служила. Есть современные пропитки с одновременным подкрашивающим эффектом. Удобно. Обработанные пеньки надо просушить, а пока они сохнуть выкопайте по периметру будущей песочницы ров. Его глубина не менее 20-25 см. Меньше делать не стоит — детвора будет по пенькам ходить-скакать, потому они должны держаться хорошо. В ров вставить торцом бревнышки, выровнять, засыпать промежутки грунтом и хорошо уплотнить.

Ограда для песочницы из бревен
Из бревен можно сделать и ограду для песочницы традиционного типа. На грунт положить основание: кусок линолеума, например, в котором сделать несколько дырок — для стока воды после дождя. На основание положить бревна, сделав из них прямоугольник/квадрат. Скрепить их можно длинными гвоздями, но надежнее шпильками — стальными стержнями с резьбой на обоих концах. Под них надо будет в месте соединения бревен наискосок просверлить отверстие. Диаметр — чуть больше диаметра шпильки. Края отверстия рассверлить — чтобы можно было утопить гайки с шайбами. В отверстие вставить стержень, с обоих концов надеть шайбы, затянуть все гайками.
Сверху можно сделать скамейки — одна-две доски и лавочки для малышей готовы. Они, конечно, редко на них сидят. Чаще выстраивают на них свои песчаные замки.

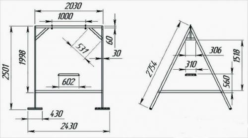
Песочница с крышей своими руками чертеж. Как сделать песочницу с крышкой: чертежи, фото

Детская песочница с крышкой. Как сделать песочницу с крышкой своими руками: схема, чертежи, фото,
Мы уже рассматривали вариант изготовления самой простой детской песочницы, в этой статье мы рассмотрим вариант изготовления песочницы с защитной откидной крышкой, которая трансформируется в две боковых лавочки.
Большинство детских песочниц имеют существенный недостаток – они открытого типа, в результате чего в песке справляют свои нужды бродячие собаки и коты, затем в этом же песке играют ваши дети. Поэтому если вы хотите сделать песочницу своему ребёнку, лучше выбрать вариант песочницы с крышкой.

Открытая крышка песочницы трансформируется в лавочки.

Закрытая крышка на песочнице.
Как сделать песочницу с крышкой .
Материалы для изготовления песочницы:
- Доска (для боковых стенок песочниц) 2,5 х 15 х 1200 мм – 8 шт.
 - Доска (для крышки песочницы) 25 х 100 х 1200 мм – 12 шт.
 - Брусок 25 х 75 х 200 мм – 6 шт.
 - Брусок 25 х 75 х 450 мм – 4 шт.
 - Брусок 100 х 100 х 280 мм – 4 шт.
 - Петли 40мм – 8 шт.
 - Саморезы.
 
Приступаем к изготовлению песочницы.
Прежде всего, доски для песочницы должны быть обязательно струганные, что бы обезопасить детей от заноз, при необходимости доски нужно обязательно простругать, можно воспользоваться рубанком.
Начинаем изготовление песочницы с короба. Скрепляем боковые доски по углам с помощью брусков и саморезов, в итоге у нас получится короб в виде квадрата.

Собираем короб песочницы, доски крепим саморезами к брускам.
Следующий этап изготовление крышки для песочницы.

Схема песочницы с крышкой.
Собираем части крышки, каждая часть состоит из 2 досок, между досками оставляем небольшой зазор, он нужен, чтобы не скапливалась вода после дождя на крышке песочнице и чтобы избежать сырости в песочнице.
Крайние части крышки крепим к коробу саморезами, к крайним частям крышки на петли крепится сидение.
Делаем спинки, скрепляем доски брусками длиной 450 мм, бруски будут служить упором для спинок сидений, крепим спинки на петли к сидению.

Проверяем, крышка должна легко открываться и складываться в лавочки.
Песочница готова осталось покрыть её антисептиком или покрасить.

Засыпаем песок и песочница готова.
Песочница с крышкой пошаговая инструкция. Сооружение простой модели
Для выполнения самый простой модели детской песочницы своими руками, понадобится схематический рисунок с указанием размера будущего игрового места, подходящие для сооружения материалы, а также совсем немного времени. Рассматривая на примере сооружения деревянной песочницы из фанеры 1,5×1,5 м, можно выделить несколько ключевых моментов.
Важные нюансы при постройке:
- Необходимо учитывать, будет ли у будущей песочницы дно, либо для этих целей использовать предварительно вырытую яму.
 - Используя деревянные бруски, необходимо тщательно обработать их от возможных заноз, покрыть антибактериальной грунтовкой, а снаружи защитить двумя — тремя слоями краски.
 - По углам песочницы следует предусмотреть небольшие лавочке. Самый простой вариант — набивка треугольного кусочка доски с надежным креплением по бокам.
 - Для защиты ребенка от солнца следует использовать большой пляжный зонт, усложненные модели песочниц могут иметь самостоятельный навес, с опорой посреди песочницы, либо по углам. Подобное сооружение в народе часто называют «грибок». Помимо солнечного укрытия, они будут надежно защищать ребенка от дождя, а находящийся внутри песок от попадания мусора.
 - Бортики песочницы не должны быть сильно высокие, но при этом предупреждать рассыпание песка вне сооружения. Обычно для этого достаточно будет использовать доски высотой от 20 см.
 - Для стыковки фанерных планок между собой и дополнительной крепости сооружения используется деревянный брус с сечением 40×40 или 50×50.
 - Все детали, находящиеся в контакте с землей и влагой обязательно следует обработать антибактериальными растворами.
 - Песочница с навесом своими руками отлично сочетается с другими элементами детской площадки. Примеры удачных идей можно также встретить на фото.

 
Грибок для песочницы своими руками. Порядок монтажа
Этот вопрос касается только постоянных песочниц. А самый вопрос в том, как собирать изделие из деталей: на месте, аналогично «взрослым» постройкам, или, как напр., будку для собаки, целиком где удобнее, см. рис., и ставить на место собранным. Для песочницы однозначно предпочтительнее второй вариант, т.к. позволяет намного сократить объем земляных работ. Это существенно и потому, что песочницу ставят на обустроенной территории, и корежить газон или площадку, в которые тоже вложен немалый труд, сверх необходимого не хочется.

Обработка ящика песочницы перед установкой на место
Другой довод в пользу установки готового ящика – при сборке его на месте обязательно понадобится нивелировка, подгонка в размер и выправление контура. Дачный туалет косым долго не простоит; песочница в плане больше. А готовый ящик с бортами довольно жесткий, нагружен слабо и будет держаться, даже если нулевой цикл выполнен далеко не идеально.
Пошаговая инструкция по установке собранной песочницы на место такова:
- Готовят котлованчик, как описано выше, но пока без песчаной засыпки и не настилая изоляцию;
 - В местах, где стойки (столбики) уйдут в грунт, ручным буром диаметром 80-100 мм проходят скважины на глубину заглубления стоек плюс 10-15 см, т.е. 40-55 см, т.к. стойки достаточно заглубить на 30-40 см. 10-см буром эта работа выполняется играючи, по 5-10 мин на скважину;
 - В процессе песчаной засыпки под изоляцию скважины наполняют песком примерно на половину или чуть выше;
 - «Ноги» ящика перед обработкой битумом заостряют, подтесывая топором либо опиливая на клин или в вытянутую пирамиду;
 - Когда изоляция уложена, ее над устьями скважин надрезают лепестками;
 - Ящик ставят «ногами» в скважины и осаживают по уровню до места сначала руками, а затем простукивая торцы стоек барсиком – деревянной кувалдой. Лупить изо всей силы не надо, нужно постепенно обколачивать, проходя по контуру;
 - Крыша, если предусмотрена, собирается на месте.
 
Примечание: барсик можно сделать своими руками из колоды или обрезка бруса от 130х130 см, насаженных на рукоять.
