Перепланировка квартир . Варианты перепланировок квартир серии П44Т
- Перепланировка квартир . Варианты перепланировок квартир серии П44Т
- П-44 двухкомнатная дизайн. Планировка трёшки в панельке П-44: 5 удачных схем (бесплатно)
- Дизайн 1 комнатной квартиры П-44. Что стоит знать перед планировкой и созданием дизайна квартиры типа п44т
- П-44 трешка перепланировка. Законная перепланировка квартиры. Двушка в серии П-44
- П 44 планировка трехкомнатной квартиры П-44. Особенности планировки
- П 44 планировка однокомнатной квартиры. Дом серии П44Т. Разбираем планировки (фото). Почему панельный дом так популярен у покупателей?
- КОГДА И КЕМ СПРОЕКТИРОВАНА?
- ТЕХНИЧЕСКИЕ ХАРАКТЕРИСТИКИ
- РАЗБИРАЕМ ПЛАНИРОВКИ
- Однокомнатные квартиры в П44Т
- В зависимости от района Москвы такие квартиры по данным истории сделок в Сбербанке продавались в 2018-2019 году:
- от 5 900 000 до 7 500 000 рублей
- Двухкомнатные квартиры в П44Т
- В зависимости от района Москвы такие квартиры по данным истории сделок в Сбербанке продавались в 2018-2019 году:
- от 8 000 000 до 10 500 000 рублей
- Большая кухня с эркером играет роль кухни-гостиной
- В зависимости от района Москвы такие квартиры по данным истории сделок в Сбербанке продавались в 2018-2019 году:
- от 9 500 000 до 12 500 000 рублей
- Трехкомнатные квартиры в П44Т
- Главные недостаток - один санузел. Будь в такой квартире два санузла можно было бы назвать ее идеальной.
- Видео перепланировка двухкомнатной квартиры в доме серии П-44, часть 2
Перепланировка квартир . Варианты перепланировок квартир серии П44Т
Описание серии П44Т
П-44Т – панельная серия домов с наружной отделкой «под кирпич», разработанная проектным институтом МНИИТЭП. Первые дома появились в 1997 году. Сейчас строительство серии продолжается. Очень много домов серии П-44Т построено в Москве и Московской области.
Серия П-44Т является улучшенной версией типовой брежневки П-44 с более качественной теплоизоляцией, более высокими потолками в квартирах (2,70-2,75 м), с вентиляционным коробом, устроенным не на кухне, а в прихожей.
Дома серии П-44Т могут быть разной этажности – от 9-ти до 25-ти этажей. Но чаще других встречаются 14-ти и 17-ти этажные здания.
Первые этажи являются нежилыми. Там обычно располагаются различные торговые предприятия и офисные помещения.
На этажах по четыре квартиры. Различают торцевые, рядные и угловые секции. Подъезды снабжены пассажирским и грузопассажирским лифтами. В секциях по 20 и 25 этажей три лифта, два из которых грузопассажирских.
Наружные стены дома состоят из железобетонных трехслойных панелей толщиной 30 см. Внутренние несущие стены (межквартирные и межкомнатные) представляют собой ж/б панели толщиной 16 и 18 см. Толщина гипсокартонных перегородок составляет 8 см. Крупноразмерные ж/б плиты толщиной 14 см выступают в качестве межэтажных перекрытий.
Среди плюсов данной серии: изолированные комнаты, хорошая звукоизоляция, раздельные санузлы (совмещенные в однокомнатных квартирах), регулируемое отопительное оборудование, добавление в планировку квартир эркеров, пандусы для инвалидов и возможность оперативного возведения домов, благодаря чему дома серии П-44Т получили столь широкое распространение и возводятся до сих пор.
Недостатком серии П-44Т является множество ограничений при проведении перепланировок квартир. Причиной этого является тот факт, что внутренние стены квартир в основном несущие.
Кроме того, автор проекта дома, институт проектирования МНИИТЭП, запретил в домах, построенных с защитой от прогрессирующего обрушения после 2007 года, делать дверные проемы в несущих стенах и удалять подоконные блоки, что делает невозможным объединение лоджии с внутренними помещениями квартиры.
Но имеется и положительный момент, связанный с перепланировкой внутренних помещений здания. В отличие от квартир в серии П-3 , перегородка, которой гостиная отделена от территории коридора, относится к категории ненесущих (ее толщина всего 80 мм). Следовательно, ее можно демонтировать.



П-44 двухкомнатная дизайн. Планировка трёшки в панельке П-44: 5 удачных схем (бесплатно)
Общая площадь типовой квартиры в доме серии П-44 – одной из самых распространённых панелек – от 70 до 75 кв. м. При этом почти все стены несущие, и перепланировка невозможна.


Типовая планировка
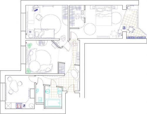
У трехкомнатной квартиры в типовых панельных домах серии П-44 довольно большая площадь и удачная планировка. В отличие от предшественниц-хрущёвок, здесь десятиметровая кухня и комнаты больше 11 кв. м. Пожалуй, единственный недостаток в том, что существенную перепланировку не сделать – почти все стены в квартире несущие.
Вариант 1
Самую большую комнату отвели под спальню, потому что примерно треть её занимает гардеробная. На балконе обустроили рабочее место и встроили гладильную доску. Меньшую по площади спальню превратили в детскую для двоих детей – вся мебель здесь парная.
Стену между гостиной и коридором можно снести. Комната станет проходной, но более просторной. Воспользуемся шириной коридора, чтобы встроить шкаф для верхней одежды. А на кухне помимо углового гарнитура и стола предусмотрит узкую витрину для сервировочной посуды и колонны для встроенной техники при входе.

Вариант 2
В этом варианте расположение комнат сохранено, и даже гардеробная на том же месте. Но в детской всего одна детская кроватка и диван для отдыха мамы или няни. Зато в гостиной появился большой угловой диван и сразу два рабочих места на случай, если родители работают из дома. Ещё один угловой диванчик установили на кухне.

Вариант 3
Если в семье двое разнополых разновозрастных детей, то каждому из них неплохо бы иметь собственную комнату. Поэтому две дальние спальни отдали под детские. Они практически симметричны, только в одной из них по центру появилась общая гардеробная. Самую маленькую комнату зонировали и выделили уголок под спальню у окна. Ближе к проходу установили диван. И для этого, конечно, стоит снести единственную ненесущую стену.

Вариант 4
Почти все стены в квартире несущие, но изменить геометрию пространства всё же можно. Авторы этого проекта увеличили санузлы за счёт коридора, встроили шкаф для верхней одежды в холле и предусмотрели удобный вход в детскую, который при этом не съедает пространство гостиной. Балкон в спальне утеплили и присоединили, чтобы разместить там мини-кабинет.

Вариант 5
Для семьи с двумя взрослыми детьми или ситуации, когда под одной крышей живут три поколения, необходимо три полноценные спальни. Для этого можно сделать масштабную перепланировку, на которую мало кто решается – перенесли кухню в коридор и сделать её проходной. Тогда на месте бывшей кухни появится ещё одна дополнительная спальня, вход в которую перенесён из гостиной. Это позволяет существенно расширить санузел.

Если вы хотите видеть больше такого в своей ленте — ставьте лайк. Подписывайтесь на канал и узнавайте свежие тренды в дизайне интерьеров.
Автор: Павел Шелягин.
Дизайн 1 комнатной квартиры П-44. Что стоит знать перед планировкой и созданием дизайна квартиры типа п44т
В многоэтажных домах такого типа имеются квартиры с одной, двумя, тремя и четырьмя комнатами. Дизайн стандартной однокомнатной квартиры п44т является «проблемным», если решено сделать перепланировку. По современным канонам это не самые удобные помещения, так как внутри «стоят» несущие стены, сносить которые никто не даст, так как это грозит обрушением значительной части здания.

Если позволяет площадь комнаты, типовую однушку можно трансформировать в двухкомнатную квартиру, добавив перегородки или разделив пространство ширмой, шторами или мебелью
Для «однушки» п44т планировка существует в двух вариантах:
- В первом случае выход из кухни в комнату сделать крайне сложно либо вообще невозможно, так как проблематично согласовать.
- Во втором варианте застройщик изначально выполнил проем в стенке, расположенной между гостиной и кухней.

Типичная планировка однокомнатной квартиры в доме серии 44т
В квартирах п44к «однушка», планировка отличается от п44т тем, что она считается улучшенной. На комнату здесь приходится 18,9 м. кв., кухня с полуэркером либо треугольным эркером – 9,1 или 10,1 метра, ванную (совмещенный санузел) – 3,6 метра, прихожую – 5,6 кв. м., балкон – 3,5 кв. м. Общая площадь – 39,2-40 квадратных метров. «Обновления» здесь также производятся с учетом всех строительных ограничений.
В описываемых квартирах всегда имеются воздушные короба, сносить которые запрещается, но слегка видоизменять форму, декорировать различными способами, вполне допустимо.



П-44 трешка перепланировка. Законная перепланировка квартиры. Двушка в серии П-44
Серия П-44 является одной из самых удачных современных серий в типовом домостроении, поскольку для её проектирования применяли актуализированные своды правил и новые технологии в строительстве, а именно трёхслойные панели с замковым соединением, что улучшило характеристики возведения панельных домов.
Квартиры в домах П-44 обладают многими достоинствами и планировки можно назвать удачными: кухни площадью от 9 метров, просторные коридоры и изолированные комнаты, балконы, но есть один важный недостаток — практически все стены внутри квартир несут нагрузку, что ограничивает возможности перепланировки.
Но, судя по количеству запросов, перепланировкой в серии П-44 интересуются многие, поэтому сегодня я расскажу о возможностях законной перепланировки двухкомнатной квартиры в доме этой серии.

Квартира площадью 55 квадратных метров состоит из кухни, разделённого санузла, прихожей, двух жилых комнат и балкона. Внутренние стены капитальные, кроме перегородок ванной комнаты. В кухне проходит выступающий вентиляционный канал, рядом с которым расположена мойка. В коридоре — встроенный шкаф-кладовая.
Первый вариант
В этом варианте можно ограничиться грамотной расстановкой мебели. В прихожей расположен шкаф для верхней одежды и пуф для обувания, а у противоположной стены расположена большая обувная полка либо можно поставить консоль.

В кухне оборудование расположено по периметру стен, что удобно для готовки и также позволяет организовать место для завтрака у окна.
Для гостиной была выбрана комната, смежная с кухней, чтобы изолировать приватную часть квартиры, где расположена спальня. Также в спальне предусмотрены высокий шкаф для хранения одежды и рабочее место с креслом.
Второй вариант
Прихожая и кухня такие же как в первом варианте, но для большего удобства мойка в кухне была перенесена к окну, что допустимо.

Порой, когда собственники делают перепланировку в такой квартире, некоторым кажется, что вентиляционный канал "лишний и мешает расставить мебель". Однако нужно помнить, что демонтаж вентиляционных шахт строго запрещён, поскольку их снос приведёт к большим проблемам, поскольку это нарушит вентиляцию помещений и спровоцирует появление грибка и рост плесени в конструкциях.
Одним из важных санитарных условий является наличие раковины в уборной комнате. К сожалению, типовые серии предусматривают раковины только в ванных комнатах, но если вы занимаетесь ремонтом и заботитесь о своём здоровье, то монтаж раковины в уборной — обязательное условие.
Не нужно бояться, что раковина не уместится, потому что в продаже легко найти специальные рукомойники подходящих размеров.
Присоединение балкона (лоджии) к жилым комнатам возможно в исключительных случаях: когда балконная плита является продолжением плиты перекрытия или способна выдержать нагрузку утеплённых стен и зимнего остекления — квартиры серии П-44 являются таким приятным исключением.
Добавление балкона — это перепланировка, которая требует согласования и утвердительной резолюции, поэтому подготовку к строительным работам нужно начать заранее. В серии П-44 добавление балкона допустимо, но с условием сохранения внешних стен, а именно: демонтировать нижний простенок под окном не допускается, так как это нарушит замковое соединение панелей, поэтому демонтируется только окно и дверь.

Строительство дома серии П-44Т
Третий вариант
Может ли двухкомнатная квартира в серии П-44 стать удобным домом для семьи с двумя детьми?
В маленькой комнате можно организовать детскую с большим письменным столом, где дети смогут делать уроки, а в большой комнате сделаем гостиную, которая также является и родительской спальней.

Постоянный сон на раскладном диване может негативно отразиться на здоровье, поэтому для сна родителей мы предусмотрели кровать-трансформер, которая днём "прячется" в шкаф. Это позволит не только сохранить осанку и здоровье родителей, но и освободит место для семейных мероприятий или приёма гостей.
Даже изначальную удачную планировку можно сделать ещё удобнее и без глобальных строительных работ, равно как и без нарушения свода правил и санитарных нормативов.
автор: Руслан Кирничанский
Я очень хочу, чтобы мои советы были полезны вам, а для того, чтобы быстрее всех получать новые статьи можно подписаться на мой канал "Дневник архитектора".
П 44 планировка трехкомнатной квартиры П-44. Особенности планировки
Планировка трехкомнатной квартиры бывает:
- с закрытым выходом;
- открытым;
- частично-закрытым;
- смежным;
- смешанным.
Закрытая планировка предполагает изоляцию. Большие комнаты, каждая из которых имеет доступ к коридору.

Открытую планировку можно встретить в студии. Одним большим пространством происходит деление на части. У каждой зоны свой дизайн, освещение и функционал.
Частично закрытый вид планировки. Главная комната открытая, а другие имеют изоляцию. Разделено пространство широким холлом.
Смежный тип предполагает помещения с выходом только одной комнаты в коридор, а другие соединены дверями или аркой (проходом). Данный тип проектировки может включать в себя изолированное, так и смежное расположение помещений.
Исходя из просторной планировки трехкомнатной квартиры, оценивают характеристику при покупке или аренде. Перед выбором комфортного жилья для определенного количества людей, анализируется общая площадь, по параметрам и форме кухня, замеры коридора. Важно наличие больших окон и их расположение. Для некоторых жильцов важным моментом является размещение окон по обе стороны.
Учитывается размер балкона и количество комнат с этим помещением. Оценивается наличие проходных комнат, несущих стен, толщины панелей, высоты потолка. На данный момент строятся и предлагаются к заселению 3-х комнатные квартиры улучшенной планировки. Они имеют большее пространство, несколько застекленных балконов, большие и широкие коридоры, что удобно для семьи с маленькими детьми или животными.
П 44 планировка однокомнатной квартиры. Дом серии П44Т. Разбираем планировки (фото). Почему панельный дом так популярен у покупателей?
Рабираем все типы планировок и цены!
Чаще всего панельные дома относятся потребителем к эконом-сегменту, но есть в России и очень популярные серии панельных домов. Некоторые уже сняты домостроительными комбинатами с производства, но до сих пор пользуются повышенным спросом: серия П44Т, КОПЭ, КОПЭ-Парус, П3М.
Сегодня речь пойдет о серии П44Т, про которую покупатели говорят так:
"Это такой с кирпичиками!"

действительно, фасадная панель стилизована под кирпич (фото из личного архива Vysotsky Estate)
КОГДА И КЕМ СПРОЕКТИРОВАНА?
Данная серия домов производится до сих пор, хотя все меньше заказывается компаниями Застройщиками. Производством занимается ДСК1.
Спроектирован дом в Московском научно-исследовательском и проектном институте типологии, экспериментального проектирования. Унаследовал основу квартирографии от серии П44, также популярной у потребителей .

Многие спальные районы Москвы застроены домами серии П44 (фото из личного архива Vysotsky Estate)
Серия П44Т была запущена уже в постсоветское время в 1997 г. И была очень популярна в период реновации Москвы "эпохи Лужкова"
ТЕХНИЧЕСКИЕ ХАРАКТЕРИСТИКИ

характеран эркерами и скошенными лоджями (фото из личного архива Vysotsky Estate)
Наружные стены - трехслойные железо-бетонные панели (бетон - полистирол - бетон) толщиной до 30 см повышенной теплоизоляции.
Межквартирные и межкомнатные несущие – железо-бетонные панели толщиной 16 и 18 см. Крупноразмерные перекрытия толщиной 14 см по ширине комнат.
Высота потолков: 2.70-2.75 м
Первые этажи серии - нежилые помещения. Часто сдаются под магазин.
Наиболее распространенные дома 14, 17 и 25 этажей.
РАЗБИРАЕМ ПЛАНИРОВКИ
И тут мы доходим до самого интересного. Именно из-за планировок эта серия дома так популярна.
Однокомнатные квартиры в П44Т
Общая площадь: 39,8 м2
Комната: 19 м2
Кухня: 6,9 м2
Санузел совмещенный: 3,6 м2
Прихожая: 7,2 м2

Однокомнатная квартира в П44Т (картинка отрисована в Vysotsky Estate)
Однокомнатные квартиры, как раз ничего примечательного из себя не представляют. Не самая большая площадь. Планировка стандартная. Разве, что заслуживает внимание площадь саунзла, которая позволяет разместить спокойно все необходимое.
В зависимости от района Москвы такие квартиры по данным истории сделок в Сбербанке продавались в 2018-2019 году:
от 5 900 000 до 7 500 000 рублей
Двухкомнатные квартиры в П44Т
Двухкомнатные квартиры в этой серии домов встречаются трех видов: так называемые "линейка", "распашонка"
"Линейка"
Линейка, потому что комнаты расположены по одной стороне дома, окна выходят на противоположную от подъезда сторону.
Общая площадь: 53.4 м2
Комната1: 18,9 м2
Комната2: 11,5 м2
Кухня: 9,7 м2
Санузел раздельный: 2,8 +1 м2
Прихожая: 2,6 м2
Такая квартира не самая популярная в этом доме. Но из-за большой кухни пользуется повышенным спросом.
В зависимости от района Москвы такие квартиры по данным истории сделок в Сбербанке продавались в 2018-2019 году:
от 8 000 000 до 10 500 000 рублей
Двухкомнатная "распашонка"
Большая кухня с эркером играет роль кухни-гостиной

Распашонк
Распашонка, потому что комнаты выходят на обе стороны дома
Общая площадь: 60 м2
Комната1: 18,9 м2
Комната2: 14,8 м2
Кухня: 12,9 м2
Санузел раздельный: 3,9 +1 м2
Прихожая: 9,5 м2
Самая популярная квартира в этом доме. Часто ее покупают взамен 3-комнатной квартиры.
В зависимости от района Москвы такие квартиры по данным истории сделок в Сбербанке продавались в 2018-2019 году:
от 9 500 000 до 12 500 000 рублей
Трехкомнатные квартиры в П44Т
мы собрали планировки на одной картинке
Все трехкомнатные квартиры в П44Т имеют формат "распашонки". Большой холл при входе. Главное отличие только в кухне.
Общая площадь: от 73,1 м2 до 81,2 м2
Комната1: от 18,9 м2 до 19,2 (с лоджией и есть вариант с эркером, что добавляет света)
Комната2: от 14 до 14,8 м2
Комната3: от 11,1 м2 (лоджией) до 20 м2 (с эркером)
Кухня: от 10 до 12,9 м2
Санузел раздельный: 3,9 +1 м2
Прихожая: 9,5 м2
Все варианты трехкомнатных квартир пользуются популярностью.