Как перепланировать хрущевку двушку. Переделка хрущевки двушки
- Как перепланировать хрущевку двушку. Переделка хрущевки двушки
- Перепланировка двухкомнатной хрущевки трамвайчика. Перепланировка «хрущевки». С чего начинать?
- Перепланировка двухкомнатной хрущевки в трехкомнатную. Три варианта перепланировки двухкомнатной хрущевки
- Перепланировка хрущевки 3 комнаты. Перепланировка трёшки-распашонки 60 м в панельной хрущёвке: 5 схем (бесплатно)
- Видео перепланировка 2-х комнатной "Хрущёвки"
Как перепланировать хрущевку двушку. Переделка хрущевки двушки
Двухкомнатных хрущевок в домах этих лет большинство. Недостатки у них такие-же, как и у однокомнатных: маленькие площади и неудобная планировка, проходные помещения. Тем не менее, большинство проблем можно решить переносом некоторых стен. Например, смежные комнаты можно разделить, а попутно из двухкомнатной сделать трехкомнатную.

Переделка хрущевки: из «трамвайчика» делаем две раздельные комнаты
Ставим дополнительную перегородку, отделяющую комнату от коридора. Таким образом получается довольно обширное по размерам помещение, которое можно использовать как кладовку, а можно превратить в гардеробную. Второе помещение — длинное и узкое — разбивается на две зоны: спальню и гостиную при помощи легкой перегородки из гипсокартона или другого листового материала.
На фото ниже — другой тип проходных комнат в двушке: — чтобы попасть во вторую комнату, первую нужно пересечь от одной стены до другой. Крайне неудачная планировка в том плане, что функциональность первого помещение очень низкая: выпадает «мертвая» зона прохода. А так как часто в торце второй комнаты сделана кладовка, то и она не может использоваться полностью.

Еще вариант переделки двухкомнатной квартиры в трехкомнатную
По предложенному варианту переделки форма ванной за счет переноса стены становится прямоугольной, прихожая объединяется с первой комнатой. Ее используют как гостиную, из которой сделан вход в кухню. Дальнее помещение разбито на две небольшие спальни. Обратите внимание на перегородку между двумя спальнями — она нелинейная, чтобы была возможность устроить небольшую гардеробную в обоих комнатах.

Перепланировка хрущевки: 2 комнаты
Можно обычную двухкомнатную квартиру в панельной хрущевке превратить в современную квартиру-студию с объединенной гостиной-кухней . Основная задача при такой перепланировке — добиться разрешения перенести входные двери. При этом бывшая прихожая превращается в гардеробную . Кухня и гостиная объединяются за счет частично снесенной перегородки, также объединяется санузел.
При желании вторую комнату можно разбить на две при помощи легкой перегородки, которая отделяет спальню рабочей зоны или кабинета. Чтобы зонирование было более полным но при этом в спальне был доступ солнечного света, перегородку можно делать не на всю высоту, а примерно на 1,5 метра.

Интересный вариант перепланировки угловой двушки
Очень эффектно решен вопрос переделки двушки в этом варианте переделки. Фактически она стала трешкой. За счет того, что прихожая скошена, увеличена площадь санузла. Перегородка, отделяющая кухню от комнаты частично разобрана. Вторая комната разделена на две части, площадь второй увелисена за счет кладовки и стенного шкафа. Получилось две отдельных спальни, причем за счет того что квартира угловая, окна есть в обеих.
Коридор имеет необычную форму — его стены расположены по диагонали. Функциональность его небольшая, но и площадь тоже. А в остальном очень хороший вариант.
Несколько вариантов ремонта однокомнатных квартир с использованием описанных приемов можно посмотреть тут. А ремонт двухкомнатных (с реальными фото) описаны в этой статье.
Перепланировка двухкомнатной хрущевки трамвайчика. Перепланировка «хрущевки». С чего начинать?
С правового ликбеза. Не стоит думать, что, будучи собственником жилья, владелец вправе с этим жильем делать что угодно. Законом на владельцев жилья налагается ответственность, которая закреплена в Жилищном кодексе РФ.
Очень важно! Жилищный кодекс дает определение перепланировке и переустройству жилого помещения. Первый термин – это изменение конфигурации жилого помещения. По закону, все изменения должны быть внесены в технический паспорт квартиры. Второй – это установка, замена или перенос инженерных сетей, санитарно-технического, электрического и другого оборудования. И тоже с внесением изменений в техпаспорте жилого помещения. В лучшем (для вас) случае, при продаже, обмене квартиры внести изменения в техпаспорт все равно придется. Можно «нарваться» на штраф и предписание все вернуть в первоначальный вид. Этим перечень возможных неприятностей при самовольной перепланировке не заканчивается и последствия для владельца жилья могут быть гораздо более печальными.
Процедура получения разрешения на перепланировку – это предмет отдельной статьи. Если ваши планы не включают снос несущих конструкций и перенос кухни на место жилой комнаты, разрешение получить не очень сложно. Несомненным плюсом «хрущевок» является то, что внутренние стены в них в основном ненесущие и их, после получения разрешения, можно сносить, устраивать новые дверные проемы и т. д. Это значительно расширяет возможности перепланировки подобных квартир. Такие действия относятся к так называемой простой перепланировке, их проще согласовать и для получения разрешения не нужно разрабатывать проект, достаточно на полученный в БТИ поэтажный план нанести планируемые изменения.
Перепланировка двухкомнатной хрущевки в трехкомнатную. Три варианта перепланировки двухкомнатной хрущевки
Стандартная двухкомнатная квартира в хрущевке имеет два смежных жилых пространства, кладовку, мини-кухню, прихожую и ванную. Проживание в таких апартаментах не приносит особого комфорта, поэтому следует подумать о возможных вариантах перепланировки. Итак, если изначально ваша квартира была такой как на представленном фото, то можно выбрать три варианта ее трансформации. 

Квартира-офис для одного или двух жильцов
Здесь была объединена гостиная с кухней и прихожей, чтобы создать комфортную зону для встречи гостей. Спальня также была расширена на пятнадцать сантиметрам благодаря смещению перегородки. В результате этого в комнате сна получилось создать гардеробную. 

Особенностью данной планировки стал мини-кабинет, который отделили от гостиной стеклянной перегородкой с раздвижными дверями. Ванная стала более функциональной, так как чашу для купания заменили душевой кабиной, стиральной машиной, а также столешницей с ящиками для хранения предметов. 
Совет! Для оформления небольшой квартиры лучше выбрать цветовой контраст. Темное с сочетании со светлым делает пространство визуально более вместительным.

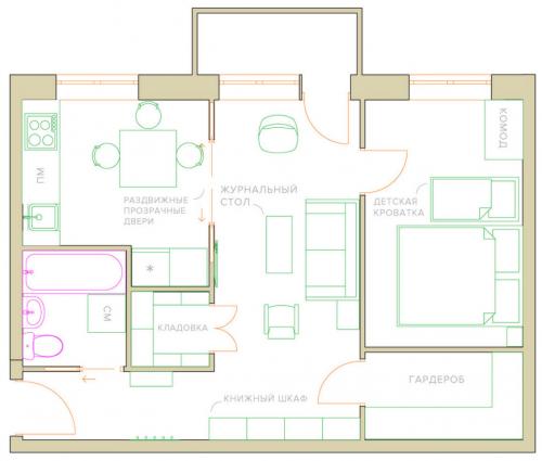
Двухкомнатная квартира для семьи из трех человек
Гостиная соединилась с коридором и автоматически увеличилась. Спальня стала больше благодаря смещению перегородки на пятнадцать сантиметров, чтобы поставить кровать для ребенка. Гардеробная остается на том же месте, как и в первом примере. Кладовая появилась в коридоре. Санузел имеет ванну, умывальник, стиральную машину и унитаз, то есть все необходимое для семьи с ребенком. 

Кухня увеличена и отделена от гостиной раздвижными дверями из стекла, чтобы в случае необходимости можно было объединить эти комнаты в одну. На уровне дверей будет отлично смотреться широкий шкаф в нише. 
Совет! Стены узкой спальни следует окрасить в белый цвет, чтобы расширить комнату. Не думайте, что такое помещение будет подобно больничной палате, так как его можно декорировать настенными наклейки ярких расцветок. Шкаф-купе с зеркальными дверцами наиболее уместен в небольшом помещении.

Хрущевка для большой семьи
Трансформировать хрущевку можно до неузнаваемости. В третьем варианте перепланировки хрущевка из двух стандартных жилых комнат превратилась в благоустроенную квартиру с полноценным коридором с дверями во все помещения. В квартире две жилых комнаты: первая — это спальня с гардеробной для родителей, вторая — детская для двух ребятишек. Квартира без гостиной. Есть отдельная функциональная кухня и ванная комната. 

Совет! Мини-гардеробная никогда не будет лишней. Сделать ее более современной позволят стеклянные дверцы, наполняя комнату дополнительным светом.

Перепланировка хрущевки 3 комнаты. Перепланировка трёшки-распашонки 60 м в панельной хрущёвке: 5 схем (бесплатно)
В спальных районах очень распространены девятиэтажки серии II-49 с малогабаритными квартирами. Разберёмся, что можно сделать с десятиметровыми спальнями и кухней 6 квадратов, и как найти место для гидромассажной ванны в хрущёвке.

Типовая планировка
Лишь две комнаты в типовой планировке изолированные. При этом существует несколько тамбуров и встроенный шкаф, которые усложняют планировку – их проще демонтировать. Недостатков хоть отбавляй: кухня 6 кв. м, супертесный раздельный санузел, вытянутые по форме комнаты-пеналы, отсутствие как таковой прихожей. Всё это делает типовую планировку непригодной для комфортной жизни.

Вариант 1
Самый простой вариант – оставить существующую планировку, но избавиться от очевидных недостатков. Например, демонтируем тамбур и встроенный шкаф, сузим коридор и за счёт этого увеличим площадь детской и гостиной. Теперь все комнаты изолированные, а к гостиной примыкает небольшая гардеробная. Санузел объединим, чтобы выиграть хотя бы ту часть площади, на которой раньше стояла стена.

Вариант 2
Перенос дверного проёма из кухни в гостиную – самый популярный вариант перепланировки в типовых домах. Так на самой кухне встанет дополнительная секция гарнитура, а санузел можно будет расширить за счёт коридора. В прихожей даже встанет шкаф для верхней одежды. Рядом с кухней можно обустроить только столовую или установить здесь же большой угловой диван. Тогда оставшиеся комнаты превратятся в симметричные спальни с гардеробной между ними.

Вариант 3
При необходимости площадь кухни можно сократить до минимума, чтобы расширить санузел и установить гидромассажную ванну. Стену между меньшей по площади комнатой и коридором демонтируем – помещение станет проходным, но куда более просторным. Гостиная и столовая соседствуют. Но можно установить диван в столовой у окна и превратить комнату в гостиную. Спален будет две. Полноценная гардеробная не обязательно должна занимать много места. В этом варианте она угловая, закрывается шторой или раздвижными дверьми.

Вариант 4
Принцип тот же – санузел объединим и расширим за счёт коридора, вход на кухню перенесём в гостиную. Если сузить коридор, то в маленькой комнате встанет и обеденный стол, и угловой диван. Чтобы изолировать две дальние комнаты, предусмотрим скошенные дверные проёмы. В спальне развернём кровать к окну и в глубине обустроим гардеробную неправильной формы. В детской останется достаточно места для кроватки и гостевого дивана. А письменный стол установим на утеплённом и присоединённом балконе.

Вариант 5
Стоит сразу оговориться, что согласовать такую перепланировку смогут только владельцы квартир на первом этаже или над офисами. Обычно мокрые зоны остаются на своих местах, но здесь кухню перенесём в меньшую по площади комнату. Сюда встанет очень вместительный П-образный гарнитур – идеальный вариант для любителей готовить. Если Изменить конфигурацию стены в коридоре, то встанет даже овальный обеденный стол. Все эти манипуляции необходимы, чтобы максимально расширить санузел. Теперь он просторный и комфортный, к тому же с окном – а это мечта многих. Входную дверь тоже предполагается перенести, чтобы обустроить прихожую. В дальней части квартиры появятся довольно типовые гостиная и спальня с гардеробной между ними.

Подписывайтесь на канал и узнавайте свежие тренды в дизайне интерьеров. Если вы хотите видеть больше такого в своей ленте — ставьте лайк.
Автор: Павел Шелягин, основатель магазина дизайнерской мебели Филдс .