Дизайн / интерьер / стиль
Незаурядные дизайнерские решения!
Main menu
Главная
Новости
Статьи
Главная
»
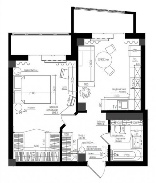
Квартира, площадью - 50 кв.
Квартира, площадью - 50 кв.
30.09.2023 в 08:44
м.
Интерьер на любителя
.
Понравилось? Поделитесь с друзьями!
⇦
Лучшие многолетники для миксбордера. Стили и виды миксбордеров
⇨
Трешка, в которую хочется сразу переехать.