Своими руками котел водяной. Чертеж простого котла длительного горения
- Своими руками котел водяной. Чертеж простого котла длительного горения
- Твердотопливный котел длительного горения своими руками чертежи. Типы пиролизных котлов
- Котел отопления своими руками чертеж. Классический тип агрегата
- Простой котел своими руками. Принцип работы твердотопливных котлов и их устройство
- Самодельный котел для отопления дома. Виды отопительных котлов
- Дровяной котел для водяного отопления своими руками. Как сделать дровяной котёл для водяного отопления своими руками
- Как сделать котел отопления на дровах. Хорошо зарабатываешь?
- Видео котёл отопления для дома своими руками
Своими руками котел водяной. Чертеж простого котла длительного горения
Такая конструкция твердотопливного котла довольно проста. Теплообменник может быть выполнен из листовой стали в виде «водяной рубашки». Для максимальной эффективности теплоотдачи и увеличения площади контакта с пламенем и горячими газами ее конструкция предусматривает наличие двух отражателей (выступов вовнутрь).

Чертеж простого твердотоплевного котла
В данной конструкции теплообменник представляет собой комбинирование «водяной рубашки» вокруг камеры сгорания и дополнительного щелевидного регистра из листового металла в верхней ее части.

Схема-чертеж котла с теплообменником щелевого типа
1 — дымовая труба; 2 — водяная рубашка; 3 — щелевой теплообменник; 4 — загрузочная дверка; 5 — дрова; 6 — нижняя дверка для поджига и чистки; 7 — колосники; 8 — дверка для регулирования подачи воздуха и чистки зольника.
- Как подключить котел длительного горения своими руками
- Сбросной клапан для отопления
- Термодатчики для котлов отопления
В данных вариантах «водяная рубашка» дополнена теплообменными регистрами из труб в верхней части камеры сгорания. Кроме того, такие агрегаты рассчитаны на приготовление на них пищи. Вариант 4 большей мощности и с верхней загрузочной дверкой.

Рис. 3 Конструкции твердотопливных котлов с дополнительными регистрами и варочной поверхностью
1 — топливник; 2 — регистр из труб; 5 — труба обратки; 6 — подающая труба; 7 -верхняя загрузочная дверка; 8 — нижняя дверка для поджига и подачи воздуха; 9 — загрузочная дверка; 10 — дымовая труба; 13 — колосниковая решетка; 14,15,16 — отражатели; 17 — заслонка; 19 — водяная рубашка; 20 — зольник; 21 — варочная поверхность.
Твердотопливный котел длительного горения своими руками чертежи. Типы пиролизных котлов
Первый шаг при сборке котла длительного горения своими руками – выбрать тип агрегата, который будет зависеть от подготовки мастера, использовании профессиональных и специальных приспособлений и материалов. Найти чертеж твердотопливного котла длительного горения нетрудно, и за основу можно взять такую схему:
Схема простейшего пиролизного котла
Это самая простая, но надежно работающая схема котла, который использует эффект пиролиза. Какие конструкции нагревательных котлов пиролизного горения еще существуют, и чем они отличаются друг от друга? Основная разница – как конструктивно будет оформлено направление сгорания твердого топлива:
- Аппарат с нижним горением – топливо нужно поджигать снизу. Это традиционная схема работы большинства пиролизных приборов. Такие агрегаты делятся на два подвида:
- Со стандартной схемой горения, при которой уголь, торф или опилки загораются и горят в одной камере сгорания, работающей одновременно и как загрузочная (закладочная) камера, и топливник. Отработанные газы и дым выводятся через дымоход в верхнем отделении топливника;
- Котел шахтной конструкции – шахта для закладки топлива выполняет только свои функции. Топливо загорается снизу, огонь и горячие продукты сгорания топлива движутся через теплообменник, обустроенный в соседней камере;
- Аппараты с верхним горением топлива работают наоборот – горючий материал поджигается сверху, и идет долгий процесс горения, направленный сверху вниз под действием принудительного наддува.
Принципиальная схема пиролизного котла
По типу сгорания топлива агрегаты делятся на:
- Котлы со стандартным типом сжигания;
- Агрегаты с газогенераторным или пиролизным сгоранием – топливо сгорает при высоких температурах в камере и при недостатке кислорода. При этом выделяется древесный газ, называемый пиролизным, который также сгорает в процессе его вывода из котла.
Также котлы, работающие на твердом топливе, могут иметь различные схемы и конструкции теплообменников. Сам теплообменник может быть выполнен в виде змеевика, опоясывающего топливную камеру и трубы, или в виде сплошной металлической рубашки, которая закрывает топливник со всех сторон.
Источник: https://gorizont-pro.ru/novosti/kotel-otopleniya-sdelat-konstrukcionnye-osobennosti-i-ustroystvo
Котел отопления своими руками чертеж. Классический тип агрегата
Такой вид применяется с использованием принудительного наддува, необходимого для избежания режима тления и для экономичного сжигания твёрдого топлива.

Принцип работы такой :
- 1. В топливник, объём которого 112 литров закладываются и поджигаются дрова. После этого закрываются плотно все дверцы, и при помощи автоматики запускается вентилятор, нагнетающий воздух.
- 2. Как только температура достигла заданного показателя, происходит остановка вентилятора и переход котла в режим ожидания. По каналу, закрытому гравитационной заслонкой, поступает воздух в очень малом количестве, чтобы дрова не потухли.
- 3. Когда температурным датчиком определится остывание теплоносителя в ёмкости котла, вентилятор автоматически включится, и процесс повторится.
При помощи автоматики осуществляются несколько режимов нагнетания воздуха в соответствии с используемой разной по качеству и влажности древесины. Стандартный тип котла имеет такие технические характеристики :
- номинальная мощность — 22 кВт;
- эффективность — 77%;
- максимальное рабочее давление — 3 бар;
- глубина топливника — 460 мм;
- размер проёма, куда закладываются дрова — 36 на 25 см;
- объём камеры — 112 л;
- продолжительность горения на дровяном топливе — примерно 8 часов.
Котёл отличается простым устройством: вытянутой в высоту топкой, оснащённой внизу колосниками, а вверху — теплообменником, состоящим из 4 труб и помещённым внутрь бака. Нагнетаемый воздух поступает в зольную камеру по каналу из профиля 60 на 40 мм. Для ограждения от попадания грязи и пыли автоматический блок и вентилятор располагаются сверху котла.
Простой котел своими руками. Принцип работы твердотопливных котлов и их устройство
Твердое органическое топливо является самым древним источником энергии для человечества. Отказаться от него полностью, даже в современном мире, невозможно. Тем более, что кроме дров и каменного угля сегодня появилось множество других видов горючих твердых веществ:
- брикеты из торфа – высушенный и спрессованный торф выделяет много тепла при сгорании;
- брикеты из отходов деревообрабатывающего производства – сжатые опилки, стружка и кора деревьев;
- березовый уголь – такой же, как для мангала;
- переработанный мусор со свалок;
- топливные отопительные гранулы – мелкое топливо, полученное прессованием опилок. Могут подаваться автоматически;
- обычные сухие опилки.

Различные варианты сырья для использования в твердотопливных котлах
Ясно, что все это топливо получено путем переработки различных отходов, что решает проблему утилизации на предприятиях и идет в русле «зеленой» экономики.
В результате деятельности человека образуется колоссальное количество отходов, которые могут быть преобразованы в высокоэнергетическое топливо, что и обусловило появление на рынке котлов отопления на твердом топливе длительного горения. В отличии от обычных печей, эти агрегаты работают не на сгорании самого топлива, а на его расщеплении в результате нагревания. В рабочей камере таких котлов сгорают газообразные продукты распада твердого топлива. Такая схема работы является в несколько раз более эффективной, чем обычное сжигание органического топлива. Пиролизный газ, отдает большое количество энергии.

Принцип работы твердотопливного котла длительного горения
Устройство такой газогенераторной установки не очень сложное. Можно даже соорудить своими руками котел твердотопливный длительного горения. Чертеж простейшего варианта выглядит следующим образом:
- закрытый цилиндрический бак, который имеет люк для закладки топлива, поддувало и отверстие для установки дымохода;
- внутри бака расположен распределитель воздуха, который создает завихрение пиролизного газа. Он крепится к подвижной телескопической трубе. Вся эта конструкция, похожая на поршень, давит на топливо сверху. Сгорание газа происходит над поршнем, а топливо тлеет под ним;
- теплообменник встроен в верхней камере, где достигается максимальная температура.
Медленное тление твердого топлива происходит в нижней камере. Оно достигается регулировкой подачи воздуха в поддувало. Выделяемый газ интенсивно горит в верхней камере и нагревает теплоноситель.

Схема системы отопления частного дома с использованием твердотопливного котла
Котлы на твердом топливе длительного горения могут быть незаменимы в частных домах, в хозяйственных сооружениях, гаражах и теплицах. Особенно они будут выгодны там, где имеется крупное деревоперерабатывающее производство, так как отходы на таких предприятиях отдают практически бесплатно. Необходимы эти агрегаты и в местностях, где бывают регулярные перебои с газоснабжением. У таких установок есть много преимуществ, но существует и один важный недостаток – очень высокая стоимость. Именно поэтому сегодня актуально изготовление своими руками котлов твердотопливных длительного горения. Чертежи для этого можно использовать разной степени сложности. Это зависит от уровня мастерства.
Источник: https://milyj-dom.ru-land.com/stati/svarka-samodelnogo-kotla-tverdotoplivnyy-kotel-svoimi-rukami
Самодельный котел для отопления дома. Виды отопительных котлов
Выбор типа самодельного котла отопления зависит от того на каком топливе он будет работать. Отсюда классификация:
- К электрическим котлам отопления не предъявляются высокие требования по безопасности. Конструкция состоит из емкости, которую несложно сделать из отрезка трубы с диаметром больше чем у подводящих патрубков отопительной системы. Внутри устанавливают ТЭНы. Несмотря на простоту изготовления такой котел для отопления экономически не выгоден, так как цена электроэнергии высокая. Поэтому этот вариант выбирают для периодического отопления небольших дачных домиков.
- У газовых котлов высокий КПД и невысокая цена топлива. Однако из-за взрывоопасности газа требования даже к заводским моделям очень высокие. Поэтому получить разрешение на установку и эксплуатацию самодельного котла отопления практически невозможно, а при монтаже в подвале и теоретически.
- В изготовлении жидкотопливного котла своими руками ничего сложного нет. Но для нормальной эксплуатации придется установить емкость для хранения мазута или дизтоплива и проложить от нее утепленный трубопровод. Цена горелки и трудности ее настройки могут отбить желание делать такой котел. Тем более что придется договариваться с пожарной инспекцией о получение разрешения на установку.
- Чаще всего для отопления частного дома устанавливают твердотопливный котел отопления. Его топят дровами, каменным углем, торфом, горючими сланцами. У самодельных котлов этого вида температура на выходе доходит до 120 — 150 ⁰C.
Дровяной котел для водяного отопления своими руками. Как сделать дровяной котёл для водяного отопления своими руками
- Инструменты и материалы:
- Сварка.
- Болгарка, шлифовальный и отрезной диски, очки.
- Дрель, свёрла по металлу.
- Газовые ключи с номерами 1 и 2.
- Молоток.
- Набор ключей и отвёрток.
- Пассатижи.
- Угольник.
Изготовление котла, чертежи
Принципиально можно разделить на три этапа:
- Изготовление корпуса.
- Сборка.
- Покраска.
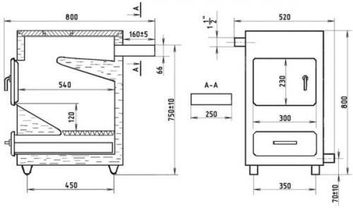
Фото 1. Чертёж отопительного котла на дровах с указанием размеров прибора. Вид спереди и сбоку.
Поэтапное изготовление дровяного котла:
- Подготовка материала. Наиболее простой вариант — толстостенная двухсотлитровая бочка. Ещё в качестве материала подойдут листовая сталь и труба диаметром 80 см и длиной 1 м. Нержавеющую сталь использовать нежелательно, так как из-за низкой теплопроводности прогрев помещения будет требовать больше дров.
- Заготовка дна — оптимальная толщина днища равна 50 мм.
- Подготовка опоры — используют арматуру диаметром 14 мм .
- Колосник — подойдёт толстый, не менее 50 мм толщиной, металлический круг. В нём проделываются прорези, через которые зола от дров будет поступать в зольник.
- Подготовка металлического листа для короба с перегородкой.
- Подготовка листа для водяного бака (подойдёт фабричный).
- Сварка арматуры внутри корпуса . Фиксация её на трёх уровнях параллельно между собой. Первый — дно котла, второй — над дверцей поддувала, третий — 200—220 мм под верхним краем корпуса.

Фото 2. Чертёж дровяного отопительного котла из металла. Устройство показано сбоку в разрезе и спереди.
- Сооружение короба и разделение его на два отделения : для топки и для золы. Через отверстие в корпусе вставляется короб и фиксируется сваркой.
- Изготовление поддувала . Можно просто вырезать в корпусе отверстие, а можно выполнить его в виде ящика — отпадёт необходимость присоединять дверцу и станет удобнее удалять накопившуюся золу.
- Недалеко от низа корпуса приваривается дно, а над ним — колосник. Уровень установки последнего должен совпадать с внутренней перегородкой короба.
- Делается прорезь для трубы , приваривается дверца и дымоход.
- Над котлом на высоте 250—300 мм крепится бак для воды. Его прикрепляют к стене и размещают так, чтобы дымоход проходил через него. Тепло от трубы и будет нагревать воду.
Как сделать котел отопления на дровах. Хорошо зарабатываешь?
Топи брикетами. Они дороже, но их не нужно заготавливать и сушить.
Дымоход — это важный элемент любого твердотопливного котла. Чрезмерно утеплённого и большого дымохода не бывает. Маленький или плохо утеплённый дымоход — это вонь, дёготь, обратная тяга. Всегда старайся поднимать дымоход выше конька кровли, и по максимуму его утепляй.

В посёлке Знаменском я это сфотал. Дымоход зачётный
Неотъемлемой частью котельной с твердотопливным котлом должна быть буферная ёмкость. Она не только увеличит КПД котла, но и предотвратит закипание котла при отключении электроэнергии. При условии, конечно, что к котлу она подключена самотёком.
Буферная ёмкость также сглаживает температурные колебания теплоносителя , что происходит при закладке в котёл топлива и чистке котла. В буферную ёмкость можно врезать тэн, и он будет подогревать теплоноситель, когда некому затопить котёл.

Котел Стропува с буферной ёмкостью в котельной частного дома
Монтаж дровяного котла это важное и ответственное дело. Тебе могут неправильно обвязать котёл, и ты с ним будешь мучиться всю жизнь. Конденсат, затухание, закипание всё это может присутствовать в твоей жизни каждый день.

Твердотопливный котел Зота Магна в частном доме
Ты должен знать, что при топке дровами лучше использовать стальные котлы, для топки углем лучше выбирать чугунные котлы.
Подведём итоги отопления на дровах:
- 2 года суши дрова или используй брикеты.
- Используй стальной котёл с буферной ёмкостью.
- Организуй правильный монтаж котла с термосмесительными узлами и самотёком.
- Монтируй дымоход с минимум 40 мм утепления по всем правилам установки.
- Установи электрический тэн в буферную ёмкость, и настрой его работу по ночному тарифу на электроэнергию. Это нужно для экономии твоих денег, на случай длительного отсутствия тебя дома.
Если ты физически и морально ко всему этому не готов, лучше не устанавливай дровяной котёл. Рассмотри другой источник получения тепла.