Дизайн / интерьер / стиль

Незаурядные дизайнерские решения!

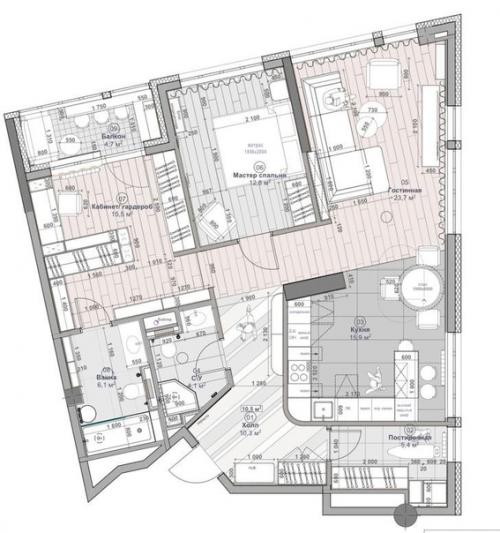
Современная квартира с необычной планировкой в Москве.

27.02.2023 в 09:45

Синергия строгой архитектуры и ярких оттенков.
Площадь - 98 кв. м
Современная квартира с необычной планировкой в Москве..

Современная квартира с необычной планировкой в Москве. 01
Современная квартира с необычной планировкой в Москве. 02
Современная квартира с необычной планировкой в Москве. 03
Современная квартира с необычной планировкой в Москве. 04
Современная квартира с необычной планировкой в Москве. 05
Современная квартира с необычной планировкой в Москве. 06
Современная квартира с необычной планировкой в Москве. 07
Современная квартира с необычной планировкой в Москве. 08