Дизайн однокомнатной квартиры в панельном доме. Планировка и создание проекта однокомнатной квартиры
- Дизайн однокомнатной квартиры в панельном доме. Планировка и создание проекта однокомнатной квартиры
- Дизайн 2-х комнатной квартиры 45м2 в панельном доме. Современный интерьер панельной двухкомнатной квартиры
- Дизайн 3-комнатной квартиры в панельном доме. Что входит в дизайн-проект интерьера 3-комнатной квартиры?
- Размеры однокомнатной квартиры в панельном доме. Какую планировку выбрать
Дизайн однокомнатной квартиры в панельном доме. Планировка и создание проекта однокомнатной квартиры
Что нужно сделать, чтобы небольшая однушка или студия заиграла новыми гранями, став не просто местом для проживания, но теплым, уютным домом со своей, особенной, атмосферой? Маленькая жилплощадь диктует собственные условия:
· необходимо четко представлять конечный результат;
· учесть комфорт и увлечения всех членов семьи, включая домашних любимцев;
· нельзя приобретать мебель и предметы декора просто «чтобы было» или пленившись рекламой и стильным дизайном. Вся обстановка должна выдерживаться в предельно лаконичном стиле, и выполнять определенные функции;
· грамотно разработанный дизайн проект квартиры 40 кв. м. – половина успеха. Помещение делится на функциональные зоны, не должно быть пустых, неиспользованных участков, ниш.

Если есть возможность, стоит до начала ремонта согласовать перепланировку. Обычно убирают перегородку между комнатой и кухней, объединяя их в одну гостиную-столовую. Но, данное решение неоднозначно: постоянная суета, шум, запахи при работе на кухне, с невозможностью от них отгородиться, негативно сказываются на психологическом комфорте домочадцев. Если речь идет о студии, то кухню рекомендуют отделять от остального пространства, выносить ее в ближе к прихожей.
Преобразования внутреннего пространства, которые позволят расширить площадь единственной комнаты могут быть следующими:
· демонтаж дверей и окна на лоджию или балкон. Их тщательно утепляют, устанавливают стеклопакеты, проводят свет и отопление. Получается уютная комнатка, которую используют как душе угодно. Ее можно сделать полностью закрытой с помощью стеклянных раздвижных дверей, повесить портьеры, или оставить открытой;

· вместо неудобного закутка-кладовой делают просторную гардеробную, демонтировав стену, и установив двери и перегородки из легких конструкций. Также освободившуюся площадь используют в качестве небольшой спальни, кабинета;

· объединяют раздельный санузел, устанавливая компактную душевую кабину или современную перегородку из закаленного стекла. Таким образом появляется место для размещения стиральной машинки, водонагревателя.

Примеры гармоничного и эффективного зонирования небольших комнат можно найти в интернете. В данной статье также представлены фотографии наиболее удачных идей по планировке студий и однушек, которые уже проверены жизнью.
Разработать собственный дизайн-проект можно с помощью специальных программ-редакторов. Либо просто начертить план от руки, соблюдая масштаб, и «поиграть» с расстановкой мебели, обустройством необходимых функциональных зон.
Варианты зонирования квартиры 40 кв. м
Чтобы вместить в дизайн однокомнатной квартиры площадью в 40 кв. м. все необходимые предметы обстановки, нужно все тщательно распланировать. Ведь на такой жилплощади нередко проживают семьи из 3-5 человек, каждому из которых необходимо личное пространство, место для отдыха, работы и учебы, творчества.
Как это сделать? Обратить внимание на советы профессионалов, и выбрать для себя подходящий вариант.
Дизайн 2-х комнатной квартиры 45м2 в панельном доме. Современный интерьер панельной двухкомнатной квартиры

На фото: Дизайн-проект панельной двухкомнатной квартиры 60 кв. м в современном стиле

Современный стиль в оформлении двухкомнатной квартиры в панельном доме пластичен в своем выражении. Достаточно определиться в выборе основы концепции дизайна интерьера и эффективно ее воплотить в конкретном пространстве.
Современное оформление помещений предоставляет большой простор для фантазии и сочетается с другими стилистическими направлениями: минимализм, хай-тек, урбан, арт-деко.
Планировка двухкомнатной квартиры 60 кв. м

На чертеже: Планировка 2-комнатной квартиры 60 кв. м в Москве. План расстановки мебели
Профессиональный подход к проектированию интерьера подразумевает обязательную разработку плана расстановки мебели.
В соответствии с желаниями заказчика дизайнер формирует проект уютного обустройства жизненного пространства: учитывает освещение, расположение и размеры предметов, их сочетание, практичность и стилистическую направленность оформления помещения.
Модный интерьер современной кухни

На фото: Интерьер кухни двухкомнатной квартиры в панельном доме
Самое популярное оформление современной кухни – смешение стилевых направлений, находящихся в тренде: хай-тек, урбан, минимализм, арт-деко.
Новые подходы к дизайнерскому решению пространства предоставляют широкий простор для фантазии. Главное, чтобы в ней сочетались такие качества, как уют и функциональность.

На фото: Интерьер кухни в современном стиле двухкомнатной квартиры панельного дома
Свежие идеи для кухни основаны на ясности и смелых решениях: дизайнеры предлагают отказаться от монотонных вариантов и обратиться к оригинальному сочетанию популярных цветов: белого, песочного, оливкового, шоколадного.
Доказано, что теплый колорит с предпочтением зеленых тонов улучшает настроение и аппетит. А легкая изящная дизайнерская мебель добавит комфорта и простора даже в самую маленькую кухню.
Дизайн спальни в современном стиле

На фото: Современная спальня двухкомнатной квартиры панельного дома, выполненная в сливовых оттенках
Откажитесь от стандартных представлений о дизайне спальни и примените самые новые и модные веяния!
В 2018 году профессионалы советуют выбрать «уютный минимализм» за основу и оживить его стильными и яркими акцентами: необычными предметами мебели, элегантными аксессуарами и авторскими светильниками. Такая спальня будет радовать глаз днем и обеспечит комфортный отдых ночью.
Контрастное дизайнерское решение для маленькой ванной комнаты

На фото: Дизайн ванной комнаты в типовой двухкомнатной квартире
Даже минимум квадратных метров ванной можно превратить в удобную, модную и светлую туалетную комнату высшего класса, применяя секреты мастерства дизайна интерьера.

На фото: Рациональная планировка маленькой ванной 2.8 кв. м в панельной двухкомнатной квартире
Используя белоснежный фон для контрастных деталей, встроенную мебель, малогабаритную бытовую технику, дизайнер способен значительно преобразить помещение маленькой ванной. На площади в 2.8 кв. м в санузле уместилась не только ванная со стеклянной шторкой, при желании превращающаяся в душевую кабину, но и мини-постирочная, оснащенная стиральной машиной с сушкой и бельевым шкафом.

На фото: Контрастное дизайнерское решение интерьера маленькой туалетной комнаты
При оформлении туалетной комнаты важно создать ощущение чистоты и комфорта. Контрастное сочетание белого и темно-синего является идеальным для небольшого помещения: создает восхитительный эффект открытого пространства и роскошного интерьера.
Дизайн 3-комнатной квартиры в панельном доме. Что входит в дизайн-проект интерьера 3-комнатной квартиры?
Дизайн-проект 3-комнатной квартиры имеет следующий состав.
1. Пакет технической документации

На чертеже: Обмерный план трехкомнатной квартиры в Береговом проезде

На чертеже: Экспликация помещений трехкомнатной квартиры в Береговом проезде

На чертеже: План демонтажных работ в трехкомнатной квартире в Береговом проезде

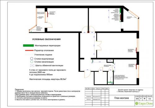
На чертеже: План монтажных работ в трехкомнатной квартире в Береговом проезде

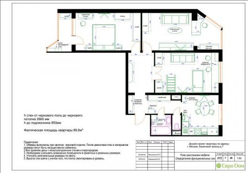
На чертеже: План расстановки мебели в трехкомнатной квартире в Береговом проезде

На чертеже: План потолка в трехкомнатной квартире в Береговом проезде

На чертеже: План пола в трехкомнатной квартире в Береговом проезде

На чертеже: План размещения осветительных приборов в трехкомнатной квартире в Береговом проезде

На чертеже: План розеток в трехкомнатной квартире в Береговом проезде

На чертеже: Схема сантехники и отопления в трехкомнатной квартире в Береговом проезде

На чертеже: Спецификация дверных и оконных проемов в трехкомнатной квартире в Береговом проезде

На чертеже: Разверстка стен в спальне трехкомнатной квартиры в Береговом проезде
В пакет технической документации входят чертежи, планы и схемы, которые потребуются для проведения ремонта. Они помогут строителям сформировать функциональное жилое пространство и правильно выполнить отделку. В списке обязательных технических документов:
- обмерный план и экспликация помещением с выделением функциональных зон;
- план расстановки мебели;
- планы монтажа и демонтажа (они необходимы при проведении перепланировки, сносе или возведении дополнительных перегородок или декоративных конструкций);
- план потолков:
- план раскладки напольных покрытий;
- план размещения светильников и привязки розеток и выключателей;
- спецификация дверных и оконных проемов;
- план размещения сантехнического оборудования;
- план системы отопления, вентиляции и кондиционирования;
- разверстка стен.
Кроме того, в проект могут быть включены чертежи сложных конструктивных элементов и дополнительные инженерные схемы.
2. Компьютерную 3D-визуализацию будущего интерьера в выбранном заказчиком стиле

На фото: 3D-визуализация кухни в классическом стиле в трехкомнатной квартире в Береговом проезде
Выполненная с использованием специальной компьютерной программы 3D-визуализация – это демонстрация обновленного интерьера в различных ракурсах. Как правило, дизайнеры делают несколько картинок каждого помещения в выбранном заказчиком стиле, что позволяет оценить и планировку, и общий вид каждой комнаты, и отделку.


Размеры однокомнатной квартиры в панельном доме. Какую планировку выбрать
Уже при покупке квартиры и осмотре разных вариантов имеет смысл определиться, сколько человек будут в ней жить и смогут ли они делить одну спальню.
- Студия — это единое помещение, в котором размещают и кухню, и гостиную, и спальню. Отдельно в таких квартирах вынесен санузел, иногда кладовая или гардеробная.
- Однокомнатная квартира подразумевает отделенную стеной кухню, а также выделенный коридор и санузел.
- Евродвушка — это средний вариант между однокомнатной квартирой и двухкомнатной. Обычно кухня расширена таким образом, чтобы в нее поместилась и зона для отдыха или гостиная. Спальня при этом отделена стеной, но нередко по площади меньше, чем в однокомнатных квартирах. Санузел изолирован, а вот коридор может быть совмещен с общей зоной.
Важный момент при выборе планировки — назначение квартиры: будут ли жильцы в ней только ночевать, захватывая небольшой отрезок времени, или дома постоянно будет кто-то находиться, в том числе работать. Все это отразится на использовании пространства и тех зонах, которые необходимо будет выделить при ремонте и обустройстве.
Как правило, в однокомнатных квартирах необходимо иметь несколько ключевых зон:
- зона сна, которую можно совместить с зоной отдыха;
- зона приготовления и приема пищи — кухня и/или столовая;
- рабочая зона — место для стола или компьютера;
- зона хранения — шкафы и стеллажи.
Надежда Коркка, управляющий директор компании «Метриум» (участник партнерской сети CBRE):
— При покупке квартиры в первую очередь стоит обратить внимание на репутацию и реализованные проекты застройщика. Это позволит не приобрести потенциальный долгострой или вариант со значительным объемом недоделок.
Выбор планировки зависит от изначального запроса конкретного покупателя. Например, если он планирует жить один, то ему вполне достаточно классической однокомнатной квартиры или студии. В свою очередь, для пары или семьи с маленьким ребенком оптимальным вариантом будет евродвушка.