Дизайн / интерьер / стиль

Незаурядные дизайнерские решения!

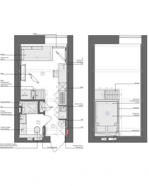
Двухуровневая студия, общей площадью 20, 3 кв.

26.04.2023 в 08:44

м.
Симпатичный, эргономичный интерьер
Двухуровневая студия, общей площадью 20, 3 кв..

Двухуровневая студия, общей площадью 20, 3 кв. 01
Двухуровневая студия, общей площадью 20, 3 кв. 02
Двухуровневая студия, общей площадью 20, 3 кв. 03
Двухуровневая студия, общей площадью 20, 3 кв. 04
Двухуровневая студия, общей площадью 20, 3 кв. 05