Дизайн / интерьер / стиль

Незаурядные дизайнерские решения!

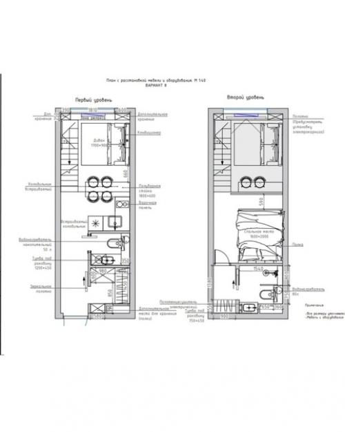
Уютная, атмосферная квартира - студия, площадью - 44 кв.

03.02.2023 в 09:45

м.
Воздушная студия, планировка цвета - классные
Уютная, атмосферная квартира - студия, площадью - 44 кв..

Уютная, атмосферная квартира - студия, площадью - 44 кв. 01
Уютная, атмосферная квартира - студия, площадью - 44 кв. 02
Уютная, атмосферная квартира - студия, площадью - 44 кв. 03
Уютная, атмосферная квартира - студия, площадью - 44 кв. 04