Планировка квартиры 43 м кв. Удачная планировка двушки в хрущевке на 43 кв. м. Все рассчитано до миллиметра
- Планировка квартиры 43 м кв. Удачная планировка двушки в хрущевке на 43 кв. м. Все рассчитано до миллиметра
- Современный дизайн однокомнатной квартиры. Дизайн маленькой однокомнатной квартиры
- Дизайн однокомнатной квартиры студии. Советы по выбору дизайна однокомнатной квартиры
- Дизайн двухкомнатной квартиры 40 кв м. Особенности дизайна небольших квартир
- Дизайн евродвушки 45 кв м. 4 секрета стильного дизайна квартир-евродвушек
- Дизайн квартиры 43 м2. Дизайн квартиры площадью 43 кв.м. в стиле лофт в Подмосковье
- Видео простая, но УЮТНАЯ ОДНУШКА 43 кв.м. Стильный дизайн однокомнатной квартиры
Планировка квартиры 43 м кв. Удачная планировка двушки в хрущевке на 43 кв. м. Все рассчитано до миллиметра
Современный дизайн однокомнатной квартиры. Дизайн маленькой однокомнатной квартиры
При грамотном оформлении и планировании маленькая однокомнатная квартира может превратиться в стильное и функциональное жилье. Многочисленные дизайнерские приемы позволят даже на 17 кв. м расположить все необходимые зоны. Конечно, на спортзал и библиотеку рассчитывать не приходится, а вот джентльменский набор точно поместится.
Есть общие правила, которых желательно придерживаться. Интерьер маленькой однокомнатной квартиры не терпит темных красок. Во всяком случае, в большом количестве. За основу лучше взять белый, нежно-бежевый, кремовый оттенки. Если хочется ярких цветов, можно сделать исключение из правил. Одна из комнат, например кухня, оформляется в глубокие цвета – синий, коричневый, зеленый. Но при этом мебель должна быть обязательно светлой, желательно белой.
Иногда встречаются планировки с узкими вытянутыми пространствами. Прямоугольная комната не лучший вариант для меблировки, но это решаемая проблема. Комнату можно сделать визуально шире при помощи нескольких приемов.
Противоположные стены окрашиваются в разные оттенки. Например, в белый и светлый беж. Или одна из них оформляется фотообоями с перспективой. Благодаря этому даже пространство в 20 кв. м приобретает совершенно другой вид. Пол украшают ковром с мелким узором. Также стоит продумать правильный световой сценарий. Вместо одного подвесного светильника используют несколько источников свет. Оконный проем не завешивают портьерами, а оставляют максимально открытым. Также подойдут жалюзи и римские шторы. Мебель используется лаконичная, в светлой обивке. Многое зависит и от отделки.

Фото: i.simpalsmedia.com

Фото: lakbermagazin.hu
Ремонт маленькой однокомнатной квартиры, скорее всего, не обойдется без перепланировки. В противном случае органично вписать все необходимые зоны и адаптировать их под сценарий жизни хозяев будет весьма затруднительно. Квартира студия чаще всего является наиболее удачным решением для скромной квадратуры.
Дизайн смарт квартиры
Для начала давай разберемся в терминологии. Смарт квартира – это небольшая жилая площадь. По сути, это обновленный вариант старых добрых гостинок. Минимальная квадратура стартует от 18 кв. м. Однако есть и существенное отличие. Smart в переводе с английского означает «умный». Умный интерьер умеет распорядиться каждым сантиметром полезной площади.
Обустроить смарт квартиру – непростая задача. Именно поэтому некоторые застройщики предлагают жилье с готовой меблировкой. Если хочется реализовать собственный проект, необходимо засесть за дизайн проект или обратиться к профессиональным дизайнерам.
Следует учесть, что смарт жилье – это вовсе не бюджетный вариант. Казалось бы, скромные габариты должны благотворно повлиять на общую смету. Ведь нужно меньше отделочных материалов. Это верно, однако есть одно «но». Всю мебель в идеале необходимо делать под заказ. Здесь на счету буквально каждый миллиметр. Конечно, можно найти и готовые решения с необходимыми параметрами. Однако это требует больших временных затрат.

Фото: idolza.com

Фото: casinhacolorida-simone.blogspot.rs

Фото: venidair.com
Ответом на вопрос «как обставить смарт квартиру?» станет мебель-трансформер. К ней тоже применимо слово «умная». Один гарнитур может включать в себя диван, трансформирующийся в двуспальную кровать, небольшой столик и шкаф со встроенной гладильной доской.
Кухня в смарт квартире должна быть максимально незаметной. Для «маскировки» используй белые фасады от пола до потолка с дверцами, которые открываются при помощи нажатия. Тут важно не экономить на фурнитуре, чтобы она прослужила как можно дольше. Интересная идея – мобильный стол на рельсе, встроенной в подоконник. Это не только позволит сэкономить 10-15 сантиметров, но и обеспечит свободу маневра. Так или иначе, зону подоконника непременно нужно использовать в качестве обеденного стола или дополнительной рабочей поверхности.
Дизайн смарт квартиры можно сравнить со съемкой короткометражного ролика, когда в несколько минут необходимо вложить колоссальный смысл. Однако это дает свои плоды. Пространство в 15 кв. м превращается в уютный и комфортный дом с уникальным характером. Этот тип квартиры хорошо подойдет в качестве первого самостоятельного жилья.
Дизайн однокомнатной квартиры студии. Советы по выбору дизайна однокомнатной квартиры
Большинство дизайнеров утверждают, что чем больше метраж помещения, тем менее рационально он используется. Другое дело, когда комната небольшая, а хочется уместить в нее как можно больше. Тогда владельцы начинают искать максимально практичный дизайн однокомнатной квартиры, продумывают применение каждого жилого сантиметра.

Кто уж так точно знает что такое «мало места» − так это обладатели однокомнатных квартир.
Небольшое жилое помещение должно включать в себя кухню, детскую и рабочую зону, спальню. На первый взгляд, это кажется невозможным, как показывает практика, неразрешимых задач не бывает.

Дизайн однокомнатной квартиры продумать сложнее всего, так как часто в одной комнате приходится размещать и спальное место, и гостиную, и кухонный уголок и даже место для ребенка.
Перечислим эффективные советы дизайнеров по созданию интерьера мечты
| Стиль минимализм | Подходящий вариант для оформления дизайна однокомнатной квартиры. Не нужно думать, что лучше оставить в комнате стол, стул и кровать. Здесь подразумевается покупка многофункциональной мебели и предметов интерьер: диван со встроенной столешницей, большой стол, который складывается и превращается в небольшой, журнальный вариант. Современные производители предлагают мебель разного размера, поэтому все эти элементы можно изготовить под заказ в нужных размерах. |
| Легкий, воздушный интерьер | Для визуального увеличения пространства можно использовать зеркальные поверхности, зонировать с помощью перегородок из легких, полупрозрачных тканей, тонкого, крепкого стекла. Если перегородки не нужны, зонирование можно сделать во время ремонта. Здесь важным моментом является грамотный подбор отделочного материала. Пол в разных зонах должен различаться: на кухне – плитка, гостиная в ламинате. В спальной зоне можно постелить пушистый ковер. Каждая зона должна иметь индивидуальное освещение. |
| Расстановка акцентов | Не использовать в интерьере однокомнатной квартиры только темные или только светлые тона. Выделяются 2-3 основных акцента. Например, темный полок и светлые стены, либо, стены и потолок светлые, а пол насыщенного, темного оттенка. Но, не стоит использовать много темного, визуально он уменьшит комнату. |
| Перепланировка | Стены внутри маленького помещения, делают его еще более небольшим, режут его. Поэтому, если они не несущие, лучше разобрать. |
| Многофункциональное использование кладовки | В старых домах есть кладовая, которую можно практично использовать. Она отлично выполнит роль встроенного шкафа, или гардеробной. Не будет необходимости устанавливать «большой ящик» в основной комнате. |
| Высокие потолки | Если потолки в квартире высокие, можно установить кровать над полом. Она называется кровать-чердак. Основание может быть отличным шкафом. Таким образом, соединяются сразу 2 мебельных элемента. |
| Грамотное применение декоративных элементов и текстиля | Не стоит перегружать интерьер для однокомнатной квартиры статуэтками и шкатулками разных размеров. Окна лучше украшать тонкими, легкими тканями или рулонным вариантом штор. |
Дизайн двухкомнатной квартиры 40 кв м. Особенности дизайна небольших квартир
Малогабаритное жилье требует особого подхода при разработке концепции ремонта и проекта будущего дизайна. В первую очередь, определите, сколько жильцов будет находиться в квартире.

Для одного человека или молодой пары без детей вполне подойдет пространство с открытой планировкой, где в общей зоне можно расположить кухню и гостиную или спальню с гостиной.
Если же речь идет о многодетной семье или проживании нескольких поколений под одной крышей, то без зонирования пространства никак не обойтись.

В таком случае придется использовать различные перегородки, раздвижные шторки или специальную многофункциональную мебель. Многоуровневая система освещения придаст интерьеру разнообразия и наполнит его простором.

Затем необходимо определиться со стилистикой помещения. При выборе варианта лучше обратить внимание на стиль, не требующий излишнего количества мебели и декорирования. Такой прием оформления украдет лишние метры и без того маленькой комнатки.

Например, классика или прованс совсем не придутся к месту, а вот лофт или минимализм не только гармонично впишутся в пространство, но и дополнительно его расширят.

В сегодняшнем дизайне квартиры 40 кв. м. придуманы различные приемы, позволяющие оптически увеличивать небольшие пространства. Например, зеркальные мебельные фасады раздвигают границы, зрительно добавляя помещению площади.

Не лишним будет рассмотреть оформление стен и мебели в светлой цветовой гамме. От темных тонов лучше отказаться, они уменьшат объем жилплощади.

Большие оконные проемы сыграют на руку обладателям небольшой квартиры. Естественный дневной свет, льющийся из окна, добавит интерьеру легкости и воздушности.

Разумеется, такой прием не сработает, если вы загромоздите комнату множеством вещей. Поэтому, при ремонте квартиры и покупке мебели остановитесь на самом необходимом. Все лишнее стоит исключить из помещения.

Дизайн евродвушки 45 кв м. 4 секрета стильного дизайна квартир-евродвушек
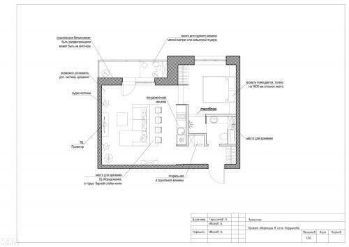
Дизайн квартиры 43 м2. Дизайн квартиры площадью 43 кв.м. в стиле лофт в Подмосковье

Проект небольшой квартиры в стиле лофт разработан дизайнерами Алексеем Ивановым и Павлом Герасимовым из московской мастерской дизайна интерьеров Geometrium. Квартира, предназначенная для проживания одинокого мужчины, находится в Перхушково, Московская область, Россия. Ее площадь всего 43 квадратных метров. Однако, несмотря на такую маленькую площадь и невысокие (2.65 метров) потолки, авторам проекта удалось создать современное стильное жилье для постоянного проживания холостяка. Кроме того, в выходные дни здесь можно собраться целой компанией из 5-6 человек и интересно провести время.

Однокомнатная квартира полностью перепланирована. Кухня перенесена в гостиную, а в освободившемся помещении обустроена полноценная спальня с удобной кроватью на высоком подиуме. Квартира разделена на несколько функциональных зон – социальную, объединяющую гостиную, столовую и кухню, спальню, ванную комнату с душевой кабиной и прихожую. В оформлении сделана ставка на лофт. Грубая кирпичная кладка, натуральный камень - сланец и шпон дерева в отделке мебели, сланец и тиковая доска в оформлении санузла, осветительные приборы в индустриальном стиле – все это делает интерьер брутальным и динамичным. Доминирование темной цветовой палитры в интерьере не ощущается, благодаря светлым вкраплениям.

Гладкий белый потолок, белая дверь в прихожей, белый диван в гостиной и белая кровать в спальне, серый и кремовый текстиль эффектно смягчают коричневые и черные тона. Часть стены между спальней и душевой выложены полупрозрачными стеклоблоками, создающими ощущение легкости и элегантности интерьера. Учитывая габариты квартиры, дизайнеры постарались эффективно использовать каждый сантиметр пространства.

Раздвижные двери отделяют прихожую от санузла и прачечной. Барная стойка служит одновременно обеденным столом. Внутри нее есть специальная полка, в которой хранится комплект диджейского оборудования. На противоположной стене расположены телевизор и экран проектора. Экран проектора встроен в конструкцию на потолке и выдвигается по нажатию кнопки. Внизу находится встроенная тумба под технику, которая при необходимости может служить местом, где можно посадить гостей. По углам тумбы размещены два небольших радиатора для обогрева помещения.

Спальня размещена на подиуме, в котором имеется ниша, куда встраивается конструкция кровати. Стена за изголовьем отделана декоративной штукатуркой под бетон. Светодиодная лента, установленная сверху, подчеркивает фактуру материала. На подоконнике размещен уютный диванчик. Интересно оборудован балкон – это и зона отдыха, и место для хранения предметов домашнего обихода. Здесь находится комфортный диванчик, над которым установлена небольшая полка для хранения кальяна и принадлежностей к нему. Небольшой шкаф с обратной стороны балкона скрывает блок фильтрации воздуха. Благодаря интересным дизайнерским решениям, малогабаритная квартира превратилась в стильный современный лофт.






