Как стены в детской влияют на развитие ребенка
- Как стены в детской влияют на развитие ребенка
- Связанные вопросы и ответы
- Как выбрать подходящий цвет для стен в детской
- Какие материалы лучше всего использовать для отделки стен в детской
- Как обеспечить безопасность стен для ребенка
- Какие функциональные элементы можно разместить на стенах в детской
- Как создать стильный и современный дизайн стен в детской
- Какие стильные решения для стен помогут создать уютную атмосферу
Как стены в детской влияют на развитие ребенка
Окружающая обстановка оказывает большое влияние на развитие и формирование личности малыша. Грамотно подобранная мебель для детской комнаты развивает у него правильные интересы и стремление к учебе, способствует раскрытию талантов.
Разберемся, как обустроить пространство для жизни ребенка с пользой для него.
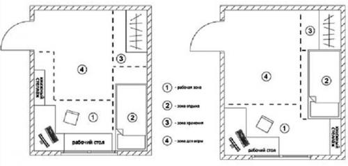
Правильное зонирование
Независимо от площади, специалисты рекомендуют разделять детскую комнату на 3 основные зоны:
- для учебы,
- для отдыха;
- для игр.
Такое разделение с психологической точки зрения приучает ребенка к ответственности. Кровать — место для сна, там не читают книги и не принимают пищу. Рабочий стол — пространство для концентрации внимания и выполнения домашних заданий, там не играют.
Родителям важно следить, чтобы малыш поддерживал порядок в каждой зоне. Прежде чем перейти из учебной в игровую зону, сразу убирал школьные принадлежности на свои места. Перед тем, как уйти из зоны для игр, складывал все игрушки.
В детях, которые живут в комнатах с правильным зонированием, развивается ответственность, дисциплинированность, аккуратность.
Если вы живете в небольшой квартире и у ребенка нет своей комнаты, отделите для него пространство при помощи гипсокартонной перегородки. И там выполните соответствующее зонирование.
Что должно быть в детской комнате?
Обустраивая детскую, обязательно предусмотрите удобный компьютерный стол и мягкое кресло на колесиках. Выбирайте дизайн и цветовое решение мебели с учетом пожеланий малыша. Рабочая зона, которая нравится ребенку, будет вызывать желание к учебе, развитию и получению новых навыков.
Не менее важный критерий — место для сна и отдыха. Можно купить удобную кровать или детский диван . Главное обеспечить ребенку комфортное спальное место.
Если в семье двое детей, обратите внимание на двухъярусные кровати. Такая мебель отличается практичностью и позволяет сэкономить в помещении максимум свободного пространства.
Также рекомендуется выделить в детской комнате специальное место на стене, где будет обустроена зона для рисования и развития творческих способностей.
Открытых полок с книгами и принадлежностями для учебы, и прочих похожих деталей в интерьере лучше избегать. Учебные предметы, которые постоянно находятся на виду у малыша, лишний раз напоминают ему об обязанностях. Поэтому вместо открытых стеллажей предусмотрите в детской комнате закрытые системы хранения.
Не стоит забывать и о спортивном уголке. Регулярная физическая активность поможет ребенку вырасти не только здоровым и физически крепким, но и сформирует у него стабильный психоэмоциональный фон.
В качестве такого уголка можно установить специальный спортивный комплекс или шведскую стенку. Если площадь детской небольшая, оптимальным вариантом будут турник или лестница.
Если вы не знаете, как грамотно заполнить пространство вокруг ребенка, обратитесь к консультантам профильных магазинов. Опытные специалисты посоветуют, какую мебель подобрать, и дадут рекомендации по грамотной расстановке в комнате. Помогут с выбором цветовой гаммы, которая поможет малышу чувствовать себя спокойно и комфортно.
Связанные вопросы и ответы:
Вопрос 1: Какие общие рекомендации по дизайну стен в детской
При создании дизайна стен в детской важно учитывать возраст ребенка, его интересы и предпочтения. Стены должны быть безопасными, поэтому стоит выбирать материалы, которые не вызывают аллергии и легко чистятся. Функциональность также играет ключевую роль – можно использовать стены для хранения вещей или организовать зоны для творчества. Эстетическая часть должна быть яркой и вдохновляющей, но не перегруженной, чтобы не отвлекать ребенка. Также важно обеспечить хорошее освещение, которое будет способствовать комфортному пребыванию в комнате.
Вопрос 2: Как выбрать цветовую гамму для стен в детской
Выбор цветовой гаммы для стен в детской зависит от возраста и характера ребенка. Для младших детей лучше использовать мягкие, успокаивающие тона, такие как светло-синий, зеленый или желтый. Старшие дети могут предпочитать более насыщенные цвета, которые отражают их интересы, например, оранжевый или фиолетовый. Важно помнить, что цвета должны способствовать созданию уютной атмосферы и не перегружать ребенка. Также стоит учитывать, что светлые цвета визуально увеличивают пространство, а темные – уменьшают. Прежде чем сделать окончательный выбор, можно попробовать нанести образцы краски на стену и посмотреть, как они выглядят в разных условиях освещения.
Вопрос 3: Какие материалы лучше всего использовать для отделки стен в детской
Для отделки стен в детской важно выбирать материалы, которые безопасны, прочны и легко чистятся. Одним из популярных вариантов являются виниловые обои, которые устойчивы к влаге и износостойкие. Также можно использовать краску на водной основе, которая экологична и не выделяет вредных веществ. Для создания оригинального дизайна можно применять стеновые панели или декали, которые легко устанавливаются и не требуют сложного ухода. Еще одним вариантом являются текстурированные обои, которые добавляют объемности и интереса стенам. Важно убедиться, что выбранный материал гипоаллергенен и подходит для детского возраста.
Вопрос 4: Как сделать стены в детской функциональными
Стены в детской можно сделать функциональными, используя различные организаторы и системы хранения. Например, можно установить полки, крючки или ящики, которые помогут порядок в комнате. Также популярностью пользуются интерактивные стены с досками для рисования или магнитными поверхностями, где ребенок может размещать свои работы. Еще один вариант – использование стен с встроенными нишами для книг или игрушек. Функциональные стены не только экономят пространство, но и способствуют развитию творчества и independенции ребенка. Кроме того, можно добавить зеркала или светильники, которые улучшат освещение и визуально расширят комнату.
Вопрос 5: Какие идеи для украшения стен в детской
Для украшения стен в детской можно использовать различные идеи, которые сделают комнату уютной и интересной. Одним из популярных вариантов являются детские обои с любимыми персонажами или природными мотивами. Также можно повесить картины или постеры, которые соответствуют интересам ребенка. Еще один оригинальный способ – использование стеновых стикеров, которые легко меняются и не повреждают поверхность. Можно добавить 3D-декор, который создает объемный эффект, или установить полки для любимых игрушек и книг. Кроме того, стены можно украсить фотографиями или рисунками ребенка, что сделает комнату более личной и уникальной.
Вопрос 6: Как обеспечить безопасность стен в детской
Обеспечение безопасности стен в детской является важным аспектом дизайна. Во-первых, нужно использовать материалы, которые не содержат вредных веществ и гипоаллергенны. Во-вторых, все элементы, такие как полки или крючки, должны быть надежно закреплены, чтобы избежать падения. В-третьих, стоит избегать острых углов и краев, используя защитные накладки или округленные формы. Также важно убедиться, что стены не перегружены тяжелыми предметами, которые могут упасть. Наконец, можно использовать защитные пленки или стекло на стенах, чтобы предотвратить повреждения от карандашей или маркеров.
Вопрос 7: Как создать индивидуальный дизайн стен в детской
Для создания индивидуального дизайна стен в детской важно учитывать интересы и предпочтения ребенка. Можно начать с выборка цветовой гаммы, которая нравится ребенку, и добавить элементы, отражающие его хобби или любимых персонажей. Например, если ребенок любит космос, можно использовать тематические обои или наклейки. Также можно вовлечь ребенка в процесс дизайна, позволив ему выбрать некоторые элементы декора. Использование нестандартных материалов, таких как пробковая доска или магнитные поверхности, также может добавить оригинальности. Важно помнить, что дизайн должен быть функциональным и безопасным, поэтому стоит проконсультироваться с chuynиком, если это необходимо.
Вопрос 8: Какие современные тенденции в дизайне стен для детской
Современные тенденции в дизайне стен для детской включают использование экологичных материалов, таких как натуральные обои или краски на основе природных компонентов. Также популярностью пользуются минималистичные дизайны с простыми формами и сдержанными цветами. Еще одной тенденцией является использованиеных технологий, таких как интерактивные стены или светодиодное освещение, которое можно программировать. Кроме того, акцент делается на функциональности и универсальности, например, использование трансформируемых элементов или многоуровневых полок. Наконец, многие родители выбирают нейтральные цвета и добавляют яркие акценты с помощью декора, что позволяет легко обновлять дизайн по мере роста ребенка.
Как выбрать подходящий цвет для стен в детской
Что самое дорогое в жизни? Конечно, наши дети. С какой любовью и теплотой мы всегда начинаем ремонт и обустройство детской комнаты. Хочется, чтобы все, что в ней находится, дышало свежестью, уютом, здоровьем и безопасностью. Важно не ошибиться, идти в правильном направлении при оформлении, создании уникальной атмосферы.
Цветовая гамма в детской комнате – это особый разговор. Возможно, многим без помощи психологов не обойтись, потому что влияние цвета на психологическое и эмоциональное, физическое и творческое развитие ребенка очень велико.
Влияние цвета в комнате на психику ребенка
Вы хорошо изучили темперамент вашего сына или дочери? Сколько лет ребенку? Какие жизненные сферы, свойственные его возрасту, ему близки? Только ответив подробно на эти вопросы, приступайте к переделке.
А что советуют психологи?
- Красный
Нам так нравится, когда малыш эмоционально реагирует на красную игрушку, яркий мамин платок и т.д. Это вполне объяснимо. Красный возбуждает, заставляет двигаться, даже совершать маленькие глупости.
Поэтому с красным в детском интерьере перебарщивать ни в коем случае нельзя. Пусть красный присутствует в узоре на детском ковре, мягкой игрушке, декоративнойе нав цвете детского стульчика за, где ребенок рисует или лепит из пластилина.
- Оранжевый
Устраивать «оранжевое небо», «оранжевое море», «оранжевую зелень» в детской не стоит. Этот веселый оттенок быстро утомляет, если его очень много. Акцентных пятен будет достаточно:, центральная стена, приятные мелочи, игрушки. Умеренное использование апельсина в красках будет слегка будоражить творческую составляющую характера ребенка.
- Желтый
А вот с желтым цветом и его полутонами не нужно стесняться. Выбрать бледно-желтый оттенок для окрашивания всех стен – удачное решение. Солнечные, теплые краски будут радовать глаз и создавать прекрасное настроение.


Какие материалы лучше всего использовать для отделки стен в детской
Существует ряд требований, которые важно соблюдать при выполнении внутренней отделки стен в комнате, предназначенной для ребенка:
- Первое: оформление стен должно иметь привлекательный вид, действовать успокаивающе на нервную систему ребенка, вызывать радостные эмоции и фантазии.
- Второе: для проведения работ нужно выбирать только абсолютно безопасные для здоровья материалы, не вызывающие аллергических реакций, по возможности изготовленные из натуральных составляющих.
- Третье: это должен быть материал, который легко содержать в чистоте, потому что дети порой даже рисуют на стенах или просто могут их испачкать. Понятно, что перечисленным качествам отвечают далеко не все материалы.
Перечислим несколько наиболее приемлемых вариантов дизайна стен в детской. Заметим сразу, что покраске стен в этой статье будет посвящен отдельный раздел, потому что это наиболее часто используемый способ оформления, требующий, однако, тщательного подхода к выбору материала. Что ж, поговорим о том, какой дизайн подходит для отделки перегородок в детской комнате.
Различные виды декоративной штукатурки
В Москве это очень популярный вид отделки стен в детских комнатах, потому что штукатурка как нельзя лучше подходит для использования именно в помещениях, предназначенных для детей.

Перечислим несколько ее преимуществ перед другими материалами:
- неповторимость получаемого рельефного рисунка;
- соответствие требованиям экологичности и безопасности для здоровья;
- штукатурка отлично маскирует неровности и другие небольшие огрехи на стенах;
- готовое покрытие, выполненное из штукатурки, – это сплошной бесшовный монолит;
- работа с этим материалом требует лишь минимальных навыков, и можно все проделать своими силами;
- покрытие получается долговечным.
Для закрепления слоя штукатурки на стене на него часто наносят специальный прозрачный лак. Это увеличит срок службы покрытия и облегчит уход за стенами (если ребенок их испачкает). Только нужно внимательно выбирать лак, смотреть, чтобы его состав не представлял угрозы для здоровья.
Оклейка стен обоями
Еще не так давно для дизайна стен в детских комнатах использовали исключительно обои. Да и сейчас это очень популярный материал, несмотря на большое разнообразие других вариантов для воплощения задуманного дизайна. Чем хороши именно обои? Их довольно просто наклеить. В продаже всегда есть огромный выбор расцветок. И по цене это вполне демократичный вариант. А что касается выбора рисунка, то сейчас предложений столько, что разбегаются глаза: и однотонные, и со всевозможными орнаментами, с изображениями сюжетов из сказок и т. д.
Однако не увлекайтесь только выбором расцветки при покупке обоев для детской, обращайте внимание и на качественный состав материала, из которого они изготовлены. Потому что не каждые обои, представленные на рынке, можно клеить в комнате, предназначенной для ребенка.
Подходят для этого следующие виды:
- Бумажные обои. Их советуют клеить в детских комнатах очень многие профессионалы, невзирая на то, что бумага – материал непрочный, недолговечный и невлагостойкий (можно, кстати, найти моющиеся бумажные обои). Зато такой вид отделки максимально подходит для дизайна стен в детской благодаря своей отличной воздухопроницаемости и натуральному составу.
- Флизелиновые. Тоже хорошо пропускают воздух, поэтому вполне годятся для детских комнат. А вот виниловые обои не обладают необходимыми экологическими характеристиками и совсем не пропускают воздух. В последнее время можно найти современные варианты дышащих виниловых обоев, однако это очень дорогое удовольствие.
- Обои на базе древесного шпона очень хорошо подходят для детских комнат благодаря тому, что на их изготовление идет натуральное сырье.
- Пробковые обои производятся с использованием коры пробкового дерева, это идеальный вариант для детской комнаты. Конечно, выбор расцветок таких обоев невелик, это будут оттенки, близкие к цвету натуральной пробки – от темно-желтого до светло-коричневого.
- Обои, основой для изготовления которых являются бамбук, водоросли и другие натуральные материалы.
- Тканевые, или текстильные, обои. Состоят как бы из двух слоев – бумажного и тканевого (лицевого). Очень хороши для детской благодаря своим экологичным, тепло- и звукоизоляционным показателям, сделаны из дышащего материала. При выборе отдавайте предпочтение маркам со специальной пылеотталкивающей пропиткой.
Как обеспечить безопасность стен для ребенка
Обеспечение безопасной среды для малыша должно начинаться со взаимного доверия между ним и родителями. Когда ребенок осознает, почему ему нельзя взаимодействовать с некоторыми объектами, ощущает заботу и не боится делиться с вами своими мыслями, взрослому проще нейтрализовать источники опасности. Здесь важно быть надежным другом, советником для маленького жителя, обучая его самостоятельности и не “задушив” его своим контролем. Объясните малышу, что несет для него угрозу и почему, периодически напоминайте о правилах бытовой безопасности, но не пытайтесь взвалить на него сразу много информации. Тогда ребенок не будет ощущать давления на себе, адекватно воспринимая полученные советы.
Конечно, одними только наставлениями не обойтись. Для безопасности чада предстоит тщательно оценить все места квартиры, потенциально несущие опасность. Рассмотрим, что должно стать объектом вашего внимания в первую очередь.
Защита от электричества
Чтобы уберечь ребенка от травм, связанных с источниками электричества, убедитесь во внешней безопасности трех основных факторов:
- Провода. Проверьте надежность изоляции всех проводов. Они также не должны быть “разбросаны” по комнате - это не только портит вид помещения, но и создает не безопасную атмосферу. Приобретите скрепы, с помощью которых их можно прикрепить к напольному покрытию. Делать это желательно за пределами зрительной доступность ребенка (за мебелью, впритык к стенам), чтобы они не стали объектом его интереса. Если же вы только планируете ремонт, то лучше сразу продумать этот момент - например, спрятать большую часть проводов под обоями, убрать под плинтус. Можно даже приобрести напольное покрытие с выемкой под кабель. Другой вариант - использовать пластиковые коробы для проводов. Таким образом можно закрепить их даже на потолке или стенах.
- Розетки. В детстве каждому говорят “не вставлять пальцы в розетку”. Но любопытству малышей нет предела, поэтому лучше не предоставлять им такую возможность для “опытов”. В магазинах можно купить пластиковые заглушки на розетки, вынуть которые можно только при помощи ключа, идущего в комплекте. Также проверьте целостность всех удлинителей, шнуров, вилок приборов. Все разветвители желательно располагать в местах, куда не сможет добраться ребенок.
- Электроприборы. В этом случае полноценно обезопасить прибор от любопытного малютки удастся вряд ли, поэтому старайтесь следить, чтобы он не оставался наедине с включенными устройствами. К электроприборам, которые могут травмировать ребенка, можно отнести работающий утюг, вентилятор, радиатор и пр. Любой настольный прибор может стать потенциальной опасностью, если провод, за который чадо может дернуть, свисает со стола. Поэтому этот момент тоже следует предупредить. Настоящий “клондайк” для юного искателя приключений на свою голову - это стационарный компьютер, провода которого порой создают целые джунгли. Сегодня большую часть периферии для него можно заменить беспроводными устройствами, что сведет к минимуму потенциальную опасность.
Какие функциональные элементы можно разместить на стенах в детской
Обустройство детской зависит от площади комнаты, геометрических размеров, освещенности в течение дня, количества и возраста детей. Кроме этого необходимо продумывать меблировку на перспективу, ведь малыши быстро растут, а приобретать новые гарнитуры через пару лет будет накладно. Дизайнеры редакции Homius выделили 10 правил расстановки мебели в детской, которые помогут сделать комнату более комфортной и функциональной.

Расстановка мебели для двух деток в прямоугольной комнате
- письменного стола ;
- зоны отдыха;
- сектора хранения предметов гардероба;
- игровой и спортивной зоны .
Планируем расстановку на бумаге
Предварительно необходимо всё спланировать на бумаге: начертить план помещения в масштабе с обозначением окон и дверей , а также радиаторов отопления . Затем нужно определить месторасположение основных секторов:
В зависимости от возраста ребёнка определяют оптимальную площадь для каждого сектора. Например, дошкольникам основное пространство отводят под игровую зону, для письменного стола и шкафа нужно совсем мало места. Со временем понадобится полноценный рабочий стол с оргтехникой и вместительный шкаф для хранения одежды, игровая зона заменяется спортивным уголком .
Совет! Можно использовать специальные онлайн-программы для планирования размещения модульных групп. Второй вариант: нарисовать все предметы мебели в масштабе на бумаге, вырезать их и моделировать разные сценарии расстановки вручную.




Как создать стильный и современный дизайн стен в детской
Благодаря интерактивным технологиям информация передается малышам так, что они с удовольствием ее воспринимают и лучше запоминают. Повышается мотивация, а в процесс обучения вовлекается весь коллектив.
Особое место в интерактивной подаче материала детям дошкольного возраста занимают проекционные системы. Подача информации в игровой форме на большой монитор способствует большей активации умственной деятельности. Ребенку сложно отвлечься: яркость, доступность подачи материала, игровая форма обучения, звуковые эффекты, мультипликация – все эти элементы превращают занятия с детьми в увлекательный процесс.
Интерактивные стены, доски, полы, песочницы увеличивают скорость восприятия информации детьми, развивают интуицию, помогают образно мыслить. Практически не имеет ограничений подаваемый дидактический материал. Множество презентационных, графических и обучающих программ в игровой форме, обучают детей тому навыку, который необходим для гармоничного развития современного человека.
Кроме проекционных систем, дети с удовольствием занимаются у интерактивной доски с LCD монитором. Они с большим энтузиазмом передвигают своими руками предметы. Положительным свойством этих инструментов является то, что они отлично реагируют на несколько касаний, отчего 2-3 ребенка одновременно могут заниматься у доски. Множество программ, уже записанных в систему, позволяют проводить интересные и увлекательные уроки.
Использование новых технологий в детском саду, интерактивных игр, в качестве обучающего, развивающего и воспитывающего инструмента, позволяет детям дошкольного возраста получать массу положительных эмоций. Обучая друг друга и, пользуясь вместе с друзьями интерактивными проекционными системами и другими IT-технологиями, детям прививаются навыки коллективной работы, они учатся работать в команде.
С интерактивными технологиями можно полноценно проводить игры-уроки, в процессе которых ребенок не только изучит новый материал, но и укрепит его, а педагог может контролировать процесс усвоения материала.
Интерактивные технологии прививают способность ориентироваться в огромном потоке информации, получаемой как из компьютера, так и из реальной действительности, просеивать ее и правильно передавать.
Какие стильные решения для стен помогут создать уютную атмосферу
Самый первый момент, который нужно учитывать при выборе расцветки мебели — общий дизайн интерьера. Важно, чтобы шкаф идеально сочетался с обстановкой и дополнял ее, а не выделялся ярким обособленным пятном.
Цветовое оформление комнаты влияет на психическое состояние человека. Поэтому важно подбирать такие оттенки, которые будут повышать настроение и заряжать положительной энергией. Но помните, что они должны гармонировать друг с другом.

Подобрать цвет шкафа-купе помогут следующие правила:
Общая цветовая совместимость. При выборе оттенка фасада не следует забывать про другие тона, присутствующие в интерьере помещения. Все расцветки должны сочетаться друг с другом. Лучше всего опираться на цветовой круг Иттена.
Не более 3 цветов. Чтобы интерьер не получился перегруженным, рекомендуется выбирать 2–3 оттенка для оформления комнаты. Идеально, если шкаф-купе будет гармонировать с отделкой стен, пола, мягкой мебели. Слишком пестрый интерьер просто перегрузит психику и будет выглядеть безвкусно.
Соответствие размеру помещения. Если комната маленькая, то следует отдать предпочтение двум светлым тонам и одному яркому в качестве акцента. Большое количество темных оттенков визуально уменьшит пространство.
Соответствие типу комнаты. Если шкаф выбирается в спальню, предпочтительнее пастельные оттенки, оказывающие расслабляющий эффект. Для детской комнаты можно приобрести яркую мебель, которая оживит интерьер. В большую гостиную отлично подойдет объемный и вместительный темный шкаф.
Маскировка шкафа под обои. Отличное решение для небольших помещений, где важен каждый сантиметр. Фасад гардероба подбирается под цвет отделки и словно растворяется в плоскости стены.
Доминирование эффектной формы. Если много свободного пространства, можно сделать шкаф-купе в интерьере акцентным предметом. В таком случае требуется отталкиваться от контраста. Если обои светлые, то система хранения должна быть темной, насыщенной, выразительной. И наоборот, при темной отделке помещения следует выбирать светлую мебель.