Советы дизайн однушки, как оптимально обустроить под нужды. Как обустроить однушку
- Советы дизайн однушки, как оптимально обустроить под нужды. Как обустроить однушку
- Дизайн однокомнатной квартиры с нишей + 33 фото интерьера
- Дизайн однокомнатной квартиры-студии. Минимализм
- Дизайн однокомнатной квартиры 2019. Дизайн квартир 2019 года: тенденции и современные идеи подбора стиля (110 фото)
- Дизайн однокомнатной квартиры для семьи из 4 человек. Дизайн квартиры-студии для семьи с ребёнком
- Дизайн однокомнатной квартиры для семьи с ребенком. Однушка 35 кв. м для семьи с двумя детьми
- Видео 6 советов, как увеличить пространство в маленькой квартире
Советы дизайн однушки, как оптимально обустроить под нужды. Как обустроить однушку
Опытный дизайнер Регина Урм поделилась с нами профессиональными хитростями, как обустроить однокомнатную квартиру и сделать её просторной и очаровательной.
Каждый, кто приобретал недвижимость, сталкивается со многими трудностями, а именно: с ремонтом и оформлением интерьера. Простому обывателю сложно разобраться в дизайне, правильном размещении мебели, различных отделочных материалах, а когда площадь небольшая, особенно важно удачно использовать пространство, сделать квартиру удобной и комфортной. Конечно же, хочется сделать ее еще и оригинальной, при этом без особых финансовых вложений. Как же быть?
Нам дала ответ эксперт портала « Из рук в руки », опытный дизайнер интерьеров Регина Урм. В своей профессии Регина Урм работает уже более 10 лет. Успешно реализовала огромное количество интерьеров квартир, загородных домов, пентхаусов и общественных помещений. С 2010 года Регина является постоянной участницей телевизионного шоу «Школа ремонта».
Как обустроить однушку
– Когда я берусь за небольшой объект, то всегда очень тщательно продумываю многие моменты, ведь пространство компактное и хочется учесть все пожелания заказчиков по мебельному наполнению, зонированию, сделать интерьер не загроможденным, максимально просторным, и тут, конечно же, помогают некоторые дизайнерские хитрости.
Для начала нужно составить точный список всех необходимых предметов мебели, уделите этому как можно больше времени. Продумайте, чем вы пользуетесь постоянно, что необходимо иметь под рукой, а какие предметы наоборот можно спрятать подальше . Попробуйте нарисовать несложный план от руки и представить, как будет располагаться тот или иной предмет.
Дизайн однокомнатной квартиры с нишей + 33 фото интерьера

Распространенным, а также наиболее интересным вариантом создания креативной планировки и дизайна является однокомнатная квартира с нишей.
Казалось бы — мало площади, единственная комната и ниша, где же можно фантазировать? В реальности все обстоит не так, как представляется — необходимость обеспечения дополнительной жилплощади как нельзя лучше способствует полету творческой фантазии и созданию просто невероятных дизайнерских решений, которые отличаются эффектностью и практичностью. Какие преимущества может дать дизайн однокомнатной квартиры с нишей.
Функциональные предназначения ниши
Решения могут понравиться человеку исключительно в двух случаях — либо владелец помещения — идейный минималист, которому становится плохо от каких-либо излишеств, либо имеющаяся жилплощадь обусловлена материальным состоянием человека. Удивляться здесь, на самом деле, совершенно нечего — в Гонконге (Китай) минимальная площадь жилья составляет 5 кв м, так что там ниши в однокомнатной квартире становятся настоящим спасением.
Использоваться ниша может следующим образом:
- Детская комната (мини-игровая);
- Кухня;
- Одно место для спанья (зона отдыха);
- Минималистский кабинет, состоящее из стола и компьютера;
- Мини-спортзал — на один тренажер;
- Кладовая или гардеробная. Лучший вариант-просто установить большой шкаф-купе.
Есть настоящие любители ниш в однокомнатной квартире, которые даже при их отсутствии стремятся воссоздать их искусственным путем, из гипсокартона, создавая в нише однокомнатной квартиры определенное дополнительное помещение со своим назначением.
Что учитывается при оформлении пространства ниши и помещения, прилегающего к ней?
В этой ситуации следует предложить два способа реализации дизайнерского решения:
- Ниша однокомнатной квартиры является своеобразным продолжением комнаты, несколько расширяя ее — практически и зрительно;
- Помещение контрастирует на общем фоне, выделяясь цветовой гаммой и благодаря особым образом построенному падению света.
По поводу освещения и подбора цветовой гаммы ниши однокомнатной квартиры целесообразно дать единственный, но невероятно ценный совет — вне зависимости от стилевого оформления помещения, ниша должна быть светлее.
Даже при условии, если общее оформление помещения выполнено в темных тонах — ниша однокомнатной квартиры должна быть своеобразным островком света.
А вот темный уголок светлого помещения будет казаться каким-то участком негатива, к которому-то и подходить не захочется.
Дизайн однокомнатной квартиры-студии. Минимализм
Этот стиль считают наиболее удачным при оформлении небольших квартир. Его отличительной чертой является использование лаконичной и функциональной мебели, светлых, спокойных тонов, минимум отделки.
Материалы при таком дизайне должны быть максимально натуральными. На полу используют деревянное покрытие, стены покрывают штукатуркой или однотонными обоями.
Все пространство, а также мебель, должны быть выдержанны в четких геометрических формах: прямоугольник, квадрат, овал. Приветствуются стеклянные и зеркальные перегородки.
Ошибочно считать, что при дизайне 1-комнатной квартиры нужно отказаться от таких уютных, теплых и домашних стилей, как прованс, классика и этно. Просто при оформлении интерьера стоит уменьшить количество декоративных деталей, выбрать спокойные тона как основную цветовую гамму и использовать мебель-трансформер, подходящую к общей атмосфере помещения.
Общее правило при оформлении интерьера однокомнатной квартиры – не допускать перегрузки пространства. Это применимо и к цветовой палитре.
Универсальным можно считать выбор пастельных, светлых тонов. Яркими акцентами стоит выделять отдельные функциональные зоны. Этого можно добиться, окрасив часть стены, или добавив цветной текстиль. Но не стоит забывать, что обилие пледов, декоративных подушек может перегрузить интерьер.
Если кухонных гарнитур встроен в отдельную нишу, выбор ярких глянцевых фасадов станет интересным и оригинальным решением. В случае стандартного расположения лучше не акцентировать на нем внимание, и купить мебель неброских оттенков. В зоне приготовления пищи добавить цвета можно, купив яркую посуду и салфетки под приборы.
При оформлении коридора не рекомендуется использовать обои с частым, повторяющемся рисунком. Из-за того, что пространство узкое, от такого декора стен будет рябить в глазах.
В дизайне однокомнатной квартиры цветовые акценты могут выступать как один из способов зонирования пространства.
Дизайн однокомнатной квартиры 2019. Дизайн квартир 2019 года: тенденции и современные идеи подбора стиля (110 фото)
Современный дизайн квартир сегодня редко придерживается какого-то одного стиля. В 2019 году стало модно сочетать различные стили вроде Хай-тек-Поп-арт или лофт-минимализм. Уникальное сочетание различных направлений и идей сделает ваше жилище поистине уникальным и оригинальным.

Основные идеи
Часто люди называют стильную и хорошо отремонтированную квартиру, так что даже самый простой дизайнер придет в уныние. Да речь идет о «Евроремонте».

Реальный дизайн квартиры сегодня должен опираться на 6 китов:
- Правильная геометрия. Имеется в виду, что прямые линии и четко выверенные углы должны быть элементами полов углов и дверных проемов, а плавно изгибающиеся линии подойдут для мебели и аксессуаров.
- Широкий цветовой спектр. Современные квартиры, разработкой интерьера которых занимались квалифицированные дизайнеры, редко используют какую-то одну гамму оттенков. Сочетание разных цветовых идей и контраст между, казалось бы, несовместимыми оттенками придает дух современности помещению.
- Натуральность. Сегодня в моде использование элементов из натуральных материалов.
- Отсутствие клише. При правильном использовании пространства даже холодные бетонные стены будут создавать уют в вашей комнате.
- Свет. Использование большого количества осветительной техники помогает подчеркнуть необходимые части помещения и играет большую роль в визуальном восприятии.
- Разделение зон. Грамотное разделение различных зон деятельности может увеличить эргономичность вашей квартиры.
Соблюдая эти правила, вы сможете создать уют в вашем жилище. Помните, что лучше не пихать все яйца в одну корзину, используйте необходимый минимум и все у вас получится.

Удачные сочетания
Вы вольны использовать те идеи, которые вам по душе. Не нужно строго следовать какому-то одному направлению, если вам нравится только цвет обоев. Популярные стили дизайнов квартир отлично могут ужиться. Для вас мы подготовили удачные сочетания стилей и фото новинок квартир.

Современный дизайн и минимализм
Современному человеку зачастую не нужно большое скопление аксессуаров и ненужных вещей. Простота и эргономичность сейчас занимают лидирующие позиции в запросах заказчиков у дизайнеров.

Поэтому минимализм стал основой, на которую нанизывают элементы дополнительного стиля, будь то Хай-тек или скандинавский стиль, все можно выполнить на базе простого и удобного минимализма.

Достаточно добавить симпатичную цветовую гамму в простоту помещения и у вас уже имеется симпатичный дизайнерский гибрид. Старайтесь не использовать не функциональные элементы без необходимости, они могут сильно загромождать пространство.
Лофт как основа
Нельзя не упомянуть о таком современном стиле как лофт. Он претерпел некоторые изменения с тех пор, как им называли невзрачные помещения с высокими потолками и старинными предметами. Оригинальные идеи работы с голыми бетонными стенами, светом и пространством вывели его в ряды элиты современных стилей.

Никто не мог подумать, что обычный бетон это очень полезный и стильный материал. Использование колон, стен и потолков из бетона можно заметить во многих современных квартирах.

Если вы подсветите бетонную поверхность с боку так, чтобы неровности были видны по остающейся от них тени, это придаст глубину и загадочность в интерьер.

Квартира-студия
Стоимость жилья растет постоянно и не всегда есть возможность приобретения большой многокомнатной квартиры. Однако необходимость снижения общей площади квартир привело к тому, что появились, так называемые квартиры студии.

Из-за того что в таких квартирах нет разделения между комнатами и кухней, и необходимо организовать какой-то минимум для комфортного проживания, создание сбалансированного дизайна квартиры студии дело не из легких.

Одним из основных принципов при выборе дизайна для студии является правило «Меньше-лучше». Не стоить уменьшать и без того дефицитные метры.
Основное на чем стоит заострить внимание при описании современного подхода при создании даже дизайна однокомнатной квартиры это разделение на зоны. Даже если в квартире всего одна комната, можно грамотно используя свет и элементы интерьера разделить зоны жизнедеятельности, которые плохо сочетаются между собой.
Особенно это касается кухни. На ней совершается самое большое количество активных действий в квартире. Часто при выборе квартиры люди обращают внимание на то, как выглядит кухня на фотографиях.
Но нельзя забывать, что на кухне происходит готовка пищи и ее подготовка. А это грязь и нужно представлять, как вы будете вычищать грязь с идеально белой поверхности.
При создании дизайна маленьких квартир не стоит бояться уделять дополнительное внимание спальне. Ведь именно там вы набираетесь сил для новых побед. И там все несколько проще других помещений.
Главное чему вы должны уделить внимание это свету. Для чтения и работы. Необходимо организовать управление источниками света так, чтобы меньше шуметь, пока ваша вторая половинка спит.
Дизайн однокомнатной квартиры для семьи из 4 человек. Дизайн квартиры-студии для семьи с ребёнком
Сегодня без посторонней помощи не каждый может позволить купить себе «однушку» или квартиру-студию. Рассмотрим идеи как грамотно расставить мебель, предметы и поделить пространство, чтобы всем членам семьи было комфортно находиться в квартире.
Молодая семья из Санкт-Петербурга следующим образом оформила интерьер своей студии площадью в 27 квадратов. Они разрабатывали дизайн самостоятельно. Основной идеей было сделать полноценную детскую комнату, вместить двуспальную кровать, создать просторную гостиную. Вот, что у них получилось.

Для кухни молодые выделили небольшое место и отделили его от комнаты перегородкой. Просторная столешница заменила стол. Белые шкафчики подвешены к потолку. Микроволновка расположена на полке. Хоть все и впритык, но аккуратно и без лишнего «хлама».

Вместительная комната (17,9 м²) позволила создать просторную гостиную и детскую. Последняя зонирована гипсокартоновой перегородкой, возведенной не до потолка. Так не создаётся ощущения давления стен. Диван поставлен вплотную к стене, напротив — телевизор. Удачное сочетание синего, бежевого и белого цвета визуально расширяет пространство.

Маленькая спальная. Как говорится; «в тесноте, да не в обиде».

Пока ребёнок не вырос, ему здесь достаточно места. А через несколько лет, родители накопят на новую квартиру).

Гардеробная с вместительным комодом и коробочками из IKEA.

Дополнительное рабочее место в лоджии.

Ванная комната с сочетанием красной и белой плитки. Глубокая раковина в скандинавском стиле и натяжной потолок. Порошки и средства для мытья расположены на верхней полке.


Прихожая "в клетку" выглядит классически стильно, а тёмная плитка на полу гармонично сочетается с бежевыми дверями.

Подводя итог, можно отметить, что в целом квартира получилась уютной, у каждого члена семьи есть свой уголок. В гостиной — простор и отсутствует нагромождение предметов. Лоджия, как дополнительное место для работы, способна разгрузить пространство главной комнаты. Стильная ванная и классическая прихожая еще раз доказывают аксиому: «всё зависит от людей». Как часто бывает, что большие квартиры с дорогущей мебелью выглядят отвратительно и несуразно. А на эту маленькую квартирку приятно смотреть и через экран монитора.
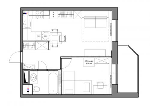
Дизайн однокомнатной квартиры для семьи с ребенком. Однушка 35 кв. м для семьи с двумя детьми
Изолированную комнату отдали под детскую, а в кухне-гостиной установили удобный диван-кровать и вместительную систему хранения.

Площадь однокомнатной квартиры в ЖК «Юнион» в Санкт-Петербурге, которую оформили специалисты бюро Cubiq Studio, составляет всего 35 м2. Жить в ней планирует семья с двумя детьми. Им могло бы быть тесно на скромной площади, если бы не главное преимущество квартиры. Коммуникации подведены в более глубокой и темной части большой комнаты. Благодаря этому удалось превратить её в кухню-гостиную, а маленькую изолированную спальню превратить в детскую.

Поскольку родителям предстоит спать в гостиной, дизайнеры выбрали диван-трансформер, который превращается в полноценную двуспальную кровать. Напротив неё установили комод под телевизор и пару открытых полок для книг.

Зону прихожей отделили от основного пространства нишей со встроенным шкафом для верхней одежды. А чтобы помещение не казалось тесным, в холле установили большое зеркало в белой раме, а проем оставили широким. Благодаря этому комната будто продолжается за пределы прихожей.

Кухонный гарнитур встроили в небольшую отведённую для него нишу. Выбрали максимально вместительную П-образную модель с минималистичными белыми матовыми фасадами. Верхние шкафы чуть уже, а нижние – вровень со шкафом, который как будто их продолжает. На самом деле это система хранения для всех вещей, которые необходимы большой семье.

Поскольку зона кухни уж очень тесная, одну из стен освободили от верхних шкафов. Вместо них предусмотрели открытые полки для зелени и специй. В качестве кухонного фартука здесь использовали грифельную краску.

В детской комнате появилась двухъярусная кровать, причём спальные места расположены перпендикулярно друг другу. Это позволило внизу обустроить дополнительные полочки и зону отдыха с пуфом-игрушкой. Рядом – письменный стол со всеми необходимыми принадлежностями.

Шкаф выбрали с открыто-закрытой системой хранения. Это позволяет хранить в нём и повседневную одежду, и игрушки с книжками. Предусмотрели и компактную шведскую стенку, которая занимает минимум места.


Хотите видеть больше подобного в своей ленте – ставьте лайк.
Чтобы регулярно смотреть свежие подборки интерьеров со всего мира, подпишитесь на канал .