Дизайн / интерьер / стиль

Незаурядные дизайнерские решения!

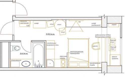
Крошечная студия с удобной планировкой.

10.04.2023 в 08:44

Площадь: 24, 5 кв. м.
Стройные, удобные решения
Крошечная студия с удобной планировкой..

Крошечная студия с удобной планировкой. 01
Крошечная студия с удобной планировкой. 02
Крошечная студия с удобной планировкой. 03
Крошечная студия с удобной планировкой. 04
Крошечная студия с удобной планировкой. 05
Крошечная студия с удобной планировкой. 06
Крошечная студия с удобной планировкой. 07
Крошечная студия с удобной планировкой. 08
Крошечная студия с удобной планировкой. 09