Дизайн / интерьер / стиль

Незаурядные дизайнерские решения!

Комфортная среда для проживания трех человек.

11.10.2023 в 08:46

Квартира в спокойных тонах, но при этом интерьер яркий и жизнерадостный.
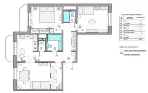
Площадь - 75, 5 кв. м
Комфортная среда для проживания трех человек..

Комфортная среда для проживания трех человек. 01
Комфортная среда для проживания трех человек. 02
Комфортная среда для проживания трех человек. 03
Комфортная среда для проживания трех человек. 04
Комфортная среда для проживания трех человек. 05
Комфортная среда для проживания трех человек. 06
Комфортная среда для проживания трех человек. 07
Комфортная среда для проживания трех человек. 08
Комфортная среда для проживания трех человек. 09