Дизайн / интерьер / стиль
Незаурядные дизайнерские решения!
Main menu
Главная
Новости
Статьи
Главная
»
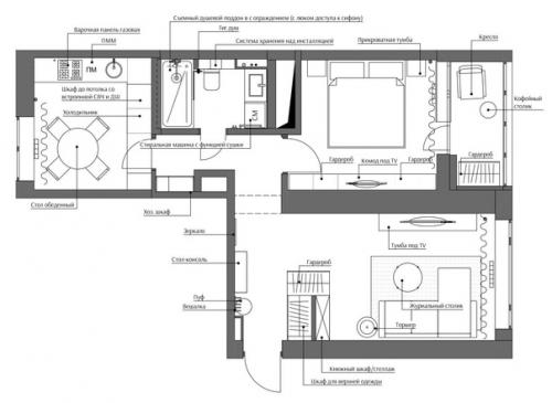
Двухкомнатная квартира в брежневке.
Двухкомнатная квартира в брежневке.
27.08.2023 в 08:48
Площадь: 50 кв. м
.
Понравилось? Поделитесь с друзьями!
⇦
Интерьер квартиры с интересной мебелью и декором.
⇨
Количество саморезов на лист гипсокартона на стене кнауф. Расчет количества саморезов