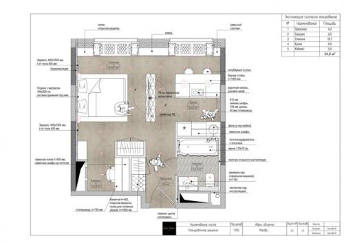
Проект перепланировки небольшой 1-комнатной квартиры площадью 34, 8 кв.
м. в современную студию - отличный пример того, как компактное пространство можно сделать функциональным и стильным. Этот интерьер создан специально для молодого мужчины - холостяка, который ценит простоту, удобство и современный дизайн.

Особое внимание уделено грамотному зонированию: кухня и спальня разделены лаконичной стойкой с поворотным телевизором. Такое решение не только экономит место, но и добавляет комфорта - можно удобно смотреть фильмы или передачи, находясь как в зоне готовки, так и в зоне отдыха.

Интерьер выполнен в минималистичном стиле с чёткими линиями и сдержанной цветовой палитрой, что создаёт атмосферу порядка и лёгкости. Вместе с тем продуманное освещение и умные решения для хранения делают квартиру удобной и практичной.

Этот проект - отличный пример того, как правильно организовать пространство, чтобы оно отвечало современным требованиям и стилю жизни, не теряя при этом индивидуальности и комфорта.






