Дизайн / интерьер / стиль

Незаурядные дизайнерские решения!

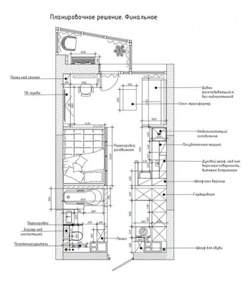
Проект квартиры, площадью: 33, 4 кв.

03.04.2024 в 08:45

м.
Очень приятное ощущение от квартиры и формата зонирования
Проект квартиры, площадью: 33, 4 кв..

Проект квартиры, площадью: 33, 4 кв. 01
Проект квартиры, площадью: 33, 4 кв. 02
Проект квартиры, площадью: 33, 4 кв. 03
Проект квартиры, площадью: 33, 4 кв. 04
Проект квартиры, площадью: 33, 4 кв. 05
Проект квартиры, площадью: 33, 4 кв. 06
Проект квартиры, площадью: 33, 4 кв. 07
Проект квартиры, площадью: 33, 4 кв. 08