Дизайн / интерьер / стиль

Незаурядные дизайнерские решения!

Общее впечатление - все очень красиво, празднично и дорого.

06.09.2024 в 08:44

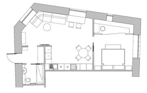
Площадь - 50 кв. м
Общее впечатление - все очень красиво, празднично и дорого..

Общее впечатление - все очень красиво, празднично и дорого. 01
Общее впечатление - все очень красиво, празднично и дорого. 02
Общее впечатление - все очень красиво, празднично и дорого. 03
Общее впечатление - все очень красиво, празднично и дорого. 04
Общее впечатление - все очень красиво, празднично и дорого. 05
Общее впечатление - все очень красиво, празднично и дорого. 06
Общее впечатление - все очень красиво, празднично и дорого. 07
Общее впечатление - все очень красиво, празднично и дорого. 08
Общее впечатление - все очень красиво, празднично и дорого. 09