Перепланировка трехкомнатной панельной квартиры. Перепланировка трёшки-распашонки 60 м в панельной хрущёвке: 5 схем (бесплатно)
- Перепланировка трехкомнатной панельной квартиры. Перепланировка трёшки-распашонки 60 м в панельной хрущёвке: 5 схем (бесплатно)
- План типовой трехкомнатной квартиры в панельном доме. Типовые планировки квартир Чтв, Ап. 2011
- Московская планировка трехкомнатной квартиры. Планировка 3 комнатной квартиры – лучшие проекты 2019-2019, зонирование и дизайн в едином стиле (105 фото)
- Перепланировка 3 комнатной квартиры 60м2. Разновидности планировки 2-комнатных квартир и степень возможного преобразования
- Видео перепланировка трехкомнатной квартиры в 2019 г. Все нюансы.
Перепланировка трехкомнатной панельной квартиры. Перепланировка трёшки-распашонки 60 м в панельной хрущёвке: 5 схем (бесплатно)
В спальных районах очень распространены девятиэтажки серии II-49 с малогабаритными квартирами. Разберёмся, что можно сделать с десятиметровыми спальнями и кухней 6 квадратов, и как найти место для гидромассажной ванны в хрущёвке.

Типовая планировка
Лишь две комнаты в типовой планировке изолированные. При этом существует несколько тамбуров и встроенный шкаф, которые усложняют планировку – их проще демонтировать. Недостатков хоть отбавляй: кухня 6 кв. м, супертесный раздельный санузел, вытянутые по форме комнаты-пеналы, отсутствие как таковой прихожей. Всё это делает типовую планировку непригодной для комфортной жизни.

Вариант 1
Самый простой вариант – оставить существующую планировку, но избавиться от очевидных недостатков. Например, демонтируем тамбур и встроенный шкаф, сузим коридор и за счёт этого увеличим площадь детской и гостиной. Теперь все комнаты изолированные, а к гостиной примыкает небольшая гардеробная. Санузел объединим, чтобы выиграть хотя бы ту часть площади, на которой раньше стояла стена.

Вариант 2
Перенос дверного проёма из кухни в гостиную – самый популярный вариант перепланировки в типовых домах. Так на самой кухне встанет дополнительная секция гарнитура, а санузел можно будет расширить за счёт коридора. В прихожей даже встанет шкаф для верхней одежды. Рядом с кухней можно обустроить только столовую или установить здесь же большой угловой диван. Тогда оставшиеся комнаты превратятся в симметричные спальни с гардеробной между ними.

Вариант 3
При необходимости площадь кухни можно сократить до минимума, чтобы расширить санузел и установить гидромассажную ванну. Стену между меньшей по площади комнатой и коридором демонтируем – помещение станет проходным, но куда более просторным. Гостиная и столовая соседствуют. Но можно установить диван в столовой у окна и превратить комнату в гостиную. Спален будет две. Полноценная гардеробная не обязательно должна занимать много места. В этом варианте она угловая, закрывается шторой или раздвижными дверьми.

Вариант 4
Принцип тот же – санузел объединим и расширим за счёт коридора, вход на кухню перенесём в гостиную. Если сузить коридор, то в маленькой комнате встанет и обеденный стол, и угловой диван. Чтобы изолировать две дальние комнаты, предусмотрим скошенные дверные проёмы. В спальне развернём кровать к окну и в глубине обустроим гардеробную неправильной формы. В детской останется достаточно места для кроватки и гостевого дивана. А письменный стол установим на утеплённом и присоединённом балконе.

Вариант 5
Стоит сразу оговориться, что согласовать такую перепланировку смогут только владельцы квартир на первом этаже или над офисами. Обычно мокрые зоны остаются на своих местах, но здесь кухню перенесём в меньшую по площади комнату. Сюда встанет очень вместительный П-образный гарнитур – идеальный вариант для любителей готовить. Если Изменить конфигурацию стены в коридоре, то встанет даже овальный обеденный стол. Все эти манипуляции необходимы, чтобы максимально расширить санузел. Теперь он просторный и комфортный, к тому же с окном – а это мечта многих. Входную дверь тоже предполагается перенести, чтобы обустроить прихожую. В дальней части квартиры появятся довольно типовые гостиная и спальня с гардеробной между ними.

Подписывайтесь на канал и узнавайте свежие тренды в дизайне интерьеров. Если вы хотите видеть больше такого в своей ленте — ставьте лайк.
Автор: Павел Шелягин, основатель магазина дизайнерской мебели Филдс .
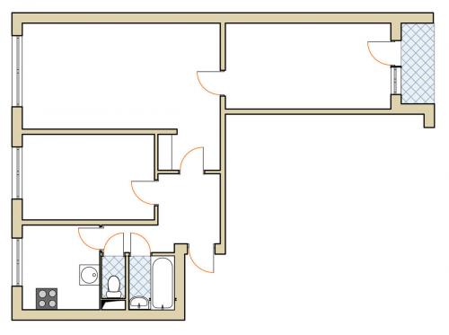
План типовой трехкомнатной квартиры в панельном доме. Типовые планировки квартир Чтв, Ап. 2011
Описание и типовые планировки квартир. От "сталинок" до современных.
| Сталинки 1954-1961 | 1955-1960 г.г. | 1955-1960 г.г. | 1954-1961 г.г. | |||
| 2-, 3-этажные кирпичные дома
| 4-, 5-этажные кирпичные дома | 4-этажные кирпичные дома | ||||
| Хрущевки 1958-1967 | 1960-1967 г.г. | 1963-1967 г.г. | 1958-1964 г.г. | 1959-1960 г.г. | ||
| 5-этажные панельные дома | 5-этажные панельные дома | 4-,5-этажные кирпичные дома | 4-,5-этажные блочные дома | |||
| 1964-1967 г.г. | 1964-1967 г.г. | |||||
| 5-этажные кирпичные дома | 5-этажные блочные дома | |||||
| Брежневки 1966-1975 | 1966-1973 г.г. | 1966-1970 г.г. | 1967-1977 г.г. | 1966-1967 г.г. | ||
| 5-этажные панельные дома | 5-этажные панельные дома | 5-этажные кирпичные дома | 5-этажные панельные дома (для малосемейных) | |||
| 1967-1970 г.г. | ||||||
| 5-этажные панельные дома (блок-комнаты) | ||||||
| Стандартные 1968-1999 | 1970-1976 г.г. | 1968-1977 г.г | 1970-1977 г.г. | |||
| 9-этажные панельные дома | 9-этажные панельные дома | 9-этажные кирпичные дома | 5-этажные панельные дома (блок-комнаты) | |||
| 1977-1998 г.г. | 1973-1975 г.г. | 1972-1977 г.г. | ||||
| 9-этажные панельные дома (для малосемейных) | 9-этажные панельные дома (для малосемейных) | 9-этажные панельные дома (блок-комнаты) | ||||
| 1973-1985 г.г. | ||||||
| 12-этажные панельные дома | ||||||
| Улучшенные | 1976-1983 г.г. | 1977-1985 г.г. | 1976-1994 г.г. | 1977-1996 г.г. | ||
| 16-этажные панельные дома | 9-этажные панельные дома | 9-этажные панельные дома | 9-этажные панельные дома | |||
| 9-этажные панельные дома | 12-этажные панельные дома | |||||
| 1983-1998 г.г. | ||||||
Московская планировка трехкомнатной квартиры. Планировка 3 комнатной квартиры – лучшие проекты 2019-2019, зонирование и дизайн в едином стиле (105 фото)
Среди современного жилья весьма популярной недвижимостью является 3-комнатная квартира. В зависимости от того, когда было возведено здание и какая у него серия зависит планировка квартир.

Можно сказать, что каждая квартира уникальна, имеющаяся в ней планировка кого-то устраивает, а кого-то нет. Тогда встает вопрос о перепланировке жилой площади. Необходимо детально разобраться в этом вопросе.
Типичная 3-комнатная планировка
В типовой 3-комнатной квартире жилое пространство распределено различным образом, причем некоторые варианты весьма удобны, другие способны доставить дискомфорт.

Существует вариант с двумя маленькими и одной большой комнатой, с одной комнатой изолированного типа и двумя смежными помещениями. Есть так называемая схема «самолет», когда окна комнат выходят на разные стороны дома.
Оптимальными считаются квартиры с изолированными комнатами. В стандартном типе квартиры с тремя комнатами присутствует кладовое помещение, которое, по мнению многих дизайнеров, можно переоборудовать под гардероб.

Если в семье есть дети, то распределение помещений имеет смысл сделать следующим: одну комнату отвести под детскую, одну оставить для спальни, а большую отдать гостиной. Во многих 3-комнатных квартирах присутствует раздельный санузел, они максимально удалены от лестницы и лифта, площадь составляет от 56 до 80 кв. м.

Разнообразие планировок
Выделяют несколько типов планировок в соответствии с видами домов: «сталинки», «хрущевки», «брежневки» и современные варианты.

Сталинка
«Сталинки» строились в начале 50-х годов. Планировка в кирпичных домах этого типа демонстрировала едва ли не лучшее жилье в Союзе.

Высокие потолки, достигавшие трех метров, изолированные комнаты с удобным расположением, раздельный санузел – свидетельства продуманности жилого пространства.

В квартирах могли поселиться рядовые граждане и номенклатурные работники, причем планировка помещений для последних отличалась повышенным комфортом. Внутреннее убранство квартир госслужащих могло похвастаться просторным холлом и арочными проемами, в домах имелись помещения для прислуги.
Хрущевка
«Хрущевки» возводились с конца 50-х до середины 80-х годов (с учетом доработок и появления новых модификаций). Ранние версии домов имели не очень удачное расположение комнат, толщина панельных стен не обеспечивала качественной теплоизоляции, потолки были невысокими, совмещенным делался санузел. Кухня, как правило, была небольшой площади.

Примерно с 1970 года развернулось широкомасштабное строительство 9-этажек из кирпича или панелей. Потолки в новых квартирах располагались на уровне 2,64 м., а внутренние перегородки не несли на себе общую нагрузку. Именно поэтому в таких домах перепланировка 3-комнатной квартиры была обычным явлением.

Брежневка
«Брежневки» считались улучшенным вариантом «хрущевок». Квартиры были средних размеров, встречались раздельные санузлы. Под кухонным окном обустраивалась ниша для хранения продуктов, имелись антресоли. Кухня была больше – от 7 до 9 кв. м.

Современные варианты могут похвастаться улучшенной планировкой, наличием нескольких санузлов. Расположение комнат по схеме «самолет» или группировка так называемым «вагончиком» – часто встречающиеся планировки.

Элитные квартиры представляют собой самое комфортное жилое пространство, спроектированное таким образом, чтобы удовлетворить все потребности человека.

Расположение комнат определяется предпочтениями заказчика, количество санузлов приравнено к количеству комнат, есть отдельные гардеробные, просторные кухни-студии и т.д.

Может быть несколько видов планировки. Открытой обладают квартиры-студии. Их можно получить путем переделки, убрав внутренние перегородки и получив большее пространство. Затем его делят на соответствующие зоны, которым присущ собственный дизайн. Закрытая планировка подразумевает изолированность всех комнат, от коридора их будет отделять дверь.
Перепланировка 3 комнатной квартиры 60м2. Разновидности планировки 2-комнатных квартир и степень возможного преобразования
Многоквартирные дома на территории СНГ принято делить по времени их происхождения на разные времена типовой застройки:
- «Сталинки» малой этажности, было построено немного, преимущественно в крупных городах. Они отличаются высокими потолками, большой жилплощадью, небольшими балконом и красивым фасадом. Его нежелательно менять, если дома выходят на центральные улицы и в исторические кварталы. Столярка должна быть того же цвета, что и до замены, возможны ламинированные ПВХ окна под древесину. Основные преобразования касаются внутренней площади, включая перепланировку без сноса несущих стен.

Высокие потолки позволяют организовать второй этаж в детской комнате
- «Хрущевки» – пережиток массовой застройки 60-70 годов ХХ века, самые маленькие и неудобные панельные квартиры. Типичны низкие потолки, проходные комнаты, маленькая прихожая и кухня. Большинство – не более 4-5 этажей, позже строились 9-этажки. Часто прорабатывают дизайн маленькой трехкомнатной квартиры 60 кв.м в панельном доме, стараясь расширить жилплощадь.
- «Брежневки» менее известны на рынке, но они стали чуть просторнее, расширились кухни, появились раздельные санузлы, но ванная осталась маленькой. Самые распространенные – однокомнатные и 2-комнатные квартиры. В некоторых вариантах есть удобные лоджии, за счет которых нередко пытаются добавить площадь смежных комнат.
- «Чешки», литовские дома и другие дома так называемой новой планировки стали более комфортным предложением с широкой прихожей. Приятным сюрпризом стала увеличившаяся кухня, но их метраж разный в 1-, 2- и 3-комнатных вариантах планировки. Современный дизайн 2-х комнатной квартиры 60 кв. метров нередко оставляют без масштабной реорганизации.
- Среди «старого» фонда остается высокий спрос на городские дома серии П-44, П-44Т, П- 44-ТМ и П44-К. Они считаются наиболее комфортными, большой балкон и прихожая – дополнительные бонусы. Модернизированный вариант большой этажности имеют большую коммерческую стоимость на вторичке. Так называемые «распашонки» (с окнами в разные стороны) по 60-64 квадрата, но есть линейные компактные квартиры – в пределах 53 кв.м. с окнами на одну сторону. Хуже всего, если все окна выходят на юг или на север – предусмотрите локальную подсветку основных зон.
- Дома в проектах ХХ века строятся с учетом всех недостатков предыдущей массовой застройки, поэтому в них реже делают перепланировку или обширную реорганизацию. Возможен дизайн однокомнатной квартиры 60 кв.м, если это квартира-студия или квартира с условными перегородками.
