П 44 перепланировка трехкомнатной квартиры. Планировка трёшки в панельке П-44: 5 удачных схем (бесплатно)
- П 44 перепланировка трехкомнатной квартиры. Планировка трёшки в панельке П-44: 5 удачных схем (бесплатно)
- П 44 планировка двухкомнатная квартира с размерами. Дом серии П44Т. Разбираем планировки (фото). Почему панельный дом так популярен у покупателей?
- КОГДА И КЕМ СПРОЕКТИРОВАНА?
- ТЕХНИЧЕСКИЕ ХАРАКТЕРИСТИКИ
- РАЗБИРАЕМ ПЛАНИРОВКИ
- Однокомнатные квартиры в П44Т
- В зависимости от района Москвы такие квартиры по данным истории сделок в Сбербанке продавались в 2018-2019 году:
- от 5 900 000 до 7 500 000 рублей
- Двухкомнатные квартиры в П44Т
- В зависимости от района Москвы такие квартиры по данным истории сделок в Сбербанке продавались в 2018-2019 году:
- от 8 000 000 до 10 500 000 рублей
- Большая кухня с эркером играет роль кухни-гостиной
- В зависимости от района Москвы такие квартиры по данным истории сделок в Сбербанке продавались в 2018-2019 году:
- от 9 500 000 до 12 500 000 рублей
- Трехкомнатные квартиры в П44Т
- Главные недостаток - один санузел. Будь в такой квартире два санузла можно было бы назвать ее идеальной.
- Ремонт 3-х комнатной квартиры п-44. Какой выбрать стиль и дизайн интерьера трехкомнатной квартиры П44Т
- Дизайн 3-х комнатной квартиры п-44. Особенности дизайна трехкомнатной квартиры П-44Т
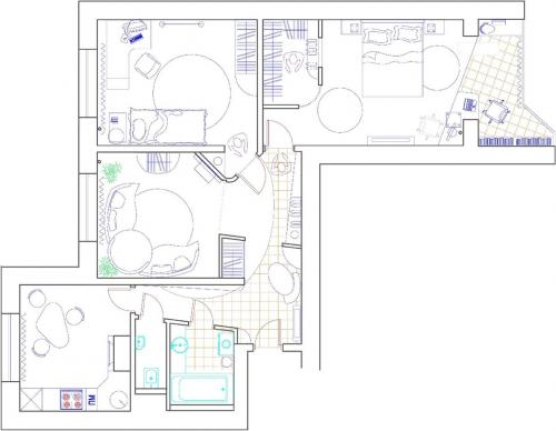
- П 44 планировка трехкомнатной квартиры п-44. Особенности планировки
- П-44 трешка перепланировка. Варианты перепланировок квартир серии П44Т
- Видео 3 х комнатная квартира серия П 44
П 44 перепланировка трехкомнатной квартиры. Планировка трёшки в панельке П-44: 5 удачных схем (бесплатно)
Общая площадь типовой квартиры в доме серии П-44 – одной из самых распространённых панелек – от 70 до 75 кв. м. При этом почти все стены несущие, и перепланировка невозможна.


Типовая планировка
У трехкомнатной квартиры в типовых панельных домах серии П-44 довольно большая площадь и удачная планировка. В отличие от предшественниц-хрущёвок, здесь десятиметровая кухня и комнаты больше 11 кв. м. Пожалуй, единственный недостаток в том, что существенную перепланировку не сделать – почти все стены в квартире несущие.
Вариант 1
Самую большую комнату отвели под спальню, потому что примерно треть её занимает гардеробная. На балконе обустроили рабочее место и встроили гладильную доску. Меньшую по площади спальню превратили в детскую для двоих детей – вся мебель здесь парная.
Стену между гостиной и коридором можно снести. Комната станет проходной, но более просторной. Воспользуемся шириной коридора, чтобы встроить шкаф для верхней одежды. А на кухне помимо углового гарнитура и стола предусмотрит узкую витрину для сервировочной посуды и колонны для встроенной техники при входе.

Вариант 2
В этом варианте расположение комнат сохранено, и даже гардеробная на том же месте. Но в детской всего одна детская кроватка и диван для отдыха мамы или няни. Зато в гостиной появился большой угловой диван и сразу два рабочих места на случай, если родители работают из дома. Ещё один угловой диванчик установили на кухне.

Вариант 3
Если в семье двое разнополых разновозрастных детей, то каждому из них неплохо бы иметь собственную комнату. Поэтому две дальние спальни отдали под детские. Они практически симметричны, только в одной из них по центру появилась общая гардеробная. Самую маленькую комнату зонировали и выделили уголок под спальню у окна. Ближе к проходу установили диван. И для этого, конечно, стоит снести единственную ненесущую стену.

Вариант 4
Почти все стены в квартире несущие, но изменить геометрию пространства всё же можно. Авторы этого проекта увеличили санузлы за счёт коридора, встроили шкаф для верхней одежды в холле и предусмотрели удобный вход в детскую, который при этом не съедает пространство гостиной. Балкон в спальне утеплили и присоединили, чтобы разместить там мини-кабинет.

Вариант 5
Для семьи с двумя взрослыми детьми или ситуации, когда под одной крышей живут три поколения, необходимо три полноценные спальни. Для этого можно сделать масштабную перепланировку, на которую мало кто решается – перенесли кухню в коридор и сделать её проходной. Тогда на месте бывшей кухни появится ещё одна дополнительная спальня, вход в которую перенесён из гостиной. Это позволяет существенно расширить санузел.

Если вы хотите видеть больше такого в своей ленте — ставьте лайк. Подписывайтесь на канал и узнавайте свежие тренды в дизайне интерьеров.
Автор: Павел Шелягин.
П 44 планировка двухкомнатная квартира с размерами. Дом серии П44Т. Разбираем планировки (фото). Почему панельный дом так популярен у покупателей?
Рабираем все типы планировок и цены!
Чаще всего панельные дома относятся потребителем к эконом-сегменту, но есть в России и очень популярные серии панельных домов. Некоторые уже сняты домостроительными комбинатами с производства, но до сих пор пользуются повышенным спросом: серия П44Т, КОПЭ, КОПЭ-Парус, П3М.
Сегодня речь пойдет о серии П44Т, про которую покупатели говорят так:
"Это такой с кирпичиками!"

действительно, фасадная панель стилизована под кирпич (фото из личного архива Vysotsky Estate)
КОГДА И КЕМ СПРОЕКТИРОВАНА?
Данная серия домов производится до сих пор, хотя все меньше заказывается компаниями Застройщиками. Производством занимается ДСК1.
Спроектирован дом в Московском научно-исследовательском и проектном институте типологии, экспериментального проектирования. Унаследовал основу квартирографии от серии П44, также популярной у потребителей .

Многие спальные районы Москвы застроены домами серии П44 (фото из личного архива Vysotsky Estate)
Серия П44Т была запущена уже в постсоветское время в 1997 г. И была очень популярна в период реновации Москвы "эпохи Лужкова"
ТЕХНИЧЕСКИЕ ХАРАКТЕРИСТИКИ

характеран эркерами и скошенными лоджями (фото из личного архива Vysotsky Estate)
Наружные стены - трехслойные железо-бетонные панели (бетон - полистирол - бетон) толщиной до 30 см повышенной теплоизоляции.
Межквартирные и межкомнатные несущие – железо-бетонные панели толщиной 16 и 18 см. Крупноразмерные перекрытия толщиной 14 см по ширине комнат.
Высота потолков: 2.70-2.75 м
Первые этажи серии - нежилые помещения. Часто сдаются под магазин.
Наиболее распространенные дома 14, 17 и 25 этажей.
РАЗБИРАЕМ ПЛАНИРОВКИ
И тут мы доходим до самого интересного. Именно из-за планировок эта серия дома так популярна.
Однокомнатные квартиры в П44Т
Общая площадь: 39,8 м2
Комната: 19 м2
Кухня: 6,9 м2
Санузел совмещенный: 3,6 м2
Прихожая: 7,2 м2

Однокомнатная квартира в П44Т (картинка отрисована в Vysotsky Estate)
Однокомнатные квартиры, как раз ничего примечательного из себя не представляют. Не самая большая площадь. Планировка стандартная. Разве, что заслуживает внимание площадь саунзла, которая позволяет разместить спокойно все необходимое.
В зависимости от района Москвы такие квартиры по данным истории сделок в Сбербанке продавались в 2018-2019 году:
от 5 900 000 до 7 500 000 рублей
Двухкомнатные квартиры в П44Т
Двухкомнатные квартиры в этой серии домов встречаются трех видов: так называемые "линейка", "распашонка"
"Линейка"
Линейка, потому что комнаты расположены по одной стороне дома, окна выходят на противоположную от подъезда сторону.
Общая площадь: 53.4 м2
Комната1: 18,9 м2
Комната2: 11,5 м2
Кухня: 9,7 м2
Санузел раздельный: 2,8 +1 м2
Прихожая: 2,6 м2
Такая квартира не самая популярная в этом доме. Но из-за большой кухни пользуется повышенным спросом.
В зависимости от района Москвы такие квартиры по данным истории сделок в Сбербанке продавались в 2018-2019 году:
от 8 000 000 до 10 500 000 рублей
Двухкомнатная "распашонка"
Большая кухня с эркером играет роль кухни-гостиной

Распашонк
Распашонка, потому что комнаты выходят на обе стороны дома
Общая площадь: 60 м2
Комната1: 18,9 м2
Комната2: 14,8 м2
Кухня: 12,9 м2
Санузел раздельный: 3,9 +1 м2
Прихожая: 9,5 м2
Самая популярная квартира в этом доме. Часто ее покупают взамен 3-комнатной квартиры.
В зависимости от района Москвы такие квартиры по данным истории сделок в Сбербанке продавались в 2018-2019 году:
от 9 500 000 до 12 500 000 рублей
Трехкомнатные квартиры в П44Т
мы собрали планировки на одной картинке
Все трехкомнатные квартиры в П44Т имеют формат "распашонки". Большой холл при входе. Главное отличие только в кухне.
Общая площадь: от 73,1 м2 до 81,2 м2
Комната1: от 18,9 м2 до 19,2 (с лоджией и есть вариант с эркером, что добавляет света)
Комната2: от 14 до 14,8 м2
Комната3: от 11,1 м2 (лоджией) до 20 м2 (с эркером)
Кухня: от 10 до 12,9 м2
Санузел раздельный: 3,9 +1 м2
Прихожая: 9,5 м2
Все варианты трехкомнатных квартир пользуются популярностью.
Главные недостаток - один санузел. Будь в такой квартире два санузла можно было бы назвать ее идеальной.
Ремонт 3-х комнатной квартиры п-44. Какой выбрать стиль и дизайн интерьера трехкомнатной квартиры П44Т
Стилистический выбор при ремонте практически ничем не ограничен, поскольку достаточно высокие потолки и площадью 93 кв.м. дают простор дизайнерской мысли.

Светлая и просторная гостиная в современном стиле

В отделке использованы современные натуральные материалы – пробковые панели, бамбуковые обои и паркетная доска
Органично воспринимается дизайн 3-комнатной квартиры П44-Т в разном стиле:
- урбанистический, скандинавский или японский минимализм;
- прованс, шале и другие виды кантри;
- восточный колорит или другой этнический акцент;
- хай-тек или лофт;
- контемпорари, фьюжн, другой современный микс.

Скандинавский интерьер практичен, прост в оформлении и идеален для комнат с окнами на север

Красивая гостиная в японском стиле

Лаконичность и простата минимализма – только самое необходимое и минимум декоративных “штучек”

Для хай-тека характерно всё самое современное – мебель, техника и отделочные материалы
Основная цветовая гамма зависит от личных предпочтений и естественного освещения комнат, выходящих на разные стороны. В северных широтах специалисты предлагают компенсировать недостаток солнечных лучей широким применением ярких акцентов на светлом или белом фоне.

Милая и уютная спальня в стиле прованс

Непритязательная атмосфера в спальне стиля кантри способствует расслаблению и отдыху

Лофт обычно выбирают ценители неординарных решений

Контемпорари предоставляет свободу творчества и в наше время часто пересекается с другими направлениями интерьера

Фьюжн никогда не бывает скучным, ведь в нем причудливо переплетаются элементы самых разных стилей, наиболее близких хозяевам квартиры
Предпочитаемая гамма в зависимости от стороны света:
| 1. | Север | Теплая гамма (желтые, бежевые, абрикосовые, розовые и бордовые тона, терракота). |
| 4. | Восток | Тона, усиливающие освещение, когда солнце идет к закату (апельсиновый, сиреневый, желтый, красный). |
Ремонт рекомендуется завершить грамотным подбором мебели, соответствующей стилистике дизайна. Для современной детской можно выбрать двухъярусную мебель, если дизайн готовят для двоих мальчиков.

В комнате для двоих детей всё должно быть умножено на два

Два рабочих места около окна и две кровати, размещенные изголовьем друг к другу

Места для учебы организованны на общей столешнице, установленной вместо подоконника

Цветовая палитра из бежевого и терракотового цветов отлично вписалась в интерьер этой комнаты для мальчиков-подростков
Не рекомендуется оставлять старые «шедевры» советской и постсоветской эпохи, даже если это любимая мягкая или корпусная мебель. Замените фасады на новые, если это встроенная мебель. А комфортный мягкий уголок с креслами для объединенной гостиной-столовой лучше осовременить перетяжкой. Экокожа и флок с тефлоном отталкивает жидкости загрязнения, если случайно опрокинуть чашку чая или уронить бутерброд с вареньем.
Дизайн 3-х комнатной квартиры п-44. Особенности дизайна трехкомнатной квартиры П-44Т
Трешка серии П-44Т – это лучшее по компоновке жилье для семьи. В ней есть три комнаты, причем две изолированы, она оснащена двумя балконами, один из которых лоджия, имеется просторная кухня.

Но жильцы говорят, что есть два главных недостатка квартир этой серии домов П-44Т, с ними согласны специалисты:
- Что жилье имеет большой, темный и поэтому мало для чего применимый коридор.
- Что в панельных домах стены и перегородки являются несущим, из-за чего нельзя сделать демонтаж и перенос стены для оптимизации пространства или осуществить демонтаж части стены, чтобы сделать дверной проем.
Поэтому чтобы получить разрешение на перестройку жилого пространства нужно приложить максимум терпения, чтобы осуществить согласование, однако можно получить отказ.
Помимо этого жильцы отмечают недостаток естественного света в комнатах, хотя они просторны и оснащены окнами. Поэтому при оформлении интерьера следует хорошо организовать освещение.

Обновление трешки можно осуществлять с учетом устранения вышеприведенных недостатков, а также строительных ограничений. Кроме этого реконструкция жилого пространства должна проходить с учетом количества членов семьи, учитывая их персональные мнения, а также предпочтения. Порядок оформления можно осуществить либо в одинаковом относительно всех комнат дизайнерском решении, либо в различном для каждого жилого помещения решении. Или даже отдельной функциональной зоны внутри помещения. При этом нужно соблюдать гармонию общего стиля.
П 44 планировка трехкомнатной квартиры п-44. Особенности планировки
Планировка трехкомнатной квартиры бывает:
- с закрытым выходом;
- открытым;
- частично-закрытым;
- смежным;
- смешанным.
Закрытая планировка предполагает изоляцию. Большие комнаты, каждая из которых имеет доступ к коридору.

Открытую планировку можно встретить в студии. Одним большим пространством происходит деление на части. У каждой зоны свой дизайн, освещение и функционал.
Частично закрытый вид планировки. Главная комната открытая, а другие имеют изоляцию. Разделено пространство широким холлом.
Смежный тип предполагает помещения с выходом только одной комнаты в коридор, а другие соединены дверями или аркой (проходом). Данный тип проектировки может включать в себя изолированное, так и смежное расположение помещений.
Исходя из просторной планировки трехкомнатной квартиры, оценивают характеристику при покупке или аренде. Перед выбором комфортного жилья для определенного количества людей, анализируется общая площадь, по параметрам и форме кухня, замеры коридора. Важно наличие больших окон и их расположение. Для некоторых жильцов важным моментом является размещение окон по обе стороны.
Учитывается размер балкона и количество комнат с этим помещением. Оценивается наличие проходных комнат, несущих стен, толщины панелей, высоты потолка. На данный момент строятся и предлагаются к заселению 3-х комнатные квартиры улучшенной планировки. Они имеют большее пространство, несколько застекленных балконов, большие и широкие коридоры, что удобно для семьи с маленькими детьми или животными.
П-44 трешка перепланировка. Варианты перепланировок квартир серии П44Т
Описание серии П44Т
П-44Т – панельная серия домов с наружной отделкой «под кирпич», разработанная проектным институтом МНИИТЭП. Первые дома появились в 1997 году. Сейчас строительство серии продолжается. Очень много домов серии П-44Т построено в Москве и Московской области.
Серия П-44Т является улучшенной версией типовой брежневки П-44 с более качественной теплоизоляцией, более высокими потолками в квартирах (2,70-2,75 м), с вентиляционным коробом, устроенным не на кухне, а в прихожей.
Дома серии П-44Т могут быть разной этажности – от 9-ти до 25-ти этажей. Но чаще других встречаются 14-ти и 17-ти этажные здания.
Первые этажи являются нежилыми. Там обычно располагаются различные торговые предприятия и офисные помещения.
На этажах по четыре квартиры. Различают торцевые, рядные и угловые секции. Подъезды снабжены пассажирским и грузопассажирским лифтами. В секциях по 20 и 25 этажей три лифта, два из которых грузопассажирских.
Наружные стены дома состоят из железобетонных трехслойных панелей толщиной 30 см. Внутренние несущие стены (межквартирные и межкомнатные) представляют собой ж/б панели толщиной 16 и 18 см. Толщина гипсокартонных перегородок составляет 8 см. Крупноразмерные ж/б плиты толщиной 14 см выступают в качестве межэтажных перекрытий.
Среди плюсов данной серии: изолированные комнаты, хорошая звукоизоляция, раздельные санузлы (совмещенные в однокомнатных квартирах), регулируемое отопительное оборудование, добавление в планировку квартир эркеров, пандусы для инвалидов и возможность оперативного возведения домов, благодаря чему дома серии П-44Т получили столь широкое распространение и возводятся до сих пор.
Недостатком серии П-44Т является множество ограничений при проведении перепланировок квартир. Причиной этого является тот факт, что внутренние стены квартир в основном несущие.
Кроме того, автор проекта дома, институт проектирования МНИИТЭП, запретил в домах, построенных с защитой от прогрессирующего обрушения после 2007 года, делать дверные проемы в несущих стенах и удалять подоконные блоки, что делает невозможным объединение лоджии с внутренними помещениями квартиры.
Но имеется и положительный момент, связанный с перепланировкой внутренних помещений здания. В отличие от квартир в серии П-3 , перегородка, которой гостиная отделена от территории коридора, относится к категории ненесущих (ее толщина всего 80 мм). Следовательно, ее можно демонтировать.


