Монтаж фундаментов стаканного типа. Характеристики и область применения стаканного фундамента
Монтаж фундаментов стаканного типа. Характеристики и область применения стаканного фундамента
Принципиальное отличие, которое имеет монолитный фундамент стаканного типа по сравнению с ленточными и другими основаниями, заключается в его конструкции, и по чертежам это сразу видно. Бетонный фундамент стаканного типа представляет собой прерывистое основание, принимающее на себя нагрузки на локальных точечных участках конструкции, и распределяющее эту точечную нагрузку по площадям с наибольшим давлением на грунт.
Монолитный стаканный фундамент
Промышленный монтаж фундаментов стаканного типа под колонны (столбы) используется для сооружения широкомасштабных промышленных, но низких зданий. Основания ступенчатых сборных конструкций располагаются в заранее рассчитанных местах, испытывающих наибольшие нагрузки, и устанавливаются друг на друга в виде сужающихся к верху ступеней, внутрь которых помещаются железобетонные колонны.
В индивидуальном строительстве такие разновидности фундаментов не используются – согласно требований гост, малоэтажные дома и хозяйственные постройки должны возводиться на ленточных или монолитных основаниях, а в случаях со слабыми грунтами – на свайных или столбчатых. Точечный стаканный столбовой возводится для следующих объектов:
- Промышленные сооружения;
- Объекты социального назначения;
- Специализированные помещения и строения на ТЭС и других электростанциях;
- Склады и ангары;
- Одноуровневые комплексы с небольшим весом – торговые или спортивные объекты.
Монтаж колонн для стаканного фундамента
Чаще всего столбовой фундамент – это стаканное ж/б основание, выполненное в строгом соответствии с требованиями гост и ТУ. Свойства и параметры строительных материалов такого фундамента, места его обустройства отражены в соответствующей документации, разработанной проектными институтами. Также для распределения свойств оснований стаканного типа используется серия схожих по характеристикам конструкций фундаментов. Технически и документально серия содержит необходимые нормативные требования к основанию.
Фундамент стаканного типа под колонну 300х300. Номенклатура и технические требования
Монолитные фундаментные плиты стаканного типа используют под установку сборных железобетонных колонн. Сечение стаканов может различаться, и от этого зависит масса конструкции. К примеру, фундамент стаканного типа под колонны 400 х 400 мм весит около пятисот килограмм, а фундамент стаканного типа под колонны 300 х 300 мм будет несколько легче, но для его установки все равно потребуется кран.

В любом случае, для производства фундаментных плит такого типа применяют бетонный раствор с показателем прочности B 15 и устойчивостью к воздействию низких температур F 50.
Кроме того, внешние поверхности плит обрабатываются органическими пластичными материалами, защищающими от воздействия влаги, так что уровень водонепроницаемости стаканных плит варьируется в пределах W2 – W8.
В соответствии с техническими условиями, определенными ГОСТом, изготовление фундаментов выполняется с соблюдением определенных требований:
- используется бетонный раствор, марка которого не менее В2;
- конструкции монтируются после полного набора прочности;
- водопоглощение не превышает пяти процентов, и данный показатель достигается после устройства надежного гидроизоляционного покрытия;
- все пояса фундаментной конструкции жестко армируются;
- толщина бетона вокруг арматурных прутьев должна быть не менее трех сантиметров;
- трещины в бетонном изделии не должны быть более 0.1 мм;
- стропальные петли удаляются болгаркой, методика ударного типа категорически запрещена;
- наличие обнаженных стальных прутков в фундаменте не допускается.
Фундамент стаканного типа под колонну 400х400. Фундаменты
В проектируемом здании под основные колоны каркаса применяются монолитные железобетонные фундаменты – стаканного типа, а под фахверковые – пенькового типа. Под колонны среднего ряда фундаменты приняты – трёхступенчатые, крайнего ряда – двухступенчатые, фахверковые – одноступенчатые.
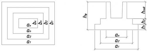
Колонны устанавливаются в стакан фундамента и жестко защемляются в нем. Дно стакана располагается на 50 мм ниже проектной отметки низа колонн. Зазоры между колонной и стаканом по верху 75 мм, по низу 50 мм. Толщина стенок подколонника принимается не менее 175 мм. Верх фундамента всегда располагают на отметке -0.150, что позволяет завершить работы нулевого цикла до начала монтажа колонн. Для защиты фундаментов от поверхностных вод по периметру здания выполняется отмостка шириной 1500 мм с уклоном от здания 3-5%. При расчёте фундаментов размеры принимаются кратными 300. После расчета размеров фундаментов, вычисляем объем бетона для каждого принятого фундамента.
При этом разбиваем фундамент на отдельные геометрические элементы и вычисляем Vбет.каждой части в отдельности, рассчитывая по формулам 5, 6, 7, 8:
Vбет.1ст.=a1· b1· h1(5)
Vбет.2ст.=a2· b2· h2(6)
Vбет.под.=(aп· bп· hп) – (aк· bк· (hзагл.– 0,15)) (7)
Vф= Vбет.1ст+ Vбет.2ст+ Vбет.под.(8)

Рисунок 1 – Подсчет объема бетона для фундамента
Рисунок 2 – Фундамент стаканного типа для колонн одноэтажных промышленных зданий
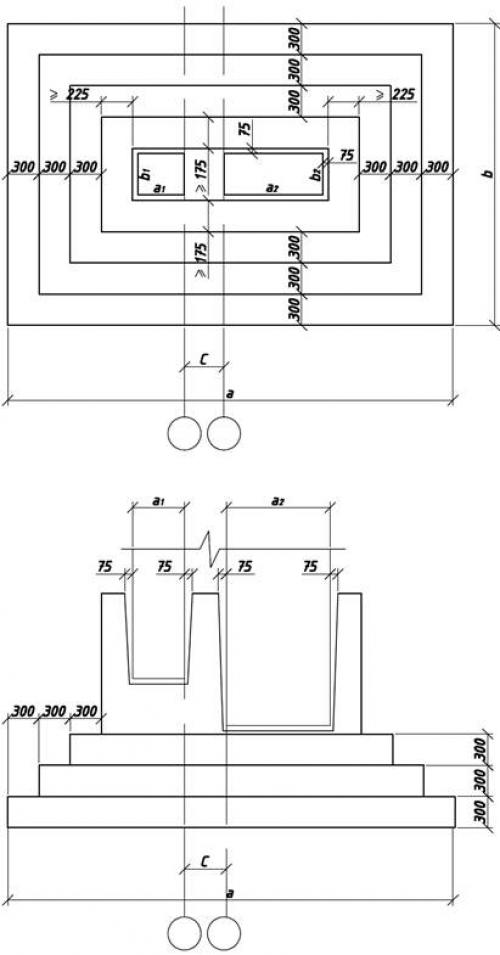
Расчёт фундамента под колонну 800х400:
а = 300+300+175+75+800+75+175+300+300 = 2500, принимаем 2700 мм.
в = 300+300+175+75+400+75+175+300+300 = 2100 мм.
Нз.к
Нф.= 900-150+50+300+300 = 1400, принимаем 1500 мм.
Vбет.1ст.= 2,7 ·2,1 · 0,3 = 1,70 м3
Vбет.2ст.= 2,1 · 1,5 · 0,3 = 0,95 м3
Vбет.под.= (1,5 · 0,9 · 0,9) − (0,8 · 0,4 · 0,75) = 0,97 м3
Vф.= 1,70+0,95+0,97 = 3,62 м3
Расчёт фундамента под колонну 1400х500:
а = 300+300+175+75+1400+75+175+300+300 = 3100, принимаем 3300 мм.
в = 300+300+175+75+500+75+175+300+300 = 2200, принимаем 2400 мм.
Нз.к.= 1300 мм.
Нф.= 1300-150+50+300+300 = 1800 мм.
Vбет.1ст.= 3,3 · 2,4 · 0,3 = 2,38 м3
Vбет.2ст.= 2,7 · 1,8 · 0,3 = 1,46 м3
Vбет.под.= (2,1 · 1,2 · 1,2) − (1,4 · 0,5 · 1,05) = 2,29 м3
Vф.= 2,38+1,46+2,29 = 6,13 м3
![]() |
Рисунок 3 – Фундамент стаканного типа для колонн одноэтажных промышленных зданий
Расчёт фундамента под колонны 1400х500 и 800х400:
а = 300+300+300+225+75+1400+200+800+75+225+300+300+300 = 4800 мм.
в = 300+300+300+175+75+500+75+175+300+300+300 = 2800, принимаем 3000 мм.
Нз.к.= 1300 и 900 мм.
Нф.= 1300-150+50+300+300+300 = 2100, принимаем 2400 мм.
Vбет.1ст.= 4,8 · 3,0 · 0,3 = 4,32 м3
Vбет.2ст.= 4,2 · 2,4 · 0,3 = 3,02 м3
Vбет.3ст.= 3,6 · 1,8 · 0,3 = 1,94 м3
Vбет.под.= (3,0 · 1,2 · 1,5) − (1,4 · 0,5 · 0,8 · 0,4 · 1,05) = 5,16 м3
Vф.= 4,32+3,02+1,94+5,16 = 14,4 м3
Расчёт фундамент под фахверковые колонны 400х400:
а = 300+175+75+400+75+175+300 = 1500 мм.
в = 300+175+75+400+75+175+300 = 1500 мм.
Нф.= 1200+300 = 1500 мм.
