Какой размер обеденного стола вам нужен
- Какой размер обеденного стола вам нужен
- Связанные вопросы и ответы
- Как определить оптимальный размер обеденного стола для моей кухни
- Сколько человек должен разместиться за моим обеденным столом
- Какой формы обеденный стол лучше всего подойдет для моего помещения
- Как рассчитать необходимое пространство вокруг стола
- Какой материал лучше всего подходит для обеденного стола моего размера
- Как выбрать стиль обеденного стола в зависимости от размера
- Как измерить комнату для выбора правильного размера стола
Какой размер обеденного стола вам нужен
Обеденный стол – это центральный элемент любой кухни или столовой, который не только служит местом для приема пищи, но и становится локомотивом для общения и отдыха. Выбор правильного размера обеденного стола имеет огромное значение, так как он напрямую влияет на комфорт и функциональность пространства. В этой статье мы рассмотрим основные факторы, которые нужно учитывать при выборе размера обеденного стола, а также предоставим практические рекомендации и примеры.
Основные Факторы, Влияющие на Выбор Размера Стола
Перед тем как решить, какой размер обеденного стола вам нужен, необходимо учитывать несколько ключевых факторов:
1. Пространство Комнаты
Главным фактором является площадь комнаты, где будет находиться стол. Если комната небольшая, слишком большой стол может сделать пространство тесным и неудобным. С другой стороны, слишком маленький стол в просторной комнате может выглядеть потерянным.
2. Количество Персон
Определите, сколько человек будут регулярно собираться за столом. Если вы часто принимаете гостей, стоит выбирать стол побольше. Для небольших семей или пары компактный стол будет более практичным.
3. Стиль Интерьера
Размер стола должен гармонировать с общим стилем интерьера. Например, в классическом интерьере лучше смотрятся большие, массивные столы, тогда как в современном минималистическом стиле предпочтение отдают компактным и лаконичным моделям.
Расчет Оптимального Размера Стола
Чтобы определить оптимальный размер обеденного стола, можно воспользоваться следующими рекомендациями:
| Количество Персон | Ширина Стола (см) | Длина Стола (см) |
|---|---|---|
| 2-4 человека | 80-100 | 120-140 |
| 4-6 человек | 90-110 | 140-160 |
| 6-8 человек | 100-120 | 160-180 |
Эти размеры являются ориентировочными и могут корректироваться в зависимости от конкретных условий.
Практические Рекомендации
При выборе размера обеденного стола важно учитывать не только его длину и ширину, но и дополнительные факторы:
- Оставьте достаточно места вокруг стола для свободного перемещения. Оптимальное расстояние – 60-70 см между столом и стенами или другими предметами мебели.
- Если стол будет использоваться не только для приема пищи, но и для работы или хобби, выбирайте модель с большей рабочей поверхностью.
- Учитывайте рост членов семьи. Высота стола должна быть комфортной для всех.
Материал и Функциональность
Размер стола также зависит от материала и функциональности:
- Деревянные столы – прочные и долговечные, но могут быть тяжелыми и требовать большего пространства.
- Стеклянные столы – легкие и визуально легкие, идеальны для небольших помещений.
- Складные столы – удобны для небольших квартир, так как можно убрать их после использования.
- Расширяемые столы – универсальны и подходят для больших семей или частых гостей.
Советы по Выбору Стола
Чтобы сделать правильный выбор, следуйте этим советам:
- Измерьте комнату и определите максимально допустимые размеры стола.
- Подумайте о вашем образе жизни и том, как часто вы будете использовать стол.
- Посоветуйтесь с членами семьи, чтобы выбрать стол, который понравится всем.
- Не забудьте про эстетическую составляющую – стол должен гармонировать с интерьером.
Теперь, зная все эти нюансы, вы сможете сделать правильный выбор и подобрать обеденный стол, который будет идеально подходить для ваших нужд и украшать вашу кухню или столовую.
Связанные вопросы и ответы:
Вопрос 1: Какой минимальный размер обеденного стола подходит для небольшой семьи из двух человек
Обеденный стол для небольшой семьи из двух человек может быть компактным, но при этом удобным. Минимальный размер стола может составлять 70-80 см в ширину и 60-70 см в глубину. Такой стол легко поместится даже в небольшую кухню или столовую, обеспечивая комфортное сидение для двоих. Однако, если вы планируете принимать гостей, стоит рассмотреть стол немного большего размера, например, 80-90 см в ширину и 70-80 см в глубину. Это позволит разместить дополнительные тарелки и не создавать тесноты.
Вопрос 2: Как выбрать размер обеденного стола для квартиры-студии, где пространство ограничено
Для квартиры-студии, где пространство ограничено, важно выбрать обеденный стол, который будет функциональным и компактным. Оптимальным вариантом может быть стол с размерами 90-100 см в длину и 70-80 см в ширину. Такой стол достаточно вместительный для повседневного использования, но при этом не займет много места. Также стоит рассмотреть возможность использования выдвижного или трансформирующегося стола, который можно убрать, если нужно освободить пространство. Дополнительно, можно выбрать стол с круглым или овальным формой, что сделает пространство более гармоничным и удобным для перемещения.
Вопрос 3: Какой размер обеденного стола лучше всего подходит для больших компаний и праздничных мероприятий
Для больших компаний и праздничных мероприятий важно выбрать обеденный стол, который сможет вместить всех гостей. Оптимальный размер стола может составлять 200-250 см в длину и 90-100 см в ширину. Такой стол обеспечит комфортное сидение для 8-10 человек, а также предоставит достаточно места для сервиса и украшений. Если вы часто принимаете гостей, можно рассмотреть стол с возможностью увеличения длины, например, с помощью вставки или выдвижного механизма. Это позволит легко увеличить стол в случае необходимости.
Вопрос 4: Какой размер стола подходит для кухни с островом или барной стойкой
Для кухни с островом или барной стойкой можно выбрать обеденный стол, который будет дополнять общий интерьер. Оптимальный размер стола может составлять 120-150 см в длину и 70-80 см в ширину. Такой стол будет достаточно вместительным для повседневного использования, а также не займет много места. Если вы хотите, чтобы стол был еще более компактным, можно рассмотреть вариант с круглым или овальным столом диаметром 80-100 см. Это не только сэкономит пространство, но и добавит эстетики вашей кухне.
Вопрос 5: Какой размер обеденного стола лучше всего подходит для семьи с детьми
Для семьи с детьми важно выбрать обеденный стол, который будет безопасным и удобным для всех членов семьи. Оптимальный размер стола может составлять 150-180 см в длину и 80-90 см в ширину. Такой стол обеспечит комфортное сидение для 4-6 человек, а также предоставит достаточно места для детских стульев или высоких стульев. Если у вас маленькие дети, стоит рассмотреть стол с округлыми краями и устойчивой конструкцией, чтобы избежать травм. Также можно выбрать стол с регулируемой высотой, чтобы он подрастал вместе с детьми.
Вопрос 6: Какой размер обеденного стола подходит для ресторана или кафе
Для ресторана или кафе важно выбрать обеденный стол, который будет комфортным для клиентов и удобным для обслуживания. Оптимальный размер стола может составлять 70-80 см в ширину и 60-70 см в глубину для небольших столиков на двоих. Для больших компаний можно использовать столы размером 150-200 см в длину и 80-90 см в ширину. Также стоит учитывать, что между столами должно быть достаточно места для свободного перемещения официантов и клиентов. Оптимальное расстояние между столами составляет 1-1,2 метра.
Вопрос 7: Какой размер обеденного стола подходит для дачи или загородного дома
Для дачи или загородного дома можно выбрать обеденный стол, который будет простым, надежным и функциональным. Оптимальный размер стола может составлять 180-200 см в длину и 90-100 см в ширину. Такой стол обеспечит комфортное сидение для 6-8 человек, а также предоставит достаточно места для сервиса и украшений. Если вы любите принимать гостей на природе, можно рассмотреть стол с устойчивой конструкцией и водостойкой поверхностью, чтобы он выдерживал воздействие природных условий. Также можно добавить к столу удобные скамейки или стулья, которые легко можно убрать, если нужно освободить пространство.
Как определить оптимальный размер обеденного стола для моей кухни
Площадь кухни определяет размеры, а иногда и форму стола. Минимальное расстояние между столом и рабочей поверхностью — 60 см. Оптимальное — такое, чтобы могли разминуться два человека, то есть примерно 1 м. Поэтому перед тем, как выбрать стол на кухню, нужно на этой самой кухне тщательно измерить свободное пространство. Затем продумать, как будет стоять стол, какая форма оптимально впишется в помещение. Лучше даже начертить подробный план.
В кухни площадью порядка 5-6 кв. м помещается традиционный узкий прямоугольник на четырех ножках, поставленный в угол. За ним с комфортом могут принимать пищу максимум три человека, если сдвинуть к центру комнаты — без комфорта 6 человек. В крохотных кухоньках площадью 4 кв. м (бывают и такие!) можно разместить только складывающийся стол-книжку или откидной стол.
В традиционных девятиэтажках и некоторых сталинках кухни немного просторнее, но поместить в них можно только прямоугольный или квадратный стол чуть больших размеров. У дизайнеров всегда можно увидеть замечательные проекты с круглыми стеклянными столиками и креслами в небольшой кухне. Но в реальной жизни в квартире обычно живут семьи, а не молодые люди, питающиеся в ресторанах, а маленькая круглая столешница неудобна для приема пищи и затрудняет подход к рабочим столам и печке.
Столы круглой или прямоугольной формы можно удобно разместить только в помещении площадью не менее 8 кв. м. Столешницы сложной фантазийной формы уместны только в просторных кухнях элитного жилья или частных домов.

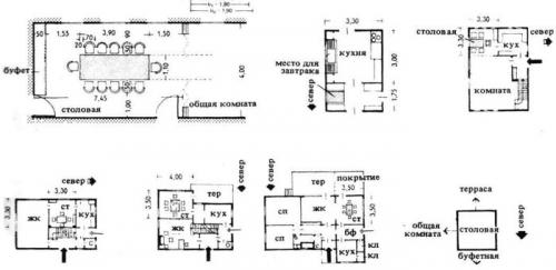
Сколько человек должен разместиться за моим обеденным столом
Проектирование помещений столовых (DIN 18011). Расположение. Необходимая площадь. Рассчёт местимости столовых. Минимальные размеры столов со стульями.
Расположение. Помещение для завтрака следует ориентировать на восток (рис. 3), для обеда и ужина — на запад (рис. 12, 13, 15, 16). Непосредственный вход из коридора не обязателен; зато необходима прямая связь с кухней или буфетной (рис. 18). Раздаточное окно из кухни целесообразно устраивать только при наличии домашней работницы.
Необходимая площадь. Раньше столовая была самым большим» но в основном пустовавшим помещением в доме, теперь столовую делают минимальных размеров. В настоящее время это зачастую просто место для обеденного стола в углу (рис. 5) или ниша на кухне, в прихожей или в общей комнате (рис. 4—5). Даже в больших домах столовые имеют небольшую площадь (рис. 7, 9), объединяемую в торжественных случаях широким дверным проемом с общей комнатой (рис. 10). Вход в столовую лучше всего устраивать с угла.
Обеденный стол на открытом воздухе (на веранде, террасе) располагают в защищенной от ветра солнечной стороне перед столовой или общей комнатой (при господствующих юго-западных ветрах с восточной и юго-восточной стороны). В связи с пологим углом падения солнечных лучей с востока покрытие над верандой может быть достаточно широким без ущерба для инсоляции помещений. Минимальная ширина открытой площадки со скамейкой вдоль стены—3 м; вынос покрытия достаточен в 2 м.
Вместимость столовых рассчитывается на 6—24 чел. Ширина стола 55—110 см. Длина стола на одно место 55—70 см. При использовании для посадки торцов стола к его длине добавляют 10—20 см.
Диаметр круглого стола равен размеру одного места, умноженному на число мест и деленному на 3,14.
![]() |
1. Минимальное расстояние от стола до стены зависит от вида обслуживания (с официантом или без него). 2. С торцовой стороны стола, где обычно стоит буфет, необходимо предусмотреть возможность прохода с большим подносом. 3. Перед буфетом должно быть достаточно места для удобства выдвигания ящиков. 4. Меньше всего места занимает обеденный стол в вагоне-ресторане (а): немного больше места— обеденный стол в нише (б). 5. Удобно и экономично размещается стол с угловой скамейкой-диваном: при необходимости рядом могут располагаться буфеты. 6. При обеденном столе более чем на 5 чел. следует предусмотреть свободный проход к дальним местам между стульями и стеной. 7. Минимальные размеры столовой на 6 чел. со столом в середине при отсутствии буфета (удобен вход в углу столовой). |
![]() |
8. Минимальная площадь, занятая обеденным столом со стульями на 6, 7 и 8 чел. 9. Минимальная площадь, занятая обеденным столом со стульями на 4, 5 чел. 10. Минимальные размеры столовой на 6 чел. с круглым столом и встроенными угловыми буфетами. |
![]() |
11. Большая столовая на 12 чел. с буфетом и проходом для обслуживания. Удобная расстановка стульев. Возможно расширение столовой за счет смежных помещений (используются раздвижные перегородки). 12. В Америке часто обеденный стол, буфет и шкаф для посуды располагают в помещении перед кухней, М 1 : 200 13. Обеденная ниша (с занавесом или без него) в большой общей комнате со входом из кухни являются переходной ступенью к отдельной столовой (архит. Бирн), М 1 : 400 14. Столовая между кухней и общей комнатой. Обеденный стол размещён в очень спокойном месте (архит. Швандерер), М 1 : 400 15. Столовая между террасой и общей комнатой; выход на террасу через складчатую дверь, М 1 : 400 16. Столовая и жилая комната выходят на общую террасу. Хорошее освещение обеих комнат, М 1 : 400 17. Схема взаимосвязи столовой с другими помещениями. |
Минимальные размеры столов со стульями (к рис. 9, 10):
| Минимальные размеры столов для завтрака и обеда | ||||||
| Стол и стулья на | Ширина, см | Длина, см | Площадь, м2 | |||
| b1 | b2 | t1 | t2 | F1 | F2 | |
| 4 чел. | 130 | — | 180 | 200 | 2,34 | 2,6 |
| 5 чел. | 180 | 190 | 180 | 200 | 3,24 | 3,8 |
| 6 чел. | 195 | — | 180 | 200 | 3,51 | 3,9 |
| 7 чел. | 245 | 255 | 180 | 200 | 4,41 | 5,1 |
| 8 чел. | 260 | — | 180 | 200 | 4,68 | 5,2 |
b1, t1, F 1 – без прохода для отодвигания стульев.
b2, t2, F 2 – с проходом для отодвигания стульев.
Какой формы обеденный стол лучше всего подойдет для моего помещения
При выборе обеденного стола необходимо учитывать множество факторов, которые напрямую влияют на его площадь. Прежде всего, это размер помещения – минимальное расстояние от стола до стены должно составлять 80-100 см для комфортного передвижения. Форма столешницы также играет ключевую роль: прямоугольные модели занимают больше линейного пространства, но позволяют эффективно использовать углы, в то время как круглые и овальные варианты создают более камерную атмосферу.
Количество членов семьи и частота приема гостей определяют необходимое количество посадочных мест. Специалисты рекомендуют закладывать дополнительные 30-40% площади сверх расчетной нормы для комфортного размещения. Материал столешницы и каркаса влияют не только на эстетику, но и на практическое использование: массивные деревянные столы требуют большего пространства, чем легкие стеклянные конструкции.
Стандартные размеры и их особенности
Стандартные размеры обеденных столов разработаны с учетом эргономических норм и многолетнего опыта мебельщиков. Для классического прямоугольного стола оптимальной считается длина 160-180 см при ширине 80-90 см – такого размера достаточно для комфортного размещения 6 человек. Каждому сидящему требуется минимум 60 см ширины столешницы для удобного расположения посуды и свободы движений.
Круглые столы диаметром 110-120 см идеально подходят для компактных кухонь, так как они не имеют острых углов и позволяют экономить пространство. При этом важно помнить, что площадь обеденного стола должна соответствовать не только количеству пользователей, но и особенностям помещения: высоте потолков, освещенности и конфигурации комнаты. Специалисты советуют избегать слишком больших столов в маленьких помещениях, так как это создает эффект захламленности и дискомфорта.
В современных реальностях популярность набирают трансформируемые модели, которые позволяют гибко регулировать площадь обеденного стола в зависимости от ситуации. Например, столы-книжки или столы с раздвижным механизмом могут увеличивать свою поверхность в полтора-два раза, что особенно актуально для небольших квартир.
Как рассчитать необходимое пространство вокруг стола
Условно обеденные столы можно разделить по внешнему виду и способу расположения на кухне. Отдельно стоящие или интегрированные в гарнитур, массивные или из нестандартных материалов. Рассказываем подробнее про каждый вид, чтобы вам было проще определиться.
Классические
00
Прямоугольные, квадратные, овальные и круглые, иногда в форме гексагона или пентагона. Если в вашей квартире нестандартная планировка и строительные сочленения образуют эркер, тупой или острый угол, тогда при планировке кухни подумайте о столе, по форме подогнанном именно под вашу кухню. Чаще всего в архитектурных «нестандартах» устраивают зоны хранения, но посоветуйтесь с дизайнерами, может, они предложат более интересные и функциональные варианты. Или посмотрите нашидля вдохновения.
Прямые и квадратные модели удобно придвигать к стене и прятать под ними стулья и табуреты. Круглые и овальные варианты более безопасны для детей, стильно выглядят и создают уютную атмосферу.
Столы-трансформеры
Присмотритесь к этим вариантам, если у вас маленькая кухня или нестандартные требования. Может, вам нужен компактный стол, который при необходимости может раздвигаться в очень длинный, человек на 10?
Самые популярные модели трансформеров — раздвижные. Они могут быть квадратными или круглыми, с дополнительными секциями, «книжками» или откидными, с креплением к стене. Последние позволяют сэкономить место на кухне, а в основании крепления можно хранить сервировочную утварь вроде салфеток, мисок и вазочек со свечами.
Встречаются столы раскладные — внутри которых прячется еще один стол. На заказ можно сделать стол-трансформер со сложным поворотным, жалюзийным или автоматическим механизмом, который в пару кликов превращается в низкий журнальный столик, уютное местечко для чайной церемонии или даже комод.
Стеклянные
00
Модный вариант стола, который подходит для семей без детей и домашних животных. Стеклянные столы изготавливают из закаленных полотен, внутри которых есть специальная пленка. Если стол вдруг разобьется (а для этого нужно сильно постараться), то не рассыпется, а просто треснет. Правда, отбить угол чугунной сковородой для блинов или аутентичным казаном для плова вполне реально. Только не покупайте устаревшие модели, как, зря потратите деньги.
Стеклянные столы визуально выглядят легче, занимают как будто меньше места на кухне и подходят даже к самой экстремальной цветовой гамме. Они практически вечны, не реагируют на повышенную влажность и не меняют цвет из-за жирного налета.
Минусы тоже есть. Стеклянные столы требуют чуть больше ухода из-за мыльных разводов и обязательных подставок под грубую посуду и тарелки. А еще не всем нравится звон фарфоровой или хрустальной посуды о поверхность стола. Наконец, размещать стеклянный стол в интерьере нужно с оглядкой на окно и расположение источников света, ведь поверхность может бликовать и отражать свет от люстры или диодов.
Высокие
00
Чаще всего высокие столы делаются в виде барных стоек. Стилистически они привязаны к общему гарнитуру и классно разграничивают пространство. Кроме того, барные стойки идеальны на кухне, где не планируют устраивать длительные трапезы.
Вам нужно лишь прикинуть, всем ли домочадцам будет удобно сидеть за стойкой, и закупить высокие стулья.
Столы-подоконники
00
Такое решение отлично подходит для маленькой кухни, где просто нет места для полноценного стола. Учитывайте, что вдоль окна комфортно будет сидеть вдвоем, максимум втроем. Шумного застолья не получится, зато такую столешницу можно всегда использовать как рабочую зону при готовке или как офисный стол для скайп-собраний.
Единственное, вам, скорее всего, придется переносить батарею. Стол-подоконник сам по себе не функционален. Исключение — стол-подоконник в хрущевке: в зимнем «холодильнике» под подоконником удобно хранить напитки и закуски для тет-а-тет вечеринки.
Виды подстолья
Важно определиться, что будет под вашим столом: четыре отдельные ножки, одна центральная или сложная композиция из перекрещенных палок? От этого выбора многое зависит — сможете ли вы, например, ловко задвинуть под стол все стулья или будете постоянно сбивать пальцы о витую ножку круглого стола из резного красного дерева.
Какой материал лучше всего подходит для обеденного стола моего размера
Выбор стола в зависимости от количества человек требует учета как размеров помещения, так и особенностей рассадки. Для двоих хорошо подойдут квадратные столы размером 70x70 см или небольшие прямоугольные варианты 80x100 см. Круглый стол диаметром от 70 см также станет отличным решением, особенно для компактных кухонь. Рассадка напротив друг друга создает уютную и интимную атмосферу, подходящую для небольших семей или пар.
Если стол рассчитан на четверых, оптимальным будет прямоугольный стол длиной 120-140 см и шириной 75-80 см либо круглый с диаметром от 90 до 110 см. Рассадка за прямоугольным столом предполагает размещение по два человека с каждой стороны, тогда как круглая форма позволяет равномерное распределение вокруг столешницы, обеспечивая одинаковое расстояние между всеми сидящими.
Для шести человек предпочтительны прямоугольные столы длиной 150-180 см и шириной 90 см, а также овальные или круглые столы с диаметром от 120 см. Рассадка за прямоугольным столом распределяется по три человека с каждой длинной стороны, а за круглыми и овальными моделями гости размещаются равномерно, что способствует активному общению.

Когда стол предназначен для восьми человек и более, размеры должны увеличиваться. Прямоугольные столы длиной от 200 см и шириной 100 см, а также круглые модели диаметром от 140 см обеспечат комфортное размещение. Овальная или прямоугольная форма в таких случаях наиболее удобна, так как позволяет разместить больше людей.
Для больших компаний стоит обратить внимание на раздвижные столы, которые позволяют увеличивать вместимость при необходимости. Угловые решения также помогут сэкономить пространство, оставаясь при этом функциональными. Рассадка за квадратными столами идеальна для небольших групп, обеспечивая равное количество мест с каждой стороны.
Как выбрать стиль обеденного стола в зависимости от размера
Когда пространство на столе становится недостаточным для размещения всех необходимых предметов, возникает необходимость увеличить столешницу стола. Но как это сделать без особых усилий? Мы подготовили несколько идей, которые помогут вам расширить площадь рабочей поверхности без особых сложностей и больших затрат.
- Добавьте вставку из дерева или стекла: Установка дополнительной вставки из дерева или стекла - простой способ увеличить размер столешницы. Это можно сделать самостоятельно или обратиться к мастерам.
- Используйте расширяемые столы: Расширяемые столы с выдвижными секциями или раскладными крышками могут быть идеальным вариантом для увеличения столешницы.
- Разместите дополнительный стол рядом: Если у вас есть свободное пространство рядом со столом, можно разместить дополнительный стол или письменный столик.
- Используйте магнитную доску или доску-органайзер: Установка магнитной доски или доски-органайзера на стену над столом позволит расширить рабочее пространство и разместить на ней необходимые предметы.
- Повесьте полки или ящики: Установка полок или ящиков над столом позволит вам разместить на них нужные предметы, увеличивая при этом площадь рабочей поверхности.
Оптимальными способами увеличения столешницы стола могут быть не только установка дополнительных элементов, но и использование пространства вокруг стола. Постарайтесь задействовать все возможные ресурсы, чтобы обеспечить себе комфортное рабочее место.
Как измерить комнату для выбора правильного размера стола
Круглый стол в интерьере выглядит изящно и элегантно, добавляет пространству легкости и уюта, ассоциируется с теплыми домашними вечерами и семейным очагом. Но для него нужно соответствующее окружение.
В этой статье расскажем, как вписать стол без углов в пространство разных комнат, а также покажем фото стильных примеров из российских и зарубежных интерьеров.
Плюсы и минусы
На фото круглые столы выглядят очень стильно, но у такого типа мебели есть свои преимущества и недостатки.
Плюсы
- Главный плюс круглого стола на кухне, да и вообще в любой комнате, — эстетика. Плавные линии привычны и приятны глазу, пространство сразу кажется уютнее, элегантнее, визуально легче. А прозрачная столешница и тонкие изящные ножки усиливают этот эффект.
- Круг — универсальная форма. Ее можно вписать в любой стиль: от классики до минимализма и даже лофта . Очень хорошо округлые столики смотрятся в скандинавских, современных и неоклассических интерьерах.
- В отличие от прямоугольной столовой зоны, где всегда есть «глава стола» и некая иерархичность рассадки, круглая форма создает ощущение семейности, дружеских встреч, неформального общения.
- Отсутствие острых углов важно не только в плане эстетики, но и с точки зрения безопасности: оно минимизирует риск случайного ушиба. Это особенно актуально, если дома есть дети.
- Такой стол идеально впишется в эркер, апсиду и другие сложные полукруглые части помещений. Квадратные или прямоугольные обеденные группы обычно смотрятся в них инородно и не встают так, как нужно.
Минусы
- Прямоугольную форму всегда проще вписать в пространство. Круг же оставит часть полезной площади незадействованной, а это не всегда рационально: например, в малогабаритках, где на счету каждый квадратный сантиметр.
- Модели на одной опоре могут быть не очень устойчивыми — есть риск случайно опрокинуть тарелки или всю конструкцию.
- Четыре ножки сокращают количество посадочных мест. Хотя сейчас производители работают с этой проблемой и выпускают эргономичные изделия с такой формой опор, чтобы они не мешали сидящим.
- Если столешница большая, не всегда удобно дотягиваться до блюд в центре.
Модель
Чтобы столовая группа смотрелась органично, важно подобрать подходящую по функционалу и дизайну модель.
По функционалу выделяют стационарные и трансформируемые конструкции.
Первые состоят из цельной столешницы и рассчитаны на фиксированное количество человек. Такие модели выглядят изящнее, но лишены мобильности.
Трансформеры же смотрятся чуть более массивно за счет спрятанной внутри выдвижной части, но зато позволяют при необходимости увеличить площадь стола. Так, в обычное время это может быть обеденная зона для двоих, а когда приходят гости, здесь получится разместить четырех, а иногда и сразу шесть человек.
При выборе модели опирайтесь на количество жильцов и образ жизни.
Например, если это студия для одного человека, который редко устраивает посидели с друзьями дома, будет достаточно и легкого столика. А вот молодой семье наверняка понадобится трансформер.
Второй важный момент — количество ножек. Есть три варианта:
- Одна центральная опора — этот вариант удобен тем, что большая часть пространства внизу свободна. Благодаря этому за стол можно посадить больше человек.
- Три ножки — достаточно удобная и устойчивая конструкция.
- Четыре ножки — это надежно, но такое количество ножек может мешать с комфортом разместиться вокруг стола.
Материал
Обеденный стол должен быть не только прочным и устойчивым, но и неприхотливым в уходе, выдерживать контакт с горячей посудой и регулярную уборку моющими средствами.


