Дизайн / интерьер / стиль

Незаурядные дизайнерские решения!

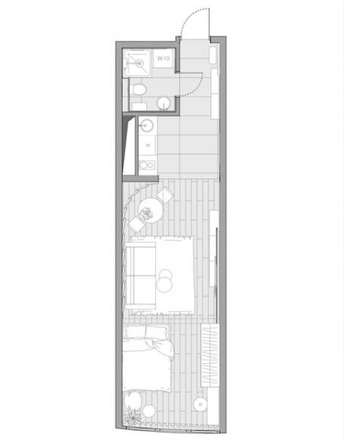
Квартира - студия, общей площадью 34 кв.

08.08.2023 в 08:45

м.
Интерьер, который стал отражением легкого и веселого характера его хозяев
Квартира - студия, общей площадью 34 кв..

Квартира - студия, общей площадью 34 кв. 01
Квартира - студия, общей площадью 34 кв. 02
Квартира - студия, общей площадью 34 кв. 03
Квартира - студия, общей площадью 34 кв. 04
Квартира - студия, общей площадью 34 кв. 05
Квартира - студия, общей площадью 34 кв. 06
Квартира - студия, общей площадью 34 кв. 07
Квартира - студия, общей площадью 34 кв. 08