Дизайн / интерьер / стиль

Незаурядные дизайнерские решения!

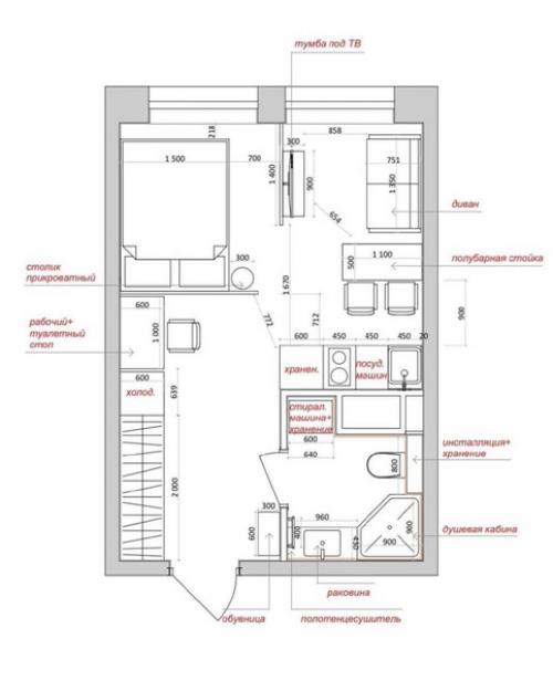
Квартира - студия, общей площадью - 25 кв.

01.09.2023 в 08:44

м.
Отлично сделанный проект
Квартира - студия, общей площадью - 25 кв..

Квартира - студия, общей площадью - 25 кв. 01
Квартира - студия, общей площадью - 25 кв. 02
Квартира - студия, общей площадью - 25 кв. 03
Квартира - студия, общей площадью - 25 кв. 04
Квартира - студия, общей площадью - 25 кв. 05
Квартира - студия, общей площадью - 25 кв. 06
Квартира - студия, общей площадью - 25 кв. 07
Квартира - студия, общей площадью - 25 кв. 08