Дизайн / интерьер / стиль

Незаурядные дизайнерские решения!

Дизайн / интерьер / стиль - Smashdesign.

15.01.2022 в 09:47

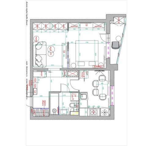
Уютная однушка 40 кв. м.
Все продумано и функционально, - говорю как человек, живущий в квартире с такой планировкой.
Единственное, чего мне не хватило здесь - рабочего места.
Хотя бы стола для ноутбука.
Дизайн / интерьер / стиль - Smashdesign.
Но, наверное, можно придумать, куда его поставить.

Дизайн / интерьер / стиль - Smashdesign. 01
Дизайн / интерьер / стиль - Smashdesign. 01
Дизайн / интерьер / стиль - Smashdesign. 03
Дизайн / интерьер / стиль - Smashdesign. 04
Дизайн / интерьер / стиль - Smashdesign. 05
Дизайн / интерьер / стиль - Smashdesign. 06
Дизайн / интерьер / стиль - Smashdesign. 07
Дизайн / интерьер / стиль - Smashdesign. 08
Дизайн / интерьер / стиль - Smashdesign. 09