Дизайн / интерьер / стиль

Незаурядные дизайнерские решения!

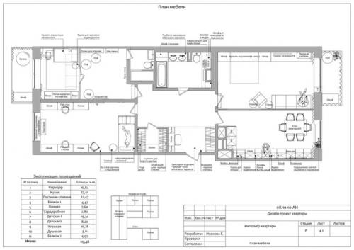
Дизайн большой квартиры площадью 117 кв.

11.06.2023 в 08:45

м.
Стильно, комфортно и рационально
Дизайн большой квартиры площадью 117 кв..

Дизайн большой квартиры площадью 117 кв. 01
Дизайн большой квартиры площадью 117 кв. 02
Дизайн большой квартиры площадью 117 кв. 03
Дизайн большой квартиры площадью 117 кв. 04
Дизайн большой квартиры площадью 117 кв. 05
Дизайн большой квартиры площадью 117 кв. 06
Дизайн большой квартиры площадью 117 кв. 07
Дизайн большой квартиры площадью 117 кв. 08
Дизайн большой квартиры площадью 117 кв. 09