Дизайн / интерьер / стиль

Незаурядные дизайнерские решения!

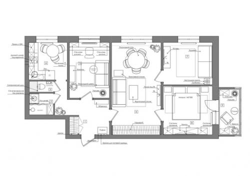
Четырехкомнатная квартира в типовой панельке.

30.09.2023 в 08:47

Площадь: 67 кв. м.
Ярко и комфортно
Четырехкомнатная квартира в типовой панельке..

Четырехкомнатная квартира в типовой панельке. 01
Четырехкомнатная квартира в типовой панельке. 02
Четырехкомнатная квартира в типовой панельке. 03
Четырехкомнатная квартира в типовой панельке. 04
Четырехкомнатная квартира в типовой панельке. 05
Четырехкомнатная квартира в типовой панельке. 06
Четырехкомнатная квартира в типовой панельке. 07
Четырехкомнатная квартира в типовой панельке. 08