Дизайн / интерьер / стиль

Незаурядные дизайнерские решения!

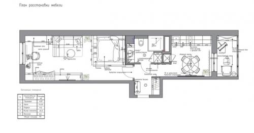
Уютная двушка в зеленых тонах для юной девушки.

07.10.2022 в 08:45

Площадь: 50 кв. м.
И цветовое решение, и переход в прихожей от ламината в кафель - беру на заметку.
Отличное решение во всём
Уютная двушка в зеленых тонах для юной девушки..

Уютная двушка в зеленых тонах для юной девушки. 01
Уютная двушка в зеленых тонах для юной девушки. 02
Уютная двушка в зеленых тонах для юной девушки. 03
Уютная двушка в зеленых тонах для юной девушки. 04
Уютная двушка в зеленых тонах для юной девушки. 05
Уютная двушка в зеленых тонах для юной девушки. 06
Уютная двушка в зеленых тонах для юной девушки. 07
Уютная двушка в зеленых тонах для юной девушки. 08
Уютная двушка в зеленых тонах для юной девушки. 09