Скамейка со спинкой своими руками из металла чертежи. Фото садовых скамеек: какие материалы подойдут
- Скамейка со спинкой своими руками из металла чертежи. Фото садовых скамеек: какие материалы подойдут
- Скамейка со спинкой своими руками чертежи. Инструкция по изготовлению лавочки со спинкой (скамейки)
- Лавочка из профильной трубы своими руками с размерами. Сборка лавочки без спинки
- Скамейка из профиля чертеж. Скамейка из профиля своими руками
Скамейка со спинкой своими руками из металла чертежи. Фото садовых скамеек: какие материалы подойдут
Чертежей садовых скамеек со спинкой своими руками очень много, это обусловлено большим количеством видов и материалов изготовления данного предмета быта. Лавочка есть в каждоми возле каждого, ведь так хорошо просто посидеть, отдохнуть и посмотреть на красоты природы, особенно в летнее время, когда на улице тепло.

Модель повышенной комфортности
Среди всего многообразия можно выделить несколько основных разновидностей:
- стационарные: выполнены из камня,или металла и имеют фундаментную основу;
- складные: покупные варианты, чаще всего из дерева или пластмассы.

Складная деревянная модель
Своими руками скамейку со спинкой можно сделать из камня, дерева или металла, а также некоторые «самоделкины» используют различные подручные элементы, например, шины или пластмассовые бутылки.
Среди основных элементов любой скамейки выделяют:
- опору;
- сидение;
- спинку;
- подлокотники;
- крепления.

Аккуратно и удобно
Опору закрепляют небольшие ямы с заливкой смеси изи песка, чтобы даже под сильными нагрузками лавочка не опрокинулась.
Скамейки для дачи из металла и дерева: фото интересных примеров
Сделать скамейку для дачи своими руками не так сложно, как кажется на первый взгляд. Главное – правильно выбрать чертеж или проявить фантазию.

Несложная модель из подручных средств
Скамейки из металла подразумевают металлические опоры, а виденье и спинку чаще делают из древесины. Это обусловлено способностью металлических предметов быстро нагреваться и остывать. Поэтому на такое сиденье в зной или прохладным вечером сесть уже будет проблематично. Вот несколько интересных примеров:
Немало интересных деревянных творений, где и опора, и сиденья с подлокотниками сделаны из натурального природного материала. Такие изделия обязательно покрывать лаком или, чтобы не было гниения из-за попадания влаги. Примеров собственноручных творений немало:
Выполняя изделие по чертежам можно выбрать как классические варианты с подлокотниками и без, так и найти творения мастеров, которые поделились своими задумками.
Не стоит забывать и про природный материал – камень. Чтобы сидеть на таком предмете мебели было не холодно, можно дополнить внешний облик аккуратнымиили сделать элемент из дерева.
Для создания лавочки из камня своими руками потребуется цементный раствор, чтобы скреплять между собой детали, тогда как в предыдущих вариантах использовались гвозди или шурупы. Вот интересные творения мастеров и простых садоводов:
Многие любители работать на дачах или выращивать сады делают различные украшения из всевозможных подручных материалов. Так, на участках появляются лебеди из шин, декоративные кустики из пластиковых бутылок и интересные скамейки.




Скамейка со спинкой своими руками чертежи. Инструкция по изготовлению лавочки со спинкой (скамейки)
Вне зависимости от конкретных габаритов скамьи, порядок его изготовления остается неизменным. Рассмотрим его поэтапно.
Этап 1: подготовка инструментов и материалов
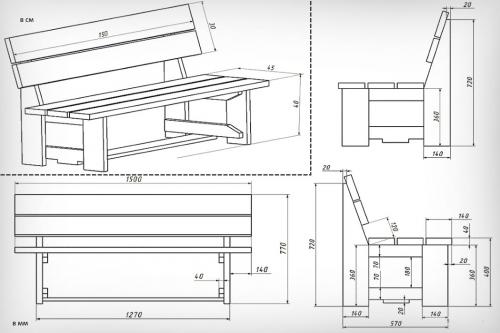
Чтобы сделать скамейку на 3 человека длиной 150 см, шириной 45 см и высотой 40 см, необходимо подготовить:
- деревянные доски (150х14 см, толщиной 4 см) – 3 заготовки для сиденья и 2 для спинки;
- 2 заготовки, выполняющие функции опор и держателей для спинки (высотой 72 см, шириной 14 см, толщиной 4 см);
- 2 заготовки для передних опор скамьи (длиной 36 см, высотой 14 см, толщиной 4 см);
- 5 бруса для усиления конструкции скамейки (4 шт. – 7х4 см, длиной по 55 см и 1 шт. – 2х2 см, длиной 120 см);
- карандаш, уровень с линейкой, рулетка;
- электрический лобзик для раскроя древесины (или пила, болгарка с диском по дереву);
- электрорубанок для шлифовки поверхностей досок, наждачная бумага;
- грунтовка, лак и кисть.
Пример чертежа, который вмещает в себя все перечисленные элементы и их размеры, представлен ниже:

Этап 2: выбор способа соединения
Сборка конструкции зависит от того, какие крепежные элементы планируется использовать для этого:
- саморезы по дереву;
- мебельные болты, гайки, шайбы;
- гвозди;
- деревянные шканты + столярный клей.
При выборе способа соединения элементов деревянной конструкции нужно учитывать, какую нагрузку она должна будет выдерживать.
При использовании болтов потребуется подготовить также дрель и сверло, диаметр которого несколько больше сечения выбранных болтов. Благодаря этому они смогут легко войти в подготовленные для них отверстия. Если диаметр отверстия будет больше, чем диаметр шляпки болта и гайки, то можно воспользоваться шайбами.
Если правильно использовать шканты и в достаточном количестве, то конструкция будет крепкой:

Для сверления одинаковых по глубине отверстий под шкант следует нанести краской пометку на сверло, чтобы знать, до какой глубины можно сверлу входить в древесину. Но помните, что отверстие под шкант не должно быть сквозным, а значит помечать сверло нужно несколькими цветами (для каждой толщины детали будет своя цветовая пометка).
В нашем примере для соединения деталей скамьи будут применяться саморезы. Их шляпки при вкручивании нужно слегка утапливать:

Саморез должен входить под прямым углом к поверхности, в которую он вкручивается.
Этап 3: сборка элементов скамейки
Конструкция собирается в такой последовательности:
- Если нет досок нужных размеров, раскроить древесину на заготовки, используя электролобзик или торцовочную пилу. Каждый полученный элемент тщательно обработать, а заготовки для спинки и сиденья отшлифовывать. По торцам досок пройтись электрорубанком, в идеале придавая им закругленную форму.
- На полученных деталях провести необходимые измерения и отметить карандашом те места, в которых будут находиться крепежные элементы. В этих местах просверлить отверстия, ориентируясь на чертежи скамьи.
- Длинным задним опорам скамьи, которые также выступают каркасом для спинки, придать правильный угол наклона. Для этого на 2 деревянных заготовках длиной 72 см нанести разметку. Прежде всего, отметить высоту скамейки – 36 см. Этот участок доски не нужно обрабатывать. На остальном отрезке надо сделать срез в 10-20°. На второй ножке сделать такой же срез, иначе скамейка получится перекошенной.
- Собрать ножки конструкции, выдержав между передними и задними элементами «окно» в 29 см. Соединять их брусом, который нужно раскраивать на всю ширину скамьи (55 см). По возможности стоит сделать двойную обвязку – сверху и снизу:

- Подготовленные 2 боковины соединить между собой с помощью досок, предназначенных для сидения. Их можно прикрутить к верхним брусьям обвязки саморезами или прочими крепежными элементами. Если используются болты, то для большей эстетичности скамьи их можно маскировать – перед началом соединения в местах прохождения болтов с помощью специальной коронки высверлить небольшие углубления.
За счет этого при сборке изделия шайбы погрузятся в подготовленные под них ниши, которые в дальнейшем надо закрыть смесью из клея ПВА и мелкой древесной стружки. Альтернативный вариант – вырезать из дерева округлые элементы, которыми можно будет закрыть отверстия.Между досками сиденья нужно оставлять равные по размеру зазоры (1-2 см). Они будут способствовать циркуляции воздуха и отводу влаги.
- Для усиления конструкции с помощью брусьев по ножкам можно сделать нижнюю обвязку. 2 заготовки длиной 150 см следует прикрутить к передним и задним опорам. При нехватке пиломатериала можно 1 поперечину прикрепить к нижним брусьям обвязки.

Лавочка из профильной трубы своими руками с размерами. Сборка лавочки без спинки
Своими руками скамейка из профильной трубы без спинки собирается довольно просто. Первым делом потребуется сварить между собой опоры, далее таким же способом к ним крепится пара направляющих. Иногда в их качестве используют не стальные трубы, а дюралюминиевые: в таком случае их фиксация осуществляется болтами, так как сварку этот материал не выдерживает.

При этом следует вооружится следующими рекомендациями:
- Любая прямоугольная опора должна короткой своей частью смотреть в вертикальном направлении, а длиной – в горизонтальном.
- Во время сварочных работ нужно осуществлять постоянный контроль за углами опор: они не должны отклонятся от показателя в 90 градусов.
- Нередко в результате сборки происходит увеличение параметров как длины, так и высоты, чем те, что содержат чертежи скамейки из профильной трубы. Если будет происходить удлинение, то потребуется изготовление дополнительной опоры.
- После сварочных работ проводится тщательная зачистка всех швов шлифмашиной, с последующей их грунтовкой.
- После изготовления каркаса, трубы обрамления оснащают серией отверстий в количестве 8 штук: это даст возможность закрепить к ним деревянные брусья.
- Для защиты металлических частей изделия от коррозии их необходимо покрасить надежной краской по металлу.
- Древесину для сидений перед использованием следует пропитать при помощи морилки, или вскрыть лаком.
- Оформление сидений досками происходит после всех вышеперечисленных операций.
Источник: https://milyj-dom.ru-land.com/stati/skameyka-iz-profilnoy-truby-sborka-lavochki-bez-spinki
Скамейка из профиля чертеж. Скамейка из профиля своими руками
Металлические лавочки выглядят очень стильно и стоят недешево. Но если у вас есть сварка, то это не проблема, посмотрите пример, как сделать скамейку из профиля своими руками. Это можно назвать бюджетным вариантом, по крайней мере, по сравнению с готовыми изделиями.
Для изготовления скамейки вам понадобится 3 метра металлического профиля 25 х 25 мм и деревянные бруски 150 х 150 мм. В данном случае исходным материалом был деревянный брус длиной 6 метров, который надо будет разрезать на 5 заготовок.
Процесс изготовления показан на пошаговых фото. Справа на фото чертеж скамейки из профиля с размерами и распиловкой.
Основные моменты .
Длина скамейки 150 см . Брус распиливаете на заготовки по размерам, как показано на чертеже. Бока надо подогнать под 90 градусов, потому что брус после высыхания принимает полукруглую форму . Бруски потом надо склеить, получится заготовка 95 по ширине, затем прогнать через рейсмус, торцовочную пилу. После этого сделать на фрезере полукруги, отшлифовать, два раза покрыть масляным лаком.
Разрежьте металлические части, для этого здесь использовалось специальное приспособление для болгарки, вы его можете видеть на фото. Зажмите их, придав нужную форму, и приварите. На ножке будет прорезь и изгиб, чтобы спинка была под углом. После этого отшлифуйте швы и покрасьте молотковой эмалью. Еще нужно будет сделать 3 отверстия в перемычку и 2 в спинку.
Когда все готово, соберите скамейку. Доски прикрутите болтами М8.
Вот вроде и все, это если коротко. Все это очень наглядно можно посмотреть на видио, которое есть на сайте.
