Дизайн / интерьер / стиль

Незаурядные дизайнерские решения!

Квартира со стильным декором в стиле 20-х годов (51 кв. м)

12.12.2019 в 15:44

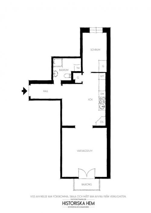
Дом в Стокгольме, в котором находится эта небольшая квартира в 51 кв. м, был построен в 1928 году и дизайнеры решили отобразить это в декоре. Ретро-мебель, экзотические растения, характерные принты на подушках — в интерьере многое напоминает об эпохе «золотых 20-х». Интересно, что зона кухни-столовой здесь проходная и без окон, она является связующим звеном между гостиной и спальней. Интересный вариант классического интерьера!

Квартира со стильным декором в стиле 20-х годов (51 кв. м)Квартира со стильным декором в стиле 20-х годов (51 кв. м) 01Квартира со стильным декором в стиле 20-х годов (51 кв. м) 02Квартира со стильным декором в стиле 20-х годов (51 кв. м) 03Квартира со стильным декором в стиле 20-х годов (51 кв. м) 04Квартира со стильным декором в стиле 20-х годов (51 кв. м) 05Квартира со стильным декором в стиле 20-х годов (51 кв. м) 06Квартира со стильным декором в стиле 20-х годов (51 кв. м) 07Квартира со стильным декором в стиле 20-х годов (51 кв. м) 08Квартира со стильным декором в стиле 20-х годов (51 кв. м) 09Квартира со стильным декором в стиле 20-х годов (51 кв. м) 10Квартира со стильным декором в стиле 20-х годов (51 кв. м) 11Квартира со стильным декором в стиле 20-х годов (51 кв. м) 12Квартира со стильным декором в стиле 20-х годов (51 кв. м) 13Квартира со стильным декором в стиле 20-х годов (51 кв. м) 14Квартира со стильным декором в стиле 20-х годов (51 кв. м) 15Квартира со стильным декором в стиле 20-х годов (51 кв. м) 16Квартира со стильным декором в стиле 20-х годов (51 кв. м) 17Квартира со стильным декором в стиле 20-х годов (51 кв. м) 18Квартира со стильным декором в стиле 20-х годов (51 кв. м) 19Квартира со стильным декором в стиле 20-х годов (51 кв. м) 20Квартира со стильным декором в стиле 20-х годов (51 кв. м) 21Квартира со стильным декором в стиле 20-х годов (51 кв. м) 22Квартира со стильным декором в стиле 20-х годов (51 кв. м) 23Квартира со стильным декором в стиле 20-х годов (51 кв. м) 24Квартира со стильным декором в стиле 20-х годов (51 кв. м) 25