Дизайн гостиной-спальни 18 кв. Полезные советы перед ремонтом
- Дизайн гостиной-спальни 18 кв. Полезные советы перед ремонтом
- Дизайн гостинной спальни 19 кв м. Особенности современной планировки гостиной
- Дизайн комнаты 18 кв.м с балконом. Интерьеры гостиной 18 кв метров: просто и со вкусом!
- Дизайн гостинной спальни 18 кв м. Отделка пола, стен и потолка в спальне-гостиной
- Дизайн комнаты 18 кв.м с балконом и окном. Дизайн зала с площадью в 18 квадратных метров
- Интерьер жилой комнаты 18 кв м. Какой цвет выбрать для дизайна гостиной 18 кв м?
Дизайн гостиной-спальни 18 кв. Полезные советы перед ремонтом
Продумывая дизайн спальни-гостиной 18 кв. метров, необходимо учитывать все нюансы подобных интерьеров. Продумывая, где и какую мебель поставить, старайтесь придерживаться принципа золотой середины — не перегружайте дизайн лишними деталями. Обилие мелочей и декоративных элементов визуально захламляет интерьер.

Сочетание на площади 18 квадратных метров дивана и кровати
Вот несколько полезных рекомендаций:
- Небольшая гостиная будет смотреться эффектнее, если при оформлении задействовать пастельные тона или яркие оттенки. Светлые цвета визуально расширяют пространство.
- Если есть возможность, не лишним будет установить большие окна — солнечный свет наполнит интерьер воздушностью и создаст ощущение большего пространства.
- Не стоит выставлять слишком много мебели, это выглядит громоздко. Лучше выбирать модели-трансформеры.
- Большие люстры зрительно снижают высоту потолка, поэтому лучше остановить выбор на небольших моделях.
- Для хранения вещей стоит применять открытые полки. По вместительности они не уступают шкафам и смотрятся значительно миниатюрнее.
- Если вы хотите сделать ремонт в одной комнате 18 кв. м, превратив её в спальню-гостиную, в качестве разделения на зоны можно выбрать для дизайна эффект яркой стены как на фото. Стена, контрастная по цвету с остальными, выделит спальню или зону гостиной.
- Если потолки кажутся низкими, их можно зрительно вытянуть, используя обои с вертикальными полосками. Сам потолок должен быть светлее стен.
Дизайн гостинной спальни 19 кв м. Особенности современной планировки гостиной
Большинство многоквартирных домов имеют квартиры, где площадь самой большой комнаты составляет 18-20 м2. Обычно это просторное помещение прямоугольной формы с 1 окном на 3 фрамуги. Нередко одно из окон заменяется стеклом балконной двери, но это не может существенно изменить стандартную расстановку мебели при создании интерьера гостиной 20 кв.м.
В большинстве семей зал – помещение общего пользования, но принято разграничивать функции гостиной как комнаты для приема гостей. В большинстве случаев здесь по вечерам собирается вся семья, особенно когда у каждого свой жизненный график. Чаще всего тут ужинают за просмотром телепередач, поэтому рядом с многоместной мягкой мебелью принято ставить невысокий и удобный журнальный столик. Это довольно большая комната, которую нередко используют как личное пространство одного из членов семьи, когда не хватает на всех по комнате.
В некоторых домах гостиная – угловое или проходное помещение, и если из нее выходят 2-3 двери, то очень неудобно использовать ее как дополнительную спальню. Кабинет гораздо больше подходит в функциональном плане под дизайн проходной гостиной 20 метров. Хотя и как полноценную комнату для сна она тоже применима, если оборудовать удобным диваном с выкатным механизмом трансформации.

Обычно в гостиной собирается вся семья, встроенный камин сделает встречи с родными теплее

Позаботьтесь о качестве и количестве света
Раскладной диван и кресла-трансформеры в гостиной – это очень удобно. На ночь это будет диван-кровать, днем – удобный многоместный уголок праздникам – модули для приема гостей, можно добавить банкетки и пуфики. Однако основа любого кабинета, оборудованного в проходной гостиной – это письменный или компьютерный стол и полки или стеллажи под папки с офисными бумагами.
Просторная гостиная, независимо от расположения окон, хороша тем, что можно варьировать расстановку мебели и функциональность основных зон. Но перед тем как начинать небольшую реконструкцию или ремонт, заранее решите, каким видите конечный результат, который зависит от многих составляющих, включая свет и меблировку.
Атмосфера в гостиной во многом зависит от освещения – общего и локальных зон, что придает комфорта длинными вечерами. Сегодня его делают по всем правилам светодизайна – многоуровневая подсветка для зонирования. Важен общий свет и мягкая подсветка для отдыха и дополнительная матовая лампа поблизости, когда нужно читать книгу или работать за ноутбуком.
Полноценное дневное освещение – дополнительные возможности в выборе цветовой палитры в дизайн гостиной на 20 квадратов. Если комната узкая, в дальние углы в пасмурную погоду и в зимний период дневной свет проникает в меньшем процентном соотношении. Особенно это чувствуется с северной стороны и когда на окнах плотные шторы. В этом случае применение темной палитры должно быть дозировано, только в качестве контрастных элементов.

Освещение в гостиной играет важную роль

Для отдыха можно сделать мягкий рассеянный свет

Очень хорошо когда в дневное время единственным источником света является окно
Совет. Северное окно в дизайне продолговатой 20-метровой комнаты лучше занавешивать легким полупрозрачным тюлем желтых оттенков – создается иллюзия солнечных лучей. Помните, что светлая гостиная всегда кажется больше, крупный рисунок дробит стены, а черная мебель поглощает пространство.
У противоположной стены будет уместен большой аквариум с подсветкой, воздушно-пузырьковая панель, торшер оригинальной формы или другой источник света. Глянцевые и зеркальные поверхности делают северную гостиную более светлой и уютной. Дизайн гостиной 19-20 кв.м с двумя окнами проще обустроить, но остается меньше места для корпусной мебели и мягкого уголка с высокими спинками. Многоместный модульный диван или столовый гарнитур можно поставить в центре.
Внимание! С какой бы стороны ни были дверные проемы проходной комнаты, важно так расставить мебель, чтобы всегда были свободные проходы ко всем межкомнатным дверям и доступ ко всем интерьерным объектам. Даже если определенный способ расстановки кажется наиболее красивым, практичность должна быть на первом месте.
Дизайн комнаты 18 кв.м с балконом. Интерьеры гостиной 18 кв метров: просто и со вкусом!
Зал в квартире – это центральное место для семейного отдыха и общения. Именно здесь принято встречать гостей. Как правило, гостиная в квартире совмещает одновременно множество различных функций. Что же нужно для того, чтобы интерьер был красивым, легким и уютным? Сегодня мы поговорим о зале, площадью 18 кв м.
Что важно знать?
Какой бы стиль дизайна вы ни выбрали, основу проекта составляет функциональная составляющая помещения. Поэтому перед тем, как тратить средства на приобретение мебели и стройматериалов, желательно заранее обозначить те функции, которые будет выполнять гостиная. Для этого достаточно проанализировать привычки домочадцев.


Как вы любите проводить вечер?
- Смотреть телевизор, лежа на диване.
- Разговаривать с членами семьи за столом, расположившись в мягких креслах.
- Заниматься любимым хобби за рабочим столом.
- Играть в компьютерные игры.

Как часто вы принимаете гостей в зале?
- Примерно раз в полгода.
- Никогда.
- Иногда.
- Часто.

Сколько спальных мест нужно предусмотреть?
- Двуспальное место для взрослых членов семьи, потому что спальню занимают дети.
- Односпальное для ребенка.
- Гостевая постель, которая часто используется.
- Гостевая постель, которая используется редко.
Вы любите каждое утро складывать диван, или же лучше отвести под спальную зону отдельное место с полноценной кроватью?

Что вы предпочитаете смотреть по вечерам: телевизор или
- Плазма на стене.
- Ноутбук на рабочем столе.
- Большой монитор на тумбочке.

Сколько вещей вы планируете хранить в шкафах?
- Нужен платяной шкаф и уголок школьника.
- Требуется много места для хранения одежды, книг, материалов и оборудования для хобби.

Когда вы честно ответите на эти вопросы, вам намного проще будет подобрать нужный стиль для гостиной. А при заказе дизайнера, он получит хорошую базу для творчества.

Особенности и хитрости
Комфорт – это сочетание красоты и удобства. Какие приемы и хитрости помогут создать идеальную атмосферу для отдыха и семейного общения?

1. Используйте нужные оттенки для того, чтобы добиться ощущения желаемой температуры .
Что это значит? Холодные оттенки палитры способны убедить наш мозг, что в помещении на пару тройку градусов прохладнее, чем на самом деле. А красно-желтый спектр действует с противоположным эффектом. Если у вас зимой батареи не настолько горячие, как хотелось бы, то теплый спектр поможет чувствовать себя более комфортно. Даже отдаленное напоминание об огне дает сигнал подсознанию, что в доме чуток теплее, чем показывает градусник-обманщик.

2. Лучше светлее, чем темнее.
Площадь 18 м2 считается средней для зала. Тем не менее, она не настолько просторна, чтобы смело выкрашивать стены и пол в модный оттенок венге. Однако это вовсе не означает, что нельзя использовать глубокие драматические тона.

Базовый фон лучше оформить в нежных пастельных тонах или использовать бело-серую палитру.

Темные оттенки хороши для акцентных линий, бордюров, плинтусов, карнизов. Они придают динамичность интерьеру и помогают подчеркнуть красоту базового тона.
Не забудьте узнать о — « Новинках обоев для зала «.
А так же о том как выбрать шторы для гостиной и про дизайн ламбрекен .
3. Смешивать стили можно.
Это поможет примирить вкусы членов семьи. Однако не стоит использовать в одном миксе более двух стилей. Старайтесь сочетать близкие по характеру направления.

Например, с провансом хорошо смотрится кантри, скандинавское направление и русский дачный стиль. Минимализм, лаундж и конструктивизм близки по смыслу так же, как романтизм и шебби-шик.
Дизайн гостинной спальни 18 кв м. Отделка пола, стен и потолка в спальне-гостиной
Выбор отделочных материалов во многом зависит от того, кто будет делать ремонт: при заказе работы мастеров можно выбирать разные покрытия различной степени сложности, а вот самостоятельная отделка комнаты определяет выбор более простых решений. В любом случае перед началом обустройства спальни и гостиной следует обозначит основные параметры – стиль, цвет, инструменты зонирования.
Спальня-гостиная в 18 кв. м не может быть слишком ажурной, так как напыщенные детали отнимают место. Поэтому дизайнеры рекомендуют выбирать минималистичные, технологичные стили, в которых используются простые и лаконичные формы. При этом содержание такого интерьера будет емким, ведь на небольшой площади необходимо добиться максимальной функциональности.
Для отделки зала в квартире рекомендуют выбирать эффективные отражающие поверхности. Конечно, это не значит, что нужно оформить зеркалами все стены и потолок. Достаточно глянцевых покрытий на фасадах мебели, стеклянных вставок, полированных деталей.
Еще один нюанс при выборе отделки – форма помещения. Прямоугольная комната – идеальный вариант, так как здесь спальня займет меньше места, чем в квадратной гостиной. Для оформление последней можно использовать полосы в отделке стен – для увеличения как высоты, так и длины/ширины помещения.
Многие хозяева задаются вопросом, а нужно ли зонирование в комнате площадью 18 кв. м. Дизайнеры уверены, что четкое разделение зон помогает сделать каждую из них более уютной, даже если спальное место займет всего 4 квадратных метра из всей площади. С помощью проведения границ реально добиться безупречного комфорта.
Потолок
Одно из актуальных решений – глянцевый натяжной потолок , который способствует визуальному увеличению высоты комнаты. Но сплошное отражающее покрытие не вызывает повсеместного восторга у людей, которые хотят получить в стенах своей квартиры ощущение дома. Глянец применим в части многоуровневой конструкции, которая одновременно поможет определить гостиную зону. Над спальней лучше использовать матовые – сатиновые полотна. Причем цвет таковых может быть разным – комфортным именно для вас.
По контуру гостиной, совмещенной со спальней, устанавливаются точечные светильники в одном стиле с центральной люстрой. Для поддержания стройной композиции можно посвятить немного места и усилий декору и созданию дизайна в согласии с таковой. Для этого можно выбрать изящный торшер и/или пару бра .
Стены
Отделка стен будет, конечно, более разнообразной, чем покрытие потолка. Для этого можно выбрать и краску, и штукатурку, и обои, и панели. Последний вариант для небольшой комнаты мало применим, ведь для монтажа таковых необходимо «отнять» по периметру несколько сантиметров – для крепления направляющих.
Как правило, для отделки небольшой гостиной, а 18 кв. м в понимании дизайнеров – это совсем не много, выбирают светлую палитру, реализовать которую можно с помощью любого отделочного материала. Для экономии пространства также рекомендуют отказаться от узоров – как крупных, так и мелких. Чтобы скромное помещение было комфортным и свободным, стоит использовать минимум предметов и поверхностей, которые привлекают внимание. Аналогичным образом можно реализовать интерьер спальни, тогда эта зона будет незаметной, отдавая главную роль гостиной. Впрочем, так и должно быть: гостевая зона предназначена для совместного времяпрепровождения и приема гостей, а вот спальное место – исключительно личное пространство для одного или же пары.
Среди гармоничных вариантов оформления:
- Функциональные зоны могут быть оформлены в разных оттенках, но в одной органичной гамме . В районе дивана в гостевой части обустраивают акцентную отделку – за ним или же за телевизором. Если же вокруг ТВ будет стоять стенка, акцентной лучше сделать поверхность за софой. Для этого выбирают покрытия с узором или же отличного от основного цвета. Для невысокой комнаты оптимально подобрать обои с вертикальной полоской. Для квадратного помещения подойдут фотообои – крупные цветы, солнечное небо, абстракция и т.д.
- Акцентами на любом фоне могут стать открытые горизонтальные полки с подсветкой . Цветное излучение создаст особую атмосферу, меняя оттенок отделки.
- Для комфортной спальни можно выбрать и насыщенный темный цвет . Если он будет в серой палитре, получится создать эффект игры света и тени, что даже днем здесь будет уютно и достаточно комфортно для отдыха.
- Если окна расположены в гостиной, а не со стороны спальни, то стоит позаботиться о светлой отделке и в этой зоне . Поверхность за кроватью может быть выполнена в глубоком цвете, а вот вокруг стоит окрасить поверхность в нейтральный тон и обеспечить качественное освещение.
Дизайн комнаты 18 кв.м с балконом и окном. Дизайн зала с площадью в 18 квадратных метров

В большинстве городских многоэтажек площадь общей комнаты редко превышает 18 м кв, а вмещает она несколько функций: столовая, прием гостей, рабочий кабинет, спальня. Мы расскажем, как рационально распорядиться этой площадью с помощью зонирования, как обставить мебелью, выбрать цветовую гамму, чтобы получить гармоничный и комфортный интерьер, а чего делать категорически нельзя.
Основные принципы оформления зала 18 кв м
Малая площадь требует применения особых приемов для визуального расширения пространства и увеличения высоты:
- зонирование при помощи перегородок, стеллажей, цвета, различных фактур поверхностей;
- создание основных зрительных диагоналей наиболее выгодных планов;
- использование вертикалей в отделке;
- тщательный подбор отделочных материалов и цветовой гаммы, использование в интерьере не более 3-х цветов;
- минимум мебели, использование трансформируемой и многофункциональной мебели;
- использование различных сценариев в освещении.
Отделочные материалы для зала
В интерьере главной семейной комнаты используют разные материалы:
- стены — декоративные штукатурки и краски, обои;
- полы — паркет, паркетную и массивную доску, ламинат, виниловую плитку, линолеум;
- декоративные панели — ламинированные, шпонированные, панели 3Д гипсовые, полиуретановые, композитные;
- различные карнизы, плинтусы, галтели из гипса, полиуретана;
- подвесные и натяжные потолки.
Сочетание материалов различных фактур и цвета дает выделение зон, обозначение транзитных путей, делает зал светлее и уютнее.
Планировка и зонирование на 18 квадратных метрах
Разбивка на зоны обязательна, если зал выполняет одновременно несколько функций:
- вечером и в выходные служит для семейных обедов и ужинов, застолий с гостями — нужна обеденная группа вблизи двери или входа в кухню;
- совместный просмотр телепрограмм, общение — комплект мягкой мебели;
- рабочее место ребенка или родителей — секретер с откидной столешницей или полноценный письменный стол;
- дополнительное спальное место — раскладывающийся диван или кровать — трансформер;
- спальное место члена семьи — кровать, выделенная стационарной или сдвижной перегородкой, стеллажом.
Выбор зависит от конфигурации помещения и набора необходимых функций.
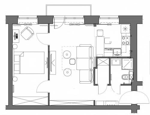
Прямоугольная гостиная
Зал 5,5х3,6 м, высотой 2,5-2,6 м — обычный габарит в хрущевках и брежневках, здесь главное — скорректировать вытянутую форму.

План прямоугольной квартиры
Это можно сделать, поставив шкаф по торцовой стене около входа, рядом — обеденную группу, среднюю часть зала отдать под мягкую мебель и телевизор, а место около торца с окном отдать рабочему месту и поставить кровать.
Проходная гостиная 18 кв
Проходной зал в хрущевке (так называемая распашонка) тоже можно скорректировать:
- перепланировать, перенеся двери в кухню и прихожую, в образовавшемся алькове поставить мягкую мебель или кровать, отделив раздвижной или складной перегородкой, ширмой, занавесом;
- не внося изменения в планировку, рабочее место и зону хранения разместить у окна, рядом — обеденную зону, в дальнем торце комнаты — мягкую группу с раскладным диваном.

Проходная гостиная
Квадратный зал
Квадратная форма наиболее гармонична, увеличенная ширина дает расширение пространства. Здесь найдется место для мягкой мебели, системы хранения, рабочего места, есть возможность поставить угловой диван, не мешая транзитному проходу в другие помещения или на балкон.

Квадратный зал
С выходом на балкон
В комнатах с выходом на балкон часть площади занимает проход. Если балконная дверь расположена по длинной боковой стене сокращается потеря площади.
Если выход находится на дальнем торце, то поневоле придется размещать мебель вдоль стен. В этом случае можно разбить пространство цветовыми акцентами или выделить зоны отделочными материалами с разными фактурами.

Интерьер жилой комнаты 18 кв м. Какой цвет выбрать для дизайна гостиной 18 кв м?
Самый модный!
Если… Вы готовы перекраивать свою гостиную на новый лад каждый сезон.
В 2018 году цветом года был объявлен Pantone Ultra Violet 18-3838, но уже через 4 месяца его сменит новый, интересный и наверняка неожиданный оттенок.
Так неужели нужно будет снова делать ремонт?

И дизайнеры, и психологи в один голос утверждают, что цвет интерьера нужно выбирать максимально комфортный и приемлемый для вас.
Ведь мода модой, гости гостями, но жить в вашей квартире вам.
Мы предлагаем вам познакомиться с 12-ю самыми популярными цветовыми решениями для оформления гостиной и, взвесив преимущества и недостатки каждого, принимать решение.

Белый
Гостиная в белом цвете - решение стильное, но не очень универсальное.
Посудите сами: стоит только ребенку разлить сок или любимому четырехлапому другу залезть не совсем чистыми лапами на белоснежный диван, как весь его шарм и шик блекнет вместе с вашей репутацией идеальной хозяйки.
Готовы ли вы к постоянным химчисткам, уборкам и счетам из клининговой службы?


В то же время, если вы молоды, амбициозны и уверенны в том, что ни одно пятно случайно не закрадется в ваше интерьер - дерзайте!
Белый цвет легко комбинируется СО ВСЕМИ другими цветами и если вы захотите что-то изменить в своей белоснежной гостиной 18 кв. м - даже полностью ремонт не придется переделывать.



Бежевый
Универсальный нейтральный оттенок для спокойных и вдумчивых натур.
Бежевый не кричит, не выделяется и не напрягает. С его помощью вы легко подчеркнете форму и текстуру элементов интерьера гостиной 18 кв.м.
Бежевый интерьер можно разбавить яркими акцентами - синими, зелеными, голубыми.



Коричневый
Традиционно коричневый - это цвет натурального дерева. Поэтому долгое время он являлся характерной чертой гостиной в классическом стиле.
Сегодня современные технологии позволяют концептуально переосмыслить роль коричневого цвета в интерьере и использовать его в других, более современных направлениях дизайна.
В гостиной 18 кв. м коричневый цвет может выступать базовым цветом, но есть риск, что комната станет восприниматься слишком маленькой и темной. Лучше сделайте его акцентным и используйте для отделки мебели и текстильного декора.


Красный
Гостиная 18 кв. м может позволить себе быть красной!
Здесь семья, друзья, родственники хоть и собираются, чтобы отдохнуть, но этот отдых - активный, связанный с действиями, занятиями, движением.
По-большому счету в интерьере гостиной все упирается не в то, какой цвет использовать, а в каком количестве. Чем больше красного (любого оттенка) использовано в дизайне комнаты, тем более горячей, импульсивной, энергичной она будет казаться.