Дизайн / интерьер / стиль

Незаурядные дизайнерские решения!

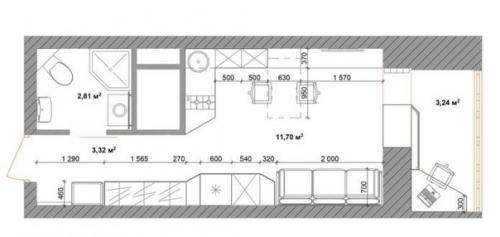
Компактный интерьер студии 18 кв.

10.08.2022 в 08:44

м.
На такой площади необходимо экономить каждый сантиметр и использовать все возможности для того, чтобы увеличить маленькое пространство
Компактный интерьер студии 18 кв..

Компактный интерьер студии 18 кв. 01
Компактный интерьер студии 18 кв. 02
Компактный интерьер студии 18 кв. 03
Компактный интерьер студии 18 кв. 04