Дизайн / интерьер / стиль
Незаурядные дизайнерские решения!
Main menu
Главная
Новости
Статьи
Главная
»
Это наверно тот вариант, когда ремонт стоит дороже квартиры.
Это наверно тот вариант, когда ремонт стоит дороже квартиры.
28.11.2019 в 09:44
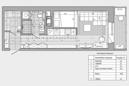
Площадь 30 м 2
.
Понравилось? Поделитесь с друзьями!
⇦
Дизайн интерьера в Тольятти. Дизайн интерьера
⇨
Ежик своими руками из пластиковых бутылок. Забавный ежик из пластиковой бутылки