Дизайн / интерьер / стиль
Незаурядные дизайнерские решения!
Main menu
Главная
Новости
Статьи
Главная
»
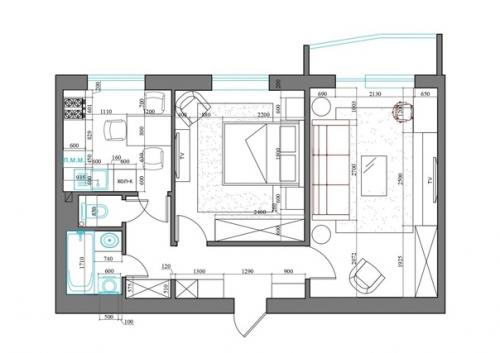
Двухкомнатная квартира в панельном доме типовой планировки.
Двухкомнатная квартира в панельном доме типовой планировки.
20.02.2023 в 09:47
Площадь: 55 кв. м
.
Понравилось? Поделитесь с друзьями!
⇦
Красивая и уютная кухня - гостиная.
⇨
Остекление балконов и лоджий пластиковыми окнами. Холодный способ