Дизайн / интерьер / стиль

Незаурядные дизайнерские решения!

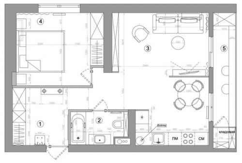
Двухкомнатная квартира с бюджетными решениями.

04.12.2022 в 09:45

Площадь: 56 кв. м.
Красиво и удобно
Двухкомнатная квартира с бюджетными решениями..

Двухкомнатная квартира с бюджетными решениями. 01
Двухкомнатная квартира с бюджетными решениями. 02
Двухкомнатная квартира с бюджетными решениями. 03
Двухкомнатная квартира с бюджетными решениями. 04
Двухкомнатная квартира с бюджетными решениями. 05
Двухкомнатная квартира с бюджетными решениями. 06
Двухкомнатная квартира с бюджетными решениями. 07
Двухкомнатная квартира с бюджетными решениями. 08
Двухкомнатная квартира с бюджетными решениями. 09