Дизайн / интерьер / стиль

Незаурядные дизайнерские решения!

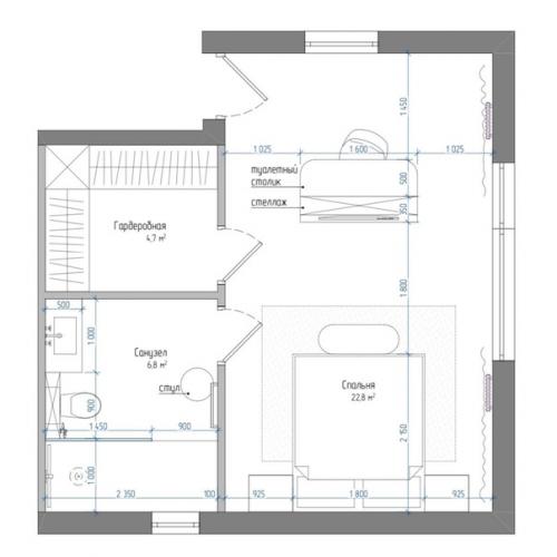
Спальня, которая располагает к отдыху и наслаждению роскошными видами.

14.11.2022 в 09:45

С такой планировкой ничего другого и не придумать.
Отличное решение
Спальня, которая располагает к отдыху и наслаждению роскошными видами..

Спальня, которая располагает к отдыху и наслаждению роскошными видами. 01
Спальня, которая располагает к отдыху и наслаждению роскошными видами. 02
Спальня, которая располагает к отдыху и наслаждению роскошными видами. 03
Спальня, которая располагает к отдыху и наслаждению роскошными видами. 04
Спальня, которая располагает к отдыху и наслаждению роскошными видами. 05
Спальня, которая располагает к отдыху и наслаждению роскошными видами. 06