Дизайн / интерьер / стиль

Незаурядные дизайнерские решения!

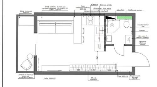
Расстановка мебели рациональна на такой площади.

11.09.2024 в 08:44

Сочетание цветов не очень - похоже фисташковый не сочетается с бледным.
Площадь - 25 кв. м
Расстановка мебели рациональна на такой площади..

Расстановка мебели рациональна на такой площади. 01
Расстановка мебели рациональна на такой площади. 02
Расстановка мебели рациональна на такой площади. 03
Расстановка мебели рациональна на такой площади. 04
Расстановка мебели рациональна на такой площади. 05
Расстановка мебели рациональна на такой площади. 06
Расстановка мебели рациональна на такой площади. 07
Расстановка мебели рациональна на такой площади. 08