Дизайн / интерьер / стиль

Незаурядные дизайнерские решения!

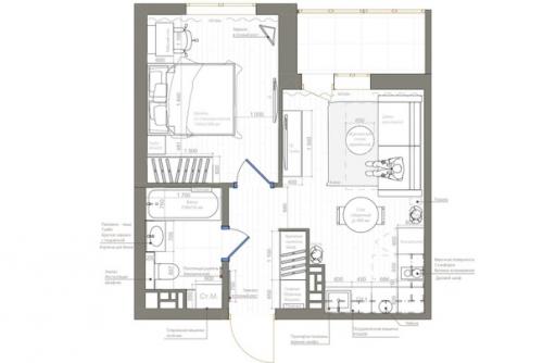
Проект однокомнатной квартиры, площадью - 35 кв.

21.10.2023 в 08:47

м.
Стиль - джапанди.
Экологичный интерьер
Проект однокомнатной квартиры, площадью - 35 кв..

Проект однокомнатной квартиры, площадью - 35 кв. 01
Проект однокомнатной квартиры, площадью - 35 кв. 02
Проект однокомнатной квартиры, площадью - 35 кв. 03
Проект однокомнатной квартиры, площадью - 35 кв. 04
Проект однокомнатной квартиры, площадью - 35 кв. 05